














Book your tour. Save an average of $18,473. We'll handle the rest.
- Confirmed tours
- Get matched & compare top deals
- Expert help, no pressure
- No added fees
Estimated value based on Jome data, T&C apply






















Why tour with Jome?
- No pressure toursTour at your own pace with no sales pressure
- Expert guidanceGet insights from our home buying experts
- Exclusive accessSee homes and deals not available elsewhere
Jome is featured in
- Single-Family
- Quick move-in
- $219.57/sqft
- $400/annual HOA
Home description
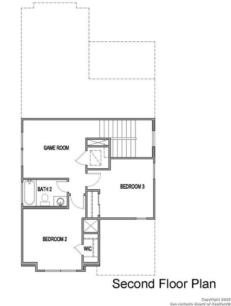
Welcome to the beautifully designed Esperanza plan, a multi-level gem offering both comfort and style. This 3-bedroom, 2.5-bath home boasts 1,512 square feet of thoughtfully planned living space. The primary bedroom and laundry room are conveniently located on the first floor, providing ease of access and added functionality. A wraparound kitchen anchors the heart of the home, flowing seamlessly into a spacious 14-foot-wide family room-perfect for relaxing or entertaining. Step outside to enjoy the large, covered patio, ideal for outdoor living year-round. A 2-car detached garage completes this charming residence. Don't miss your chance to own this exceptional home!
Details Communities, Ltd., MLS 1882201
May also be listed on the Scott Felder Homes website
Information last verified by Jome: Today at 2:06 AM (January 19, 2026)
Book your tour. Save an average of $18,473. We'll handle the rest.
We collect exclusive builder offers, book your tours, and support you from start to housewarming.
- Confirmed tours
- Get matched & compare top deals
- Expert help, no pressure
- No added fees
Estimated value based on Jome data, T&C apply
Home details
- Property status:
- Move-in ready
- Lot size (acres):
- 0.10
- Size:
- 1,512 sqft
- Beds:
- 3
- Baths:
- 2
- Half baths:
- 1
- Garage spaces:
- 2
- Fence:
- Privacy Fence
- Facing direction:
- West
Construction details
- Builder Name:
- Scott Felder Homes
- Year Built:
- 2025
- Roof:
- Composition Roofing
Home features & finishes
- Cooling:
- Central Air
- Flooring:
- Ceramic FlooringStone FlooringVinyl FlooringCarpet FlooringTile Flooring
- Foundation Details:
- Slab
- Garage/Parking:
- GarageDetached Garage
- Property amenities:
- Patio
- Rooms:
- Game Room
Room details
Master Bedroom
Kitchen
Dining Room

Get a consultation with our New Homes Expert
- See how your home builds wealth
- Plan your home-buying roadmap
- Discover hidden gems
Utility information
- Heating:
- Central Heating, Gas Heating
- Utilities:
- City Water System

Community details
Mayfair at Mayfair
by Scott Felder Homes, New Braunfels, TX
- 17 homes
- 24 plans
- 1,019 - 2,888 sqft
View Mayfair details
More homes in Mayfair
- Home at address 115 Trifle Trl, New Braunfels, TX 78130

Daisy
$313,990
- 3 bd
- 2.5 ba
- 1,392 sqft
115 Trifle Trl, New Braunfels, TX 78130
- Home at address 123 Trifle, New Braunfels, TX 78130

Home
$324,990
- 3 bd
- 2.5 ba
- 1,384 sqft
123 Trifle, New Braunfels, TX 78130
- Home at address 123 Trifle Trl, New Braunfels, TX 78130

Daisy
$324,990
- 3 bd
- 2.5 ba
- 1,384 sqft
123 Trifle Trl, New Braunfels, TX 78130
- Home at address 127 Trifle Trl, New Braunfels, TX 78130

Esperanza
$331,990
- 3 bd
- 2.5 ba
- 1,512 sqft
127 Trifle Trl, New Braunfels, TX 78130
- Home at address 144 Arlo Pt, New Braunfels, TX 78130

Kendal
$382,990
- 3 bd
- 2 ba
- 1,567 sqft
144 Arlo Pt, New Braunfels, TX 78130
- Home at address 6029 Edna Pt, New Braunfels, TX 78130

Inverness
$397,990
- 4 bd
- 2 ba
- 1,669 sqft
6029 Edna Pt, New Braunfels, TX 78130
Floor plans in Mayfair
About the builder - Scott Felder Homes
Neighborhood
Home address
- City:
- New Braunfels
- County:
- Comal
- Zip Code:
- 78130
Schools in Comal Independent School District
GreatSchools’ Summary Rating calculation is based on 4 of the school’s themed ratings, including test scores, student/academic progress, college readiness, and equity. This information should only be used as a reference. Jome is not affiliated with GreatSchools and does not endorse or guarantee this information. Please reach out to schools directly to verify all information and enrollment eligibility. Data provided by GreatSchools.org © 2025
Places of interest
Getting around
Air quality

Considering this home?
Our expert will guide your tour, in-person or virtual
Need more information?
Text or call (888) 486-2818
Financials
Estimated monthly payment
Let us help you find your dream home
How many bedrooms are you looking for?
Similar homes nearby
Recently added communities in this area
Nearby communities in New Braunfels
New homes in nearby cities
More New Homes in New Braunfels, TX
Details Communities, Ltd., MLS 1882201
IDX information is provided exclusively for personal, non-commercial use, and may not be used for any purpose other than to identify prospective properties consumers may be interested in purchasing. Information is deemed reliable but not guaranteed.
Read moreLast checked Jan 19, 1:00 pm
- Jome
- New homes search
- Texas
- Greater San Antonio
- Comal County
- New Braunfels
- Mayfair
- 127 Trifle, New Braunfels, TX 78130






























