














Book your tour. Save an average of $18,473. We'll handle the rest.
We collect exclusive builder offers, book your tours, and support you from start to housewarming.
- Confirmed tours
- Get matched & compare top deals
- Expert help, no pressure
- No added fees
Estimated value based on Jome data, T&C apply






















Why tour with Jome?
- No pressure toursTour at your own pace with no sales pressure
- Expert guidanceGet insights from our home buying experts
- Exclusive accessSee homes and deals not available elsewhere
Jome is featured in
- Single-Family
- Quick move-in
- $242.5/sqft
- $400/annual HOA
Home description
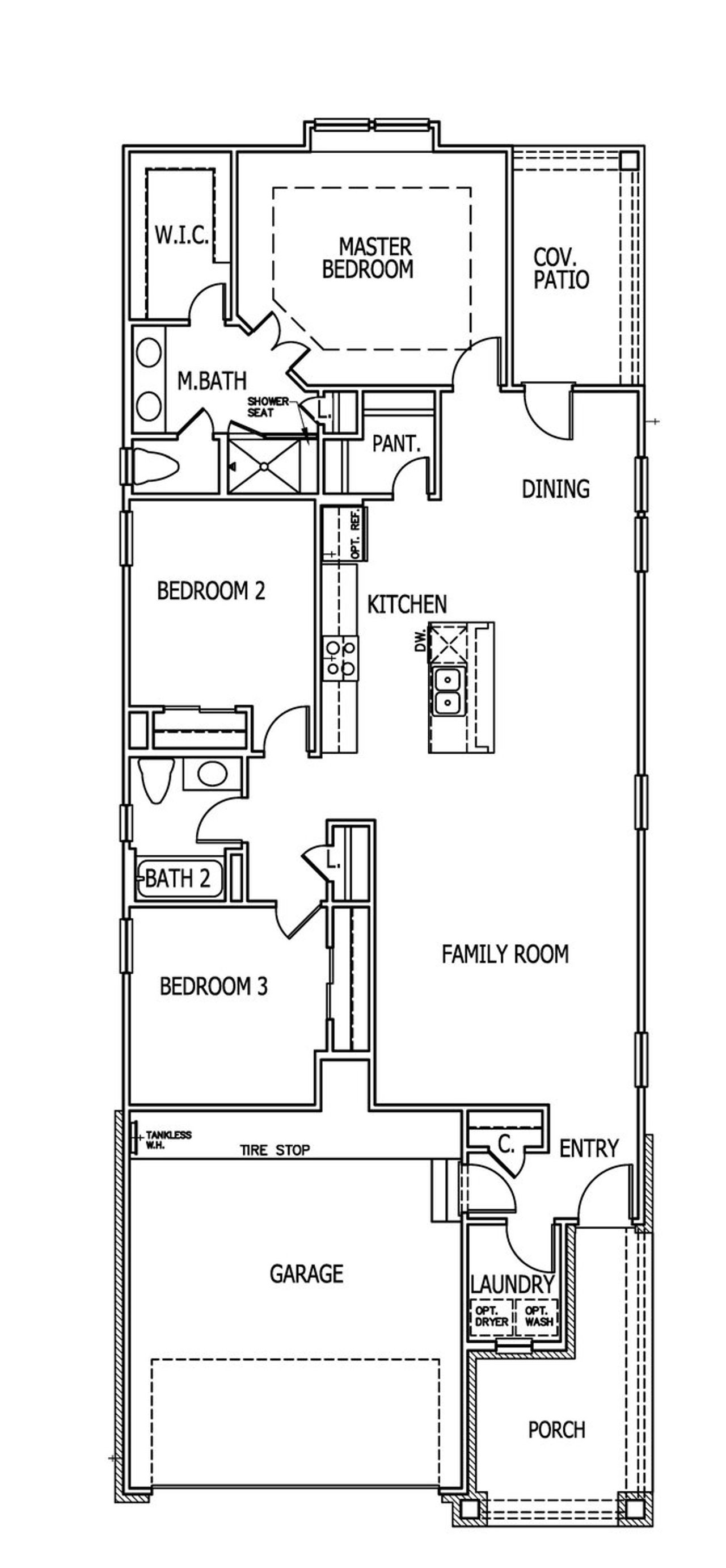
THIS HOME FEATURES OVER $36,355 IN UPGRADES! Welcome to the Amazing Kendal Plan - a beautifully designed single-level home that perfectly balances style, comfort, and functionality. This 1,567 sq ft home offers 3 spacious bedrooms and 2 full bathrooms. Step into the expansive 19-foot family room, where soaring ceilings and open sightlines create a bright and welcoming atmosphere for entertaining or relaxing. The heart of the home is the island kitchen, featuring ample prep space and a seamless flow into the dining and living areas - perfect for gathering with friends and family. The covered front porch offers charming curb appeal and a cozy space to enjoy your morning coffee, while the rear patio is ideal for summer barbecues or quiet evenings outdoors. Retreat to the primary bedroom, highlighted by a striking box-out window and an elegant 10-foot coffered ceiling, adding both natural light and architectural flair. The en-suite bathroom provides both comfort and privacy, completing this luxurious owner's suite.
Details Communities, Ltd., MLS 1882208
May also be listed on the Scott Felder Homes website
Information last verified by Jome: Today at 7:00 AM (March 6, 2026)
Book your tour. Save an average of $18,473. We'll handle the rest.
We collect exclusive builder offers, book your tours, and support you from start to housewarming.
- Confirmed tours
- Get matched & compare top deals
- Expert help, no pressure
- No added fees
Estimated value based on Jome data, T&C apply
Home details
- Property status:
- Move-in ready
- Lot size (acres):
- 0.10
- Size:
- 1,567 sqft
- Stories:
- 1
- Beds:
- 3
- Baths:
- 2
- Garage spaces:
- 2
- Fence:
- Privacy Fence
- Facing direction:
- East
Construction details
- Builder Name:
- Scott Felder Homes
- Completion Date:
- December, 2025
- Year Built:
- 2025
- Roof:
- Composition Roofing
Home features & finishes
- Cooling:
- Central Air
- Flooring:
- Ceramic FlooringStone FlooringVinyl FlooringCarpet FlooringTile Flooring
- Foundation Details:
- Slab
- Garage/Parking:
- Garage
- Property amenities:
- Patio
- Rooms:
- Primary Bedroom On MainPrimary Bedroom Downstairs
Room details
Master Bedroom
Kitchen
Dining Room

Get a consultation with our New Homes Expert
- See how your home builds wealth
- Plan your home-buying roadmap
- Discover hidden gems
Utility information
- Heating:
- Central Heating, Gas Heating
- Utilities:
- City Water System

Community details
Mayfair at Mayfair
by Scott Felder Homes, New Braunfels, TX
- 17 homes
- 24 plans
- 1,019 - 2,888 sqft
View Mayfair details
More homes in Mayfair
- Home at address 115 Trifle Trl, New Braunfels, TX 78130

Daisy
$299,990
- 3 bd
- 2.5 ba
- 1,392 sqft
115 Trifle Trl, New Braunfels, TX 78130
- Home at address 123 Trifle, New Braunfels, TX 78130

Home
$314,990
- 3 bd
- 2.5 ba
- 1,384 sqft
123 Trifle, New Braunfels, TX 78130
- Home at address 123 Trifle Trl, New Braunfels, TX 78130

Daisy
$314,990
- 3 bd
- 2.5 ba
- 1,384 sqft
123 Trifle Trl, New Braunfels, TX 78130
- Home at address 127 Trifle, New Braunfels, TX 78130

Home
$319,990
- 3 bd
- 2.5 ba
- 1,512 sqft
127 Trifle, New Braunfels, TX 78130
- Home at address 127 Trifle Trl, New Braunfels, TX 78130

Esperanza
$319,990
- 3 bd
- 2.5 ba
- 1,512 sqft
127 Trifle Trl, New Braunfels, TX 78130
- Home at address 6029 Edna Pt, New Braunfels, TX 78130

Inverness
$387,990
- 4 bd
- 2 ba
- 1,669 sqft
6029 Edna Pt, New Braunfels, TX 78130
Floor plans in Mayfair
About the builder - Scott Felder Homes
Neighborhood
Home address
- City:
- New Braunfels
- County:
- Comal
- Zip Code:
- 78130
Schools in Comal Independent School District
GreatSchools’ Summary Rating calculation is based on 4 of the school’s themed ratings, including test scores, student/academic progress, college readiness, and equity. This information should only be used as a reference. Jome is not affiliated with GreatSchools and does not endorse or guarantee this information. Please reach out to schools directly to verify all information and enrollment eligibility. Data provided by GreatSchools.org © 2025
Places of interest
Getting around
Air quality
Noise level
A Soundscore™ rating is a number between 50 (very loud) and 100 (very quiet) that tells you how loud a location is due to environmental noise.

Considering this home?
Our expert will guide your tour, in-person or virtual
Need more information?
Text or call (888) 488-9243
Financials
Estimated monthly payment
Let us help you find your dream home
How many bedrooms are you looking for?
Similar homes nearby
Recently added communities in this area
Nearby communities in New Braunfels
New homes in nearby cities
More New Homes in New Braunfels, TX
Details Communities, Ltd., MLS 1882208
IDX information is provided exclusively for personal, non-commercial use, and may not be used for any purpose other than to identify prospective properties consumers may be interested in purchasing. Information is deemed reliable but not guaranteed.
Read moreLast checked Mar 6, 7:00 am
- Jome
- New homes search
- Texas
- Greater San Antonio
- Comal County
- New Braunfels
- Mayfair
- 144 Arlo Pt, New Braunfels, TX 78130






























