


























- 4 bd
- 3 ba
- 1,892 sqft
206 Celosia Lp, Uhland, TX 78640
- Single-Family
- $152.48/sqft
- $50/monthly HOA
- Southwest facing
New Homes for Sale Near 206 Celosia Lp, Uhland, TX 78640
About this Home
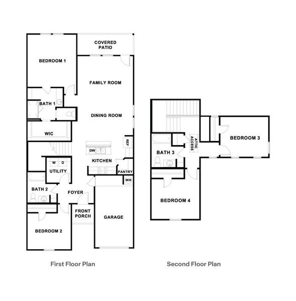
UNDER CONSTRUCTION - EST COMPLETION IN AUGUST Photos are representative of plan and may vary as built. Check out the Periwinkle floor plan features in our Marigold community in Kyle, TX. The Periwinkle is a 1,892 sq. ft. 4 bedroom, 3 bathroom two-story home.
Entering the home you step into the open foyer with access to the secondary bedrooms and full bathroom. Walking further into the home you are greeted by the spacious kitchen overlooking the dining area and living room. The kitchen features quartz countertops, stainless steel appliances, and much more. The private main bedroom, bedroom 1, is located off the living room and includes an ensuite with a huge walk-in closet and walk-in shower. Making your way upstairs you will find the additional 2 bedrooms along with a third full bathroom.
The Periwinkle also includes our Home is Connected base package that offers devices such as offers devices such as a Video Doorbell, Deako Smart Light Switch, a Honeywell Thermostat, and more.
May also be listed on the D.R. Horton website
Information last verified by Jome: Wednesday at 6:51 AM (January 7, 2026)
Home details
- Property status:
- Sold
- Lot size (acres):
- 0.11
- Size:
- 1,892 sqft
- Stories:
- 2
- Beds:
- 4
- Baths:
- 3
- Garage spaces:
- 1
- Fence:
- Wood Fence, Privacy Fence
- Facing direction:
- Southwest

Floor plan details
The Periwinkle
- 4 bd
- 3 ba
- 1,892 sqft
View The Periwinkle details
Construction details
- Builder Name:
- D.R. Horton
- Year Built:
- 2025
- Roof:
- Composition Roofing, Shingle Roofing
Home features & finishes
- Appliances:
- Exhaust Fan Vented
- Cooling:
- Central Air
- Flooring:
- Laminate FlooringCarpet Flooring
- Foundation Details:
- Slab
- Garage/Parking:
- GarageFront Entry Garage/ParkingAttached Garage
- Home amenities:
- Green Construction
- Interior Features:
- Pantry
- Kitchen:
- DishwasherMicrowave OvenDisposalKitchen IslandKitchen RangeElectric Oven
- Laundry facilities:
- Dryer
- Lighting:
- Lighting
- Property amenities:
- BackyardPatioYardSmart Home System
- Rooms:
- Primary Bedroom On MainOpen Concept FloorplanPrimary Bedroom Downstairs
- Security system:
- Security SystemSmoke Detector
Utility information
- Heating:
- Electric Heating, Water Heater, Central Heating
- Utilities:
- Electricity Available, Natural Gas Available, Internet Cable, Phone Available, HVAC, Cable Available, Sewer Available, Water Available

Community details
Marigold
by D.R. Horton, Kyle, TX
- 5 homes
- 13 plans
- 1,002 - 2,032 sqft
View Marigold details
Community amenities
- High Speed Internet Access
More homes in Marigold
- Home at address 132 Celosia Lp, Kyle, TX 78640

$276,220
Move-in ready- 4 bd
- 2 ba
- 1,484 sqft
132 Celosia Lp, Kyle, TX 78640
Floor plans in Marigold
About the builder - D.R. Horton

- 1,201communities on Jome
- 9,103homes on Jome
Neighborhood
Home address
Schools in Hays Consolidated Independent School District
- Grades PK-KGPrivatecei preschool spanish immersion school3.9 mi2381 bebee rdna
GreatSchools’ Summary Rating calculation is based on 4 of the school’s themed ratings, including test scores, student/academic progress, college readiness, and equity. This information should only be used as a reference. Jome is not affiliated with GreatSchools and does not endorse or guarantee this information. Please reach out to schools directly to verify all information and enrollment eligibility. Data provided by GreatSchools.org © 2025
Places of interest
Getting around
Air quality
Noise level
A Soundscore™ rating is a number between 50 (very loud) and 100 (very quiet) that tells you how loud a location is due to environmental noise.
Financials
Nearby communities in Uhland
Homes in Uhland by D.R. Horton
Recently added communities in this area
Other Builders in Uhland, TX
Nearby sold homes
New homes in nearby cities
More New Homes in Uhland, TX
- Jome
- New homes search
- Texas
- Greater Austin Area
- Hays County
- Uhland
- Marigold
- 206 Celosia Lp, Uhland, TX 78640
































































