






































- 3 bd
- 2 ba
- 1,965 sqft
1942 Callington Wy, Forney, TX 75126
- Single-Family
- $152.67/sqft
- $371/annual HOA
- East facing
New Homes for Sale Near 1942 Callington Wy, Forney, TX 75126
About this Home
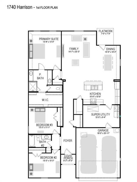
MLS# 20993533 - Built by Trophy Signature Homes - Ready Now! ~ Meet the Harrison, a three bedroom, two bathroom home blending cozy living with modern touches. A spacious primary bedroom with a walk-in closet and an en-suite bath is complemented by two secondary bedrooms guests. The large family room opens to a contemporary kitchen, ideal for both relaxed weekends and casual entertaining.
HomesUSA.com, MLS 20993533
May also be listed on the Trophy Signature Homes website
Information last verified by Jome: Today at 1:18 AM (January 17, 2026)
Home details
- Property status:
- Sold
- Lot size (acres):
- 0.14
- Size:
- 1,965 sqft
- Stories:
- 1
- Beds:
- 3
- Baths:
- 2
- Garage spaces:
- 2
- Facing direction:
- East
Construction details
- Builder Name:
- Trophy Signature Homes
- Completion Date:
- August, 2025
- Year Built:
- 2025
- Roof:
- Composition Roofing
Home features & finishes
- Construction Materials:
- BrickRockStone
- Cooling:
- Ceiling Fan(s)Central Air
- Flooring:
- Vinyl FlooringCarpet FlooringTile Flooring
- Foundation Details:
- Slab
- Garage/Parking:
- GarageAttached Garage
- Home amenities:
- Green Construction
- Interior Features:
- Ceiling-VaultedWalk-In ClosetPantry
- Kitchen:
- DishwasherMicrowave OvenOvenDisposalGas CooktopGas OvenKitchen Range
- Laundry facilities:
- DryerWasherStackable Washer/DryerUtility/Laundry Room
- Lighting:
- Exterior LightingLightingDecorative/Designer Lighting
- Property amenities:
- SidewalkBackyardPatioYardPorch
- Rooms:
- Primary Bedroom On MainOpen Concept FloorplanPrimary Bedroom Downstairs
- Security system:
- Smoke DetectorCarbon Monoxide Detector
Utility information
- Heating:
- Water Heater, Central Heating, Gas Heating, Tankless water heater
- Utilities:
- HVAC, High Speed Internet Access, Cable TV, Curbs

Community details
Devonshire at Devonshire
by Trophy Signature Homes, Forney, TX
- 26 homes
- 26 plans
- 1,504 - 3,339 sqft
View Devonshire details
Community amenities
- Club House
- Community Pool
- Park Nearby
- Sidewalks Available
- Greenbelt View
- Walking, Jogging, Hike Or Bike Trails
More homes in Devonshire
- Home at address 1189 Nora Ln, Forney, TX 75126

$274,990
Move-in ready- 3 bd
- 2 ba
- 1,530 sqft
1189 Nora Ln, Forney, TX 75126
- Home at address 1179 Nora Ln, Forney, TX 75126

$279,990
Move-in ready- 3 bd
- 2 ba
- 1,532 sqft
1179 Nora Ln, Forney, TX 75126
- Home at address 1897 Balfour Bnd, Forney, TX 75126

$279,990
Move-in ready- 3 bd
- 2 ba
- 1,532 sqft
1897 Balfour Bnd, Forney, TX 75126
- Home at address 1937 Callington Wy, Forney, TX 75126

$299,990
Move-in ready- 4 bd
- 2 ba
- 1,866 sqft
1937 Callington Wy, Forney, TX 75126
- Home at address 1947 Callington Wy, Forney, TX 75126

$299,990
Move-in ready- 4 bd
- 2 ba
- 1,866 sqft
1947 Callington Wy, Forney, TX 75126
- Home at address 1177 Nora Ln, Forney, TX 75126

$306,490
Move-in ready- 4 bd
- 2 ba
- 1,866 sqft
1177 Nora Ln, Forney, TX 75126
Floor plans in Devonshire
About the builder - Trophy Signature Homes
Neighborhood
Home address
Schools in Forney Independent School District
- Grades KG-04Publicdewberry elementary1.3 mi6800 falcon wayna
- Grades 09-12Publicforney learning academy1.4 mi600 s bois d arc stna
GreatSchools’ Summary Rating calculation is based on 4 of the school’s themed ratings, including test scores, student/academic progress, college readiness, and equity. This information should only be used as a reference. Jome is not affiliated with GreatSchools and does not endorse or guarantee this information. Please reach out to schools directly to verify all information and enrollment eligibility. Data provided by GreatSchools.org © 2025
Places of interest
Getting around
Air quality
Financials
Nearby communities in Forney
Homes in Forney by Trophy Signature Homes
Recently added communities in this area
Other Builders in Forney, TX
Nearby sold homes
New homes in nearby cities
More New Homes in Forney, TX
HomesUSA.com, MLS 20993533
IDX information is provided exclusively for personal, non-commercial use, and may not be used for any purpose other than to identify prospective properties consumers may be interested in purchasing. You may not reproduce or redistribute this data, it is for viewing purposes only. This data is deemed reliable, but is not guaranteed accurate by the MLS or NTREIS.
Read moreLast checked Jan 17, 4:00 pm
- Jome
- New homes search
- Texas
- Dallas-Fort Worth Area
- Kaufman County
- Forney
- Devonshire
- 1942 Callington Wy, Forney, TX 75126








































































