














Book your tour. Save an average of $18,473. We'll handle the rest.
- Confirmed tours
- Get matched & compare top deals
- Expert help, no pressure
- No added fees
Estimated value based on Jome data, T&C apply


















- 4 bd
- 2.5 ba
- 2,206 sqft
100 Jana Wy, Thorndale, TX 76577
Why tour with Jome?
- No pressure toursTour at your own pace with no sales pressure
- Expert guidanceGet insights from our home buying experts
- Exclusive accessSee homes and deals not available elsewhere
Jome is featured in
- Single-Family
- Under construction
- $176.14/sqft
- West facing
Home description
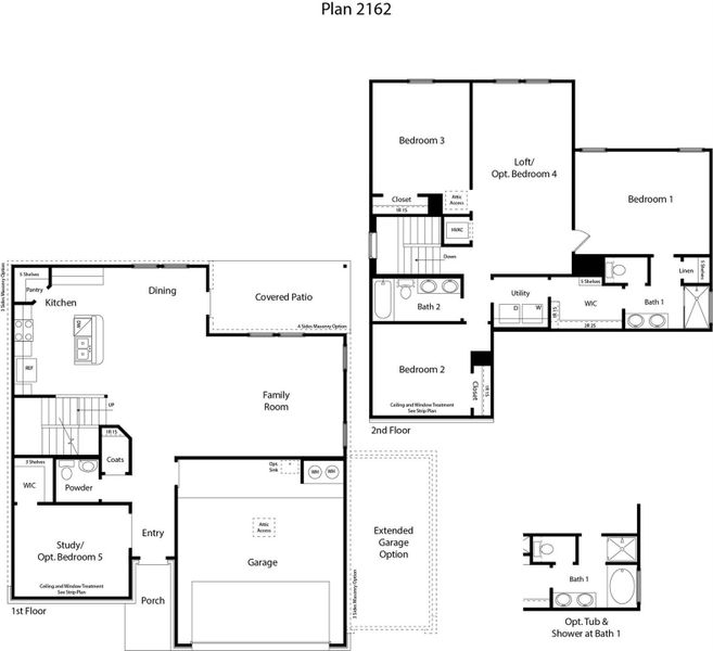
The Magnolia floorplan is a two-story option in our Thorndale, Texas Country Meadows community. Make yourself at home in this 4-5 bedroom, 2.5-bath layout. All 2,206 approximate sq. ft. is packed with modern comfort and functionality.
You’ll enjoy the first floor, which features a beautiful open-concept design. Whether you stay home in the great room, in the dining room that extends to the covered patio, or in the large kitchen which features a breakfast bar and granite countertops, you’ll never be far from the action. Access the 2-3 car garage from the entry way, that is across the hall from the study with the option of a bedroom with a walk-in closet.
Heading up the stairs, you’ll find the perfect place to rest or create bonus spaces within the carpeted 3 bedrooms and the loft that can be opted for another bedroom. The laundry room is also placed in the upstairs hall, so laundry day will be a breeze with this practical placement. The secondary bathroom is placed between the secondary bedrooms. In the primary bedroom, there’s an attached bathroom with a walk-in shower that can be opted for a tub and shower, and a walk-in closet with access to the laundry room, making getting ready for your day or bed stress-free.
Want to learn more about the Magnolia floorplan? Contact us today!
Nexthome Tropicana Realty, MLS 6420621
May also be listed on the D.R. Horton website
Information last verified by Jome: Yesterday at 7:10 AM (December 6, 2025)
Home highlights
Book your tour. Save an average of $18,473. We'll handle the rest.
We collect exclusive builder offers, book your tours, and support you from start to housewarming.
- Confirmed tours
- Get matched & compare top deals
- Expert help, no pressure
- No added fees
Estimated value based on Jome data, T&C apply
Home details
- Property status:
- Under construction
- Lot size (acres):
- 0.27
- Size:
- 2,206 sqft
- Stories:
- 2
- Beds:
- 4
- Baths:
- 2.5
- Garage spaces:
- 3
- Fence:
- Wood Fence, Privacy Fence
- Facing direction:
- West
Construction details
- Builder Name:
- D.R. Horton
- Year Built:
- 2024
- Roof:
- Asphalt Roofing, Shingle Roofing
Home features & finishes
- Construction Materials:
- Brick
- Cooling:
- Ceiling Fan(s)Central Air
- Flooring:
- Carpet FlooringTile Flooring
- Foundation Details:
- Slab
- Garage/Parking:
- GarageAttached Garage
- Home amenities:
- Green Construction
- Interior Features:
- Walk-In ClosetFoyerPantry
- Kitchen:
- Stainless Steel AppliancesGranite countertop
- Laundry facilities:
- Utility/Laundry Room
- Lighting:
- Lighting
- Property amenities:
- SodBackyardPatioSmart Home SystemPorch
- Rooms:
- KitchenDining RoomFamily RoomOpen Concept Floorplan
Utility information
- Heating:
- Central Heating
- Utilities:
- Electricity Available, Phone Available, HVAC, Cable Available, Sewer Available, Water Available

Community details
Country Meadows
by D.R. Horton, Thorndale, TX
- 8 homes
- 6 plans
- 2,024 - 2,572 sqft
View Country Meadows details
More homes in Country Meadows
Floor plans in Country Meadows
About the builder - D.R. Horton
Neighborhood
Home address
Schools in Thorndale Independent School District
GreatSchools’ Summary Rating calculation is based on 4 of the school’s themed ratings, including test scores, student/academic progress, college readiness, and equity. This information should only be used as a reference. Jome is not affiliated with GreatSchools and does not endorse or guarantee this information. Please reach out to schools directly to verify all information and enrollment eligibility. Data provided by GreatSchools.org © 2025
Places of interest
Getting around
Natural hazards risk
Climate hazards can impact homes and communities, with risks varying by location. These scores reflect the potential impact of natural disasters and climate-related risks on Milam County
Provided by FEMA

Considering this home?
Our expert will guide your tour, in-person or virtual
Need more information?
Text or call (888) 486-2818
Financials
Estimated monthly payment
Similar homes nearby
Recently added communities in this area
Nearby communities in Thorndale
New homes in nearby cities
More New Homes in Thorndale, TX
Nexthome Tropicana Realty, MLS 6420621
Based on information from the Austin Board of REALTORS® (alternatively, from ACTRIS) for the period through 08/13/2024. Neither the Board nor ACTRIS guarantees or is in any way responsible for its accuracy. All data is provided “AS IS” and with all faults. Data maintained by the Board or ACTRIS may not reflect all real estate activity in the market. Information being provided is for consumers’ personal, non-commercial use and may not be used for any purpose other than to identify prospective properties consumers may be interested in purchasing. The Digital Millennium Copyright Act of 1998, 17 U.S.C. § 512 (the “DMCA”) provides recourse for copyright owners who believe that material appearing on the Internet infringes their rights under U.S. copyright law. If you believe in good faith that any content or material made available in connection with our website or services infringes your copyright, you (or your agent) may send us a notice requesting that the content or material be removed, or access to it blocked. Notices must be sent in writing by email to DMCAnotice@MLSGrid.com. The DMCA requires that your notice of alleged copyright infringement include the following information: (1) description of the copyrighted work that is the subject of claimed infringement; (2) description of the alleged infringing content and information sufficient to permit us to locate the content; (3) contact information for you, including your address, telephone number and email address; (4) a statement by you that you have a good faith belief that the content in the manner complained of is not authorized by the copyright owner, or its agent, or by the operation of any law; (5) a statement by you, signed under penalty of perjury, that the information in the notification is accurate and that you have the authority to enforce the copyrights that are claimed to be infringed; and (6) a physical or electronic signature of the copyright owner or a person authorized to act on the copyright owner’s behalf. Failure to include all of the above information may result in the delay of the processing of your complaint.
Read moreLast checked Dec 7, 12:40 am
- Home
- New homes
- Texas
- Milam County
- Thorndale
- Country Meadows
- 100 Jana Wy, Thorndale, TX 76577




























