














Book your tour. Save an average of $18,473. We'll handle the rest.
We collect exclusive builder offers, book your tours, and support you from start to housewarming.
- Confirmed tours
- Get matched & compare top deals
- Expert help, no pressure
- No added fees
Estimated value based on Jome data, T&C apply




















- 3 bd
- 2.5 ba
- 2,306 sqft
115 Cherry Blossom Ln, Taylor, TX 76574
Why tour with Jome?
- No pressure toursTour at your own pace with no sales pressure
- Expert guidanceGet insights from our home buying experts
- Exclusive accessSee homes and deals not available elsewhere
Jome is featured in
- Single-Family
- Quick move-in
- $147.01/sqft
- $35/monthly HOA
Home description
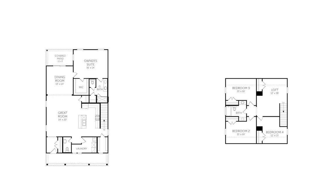
The Jasper floor plan offers a thoughtfully designed two-story layout, featuring 4 bedrooms and 2.5 bathrooms, providing ample space for both relaxation and functionality. On the first floor, you’ll find a generous owner's suite complete with a spacious walk-in closet and an elegant private bathroom, creating a secluded retreat. The great room, which seamlessly flows into the dining room and kitchen, offers an inviting space for gatherings or casual family nights. A covered patio off the dining area allows for effortless indoor-outdoor living, while a conveniently located laundry room and half bathroom enhance day-to-day functionality.The second floor opens to additional family spaces, with three well-sized bedrooms that each provide comfortable accommodations. A versatile loft area adds flexibility, making it an ideal space for a home office, playroom, or media area. The secondary bedrooms share a full bath with easy access, making this floor perfect for family members or guests.With options for a one- or two-car garage, the Jasper floor plan caters to your storage and parking needs while maintaining a beautiful and functional design.*Photos and Virtual Tours may be of the same home plan located in a different neighborhood. Features and elevations may vary.
May also be listed on the Dream Finders Homes website
Information last verified by Jome: Today at 5:19 AM (March 7, 2026)
Home highlights
Mixed‑use retail and entertainment center north of Austin with shops, dining, live events and walkable energy.
Book your tour. Save an average of $18,473. We'll handle the rest.
We collect exclusive builder offers, book your tours, and support you from start to housewarming.
- Confirmed tours
- Get matched & compare top deals
- Expert help, no pressure
- No added fees
Estimated value based on Jome data, T&C apply
Home details
- Property status:
- Move-in ready
- Collection:
- Castlewood Single Family
- Lot size (acres):
- 0.17
- Lot width (feet):
- 60
- Size:
- 2,306 sqft
- Stories:
- 2
- Beds:
- 3
- Baths:
- 2
- Half baths:
- 1
- Garage spaces:
- 1
- Fence:
- Wood Fence
- Facing direction:
- Southeast

Floor plan details
Jasper - Single Family Homes
- 4 bd
- 2.5 ba
- 2,306 sqft
View Jasper - Single Family Homes details
Construction details
- Builder Name:
- Dream Finders Homes
- Year Built:
- 2025
- Roof:
- Composition Roofing, Shingle Roofing
Home features & finishes
- Cooling:
- Central Air
- Flooring:
- Carpet FlooringTile Flooring
- Foundation Details:
- Slab
- Garage/Parking:
- GarageFront Entry Garage/ParkingTandem Parking
- Interior Features:
- Ceiling-HighWalk-In ClosetPantryLoft
- Kitchen:
- Range-Free StandingDishwasherMicrowave OvenOvenDisposalQuartz countertopKitchen IslandElectric Oven
- Laundry facilities:
- WasherUtility/Laundry Room
- Lighting:
- Lighting
- Property amenities:
- BackyardPatioPorch
- Rooms:
- Primary Bedroom On MainKitchenDining RoomFamily RoomOpen Concept FloorplanPrimary Bedroom Downstairs
- Security system:
- Smoke Detector

Get a consultation with our New Homes Expert
- See how your home builds wealth
- Plan your home-buying roadmap
- Discover hidden gems
Utility information
- Heating:
- Electric Heating, Central Heating
- Utilities:
- Electricity Available, Underground Utilities, Water Available

Community details
Castlewood
by Dream Finders Homes, Taylor, TX
- 16 homes
- 9 plans
- 1,482 - 2,306 sqft
View Castlewood details
Community amenities
- Playground
- Park Nearby
- Picnic Area
More homes in Castlewood
- Home at address 103 Cherry Blossom Ln, Taylor, TX 76574

Hampton
Castlewood Single Family
$284,000
- 3 bd
- 2 ba
- 1,482 sqft
103 Cherry Blossom Ln, Taylor, TX 76574
- Home at address 112 Elm Branch Trl, Taylor, TX 76574

Crawford II
Castlewood Single Family
$309,000
- 3 bd
- 2.5 ba
- 2,010 sqft
112 Elm Branch Trl, Taylor, TX 76574
- Home at address 107 Elm Branch Trl, Taylor, TX 76574

Hampton
Castlewood Single Family
$315,000
- 3 bd
- 2 ba
- 1,482 sqft
107 Elm Branch Trl, Taylor, TX 76574
- Home at address 101 Elm Branch Trl, Taylor, TX 76574

Washington
Castlewood Single Family
$324,000
- 3 bd
- 2.5 ba
- 2,110 sqft
101 Elm Branch Trl, Taylor, TX 76574
- Home at address 110 Wesley Miller Ln, Taylor, TX 76574

Malind
Castlewood Single Family
$328,376
- 3 bd
- 2.5 ba
- 1,549 sqft
110 Wesley Miller Ln, Taylor, TX 76574
- Home at address 111 Elm Branch Trl, Taylor, TX 76574

Jasper
Castlewood Single Family
$339,000
- 3 bd
- 2.5 ba
- 2,306 sqft
111 Elm Branch Trl, Taylor, TX 76574
Floor plans in Castlewood
- View details for Malind - Single Family Homes

Malind - Single Family Homes
Castlewood Single Family
$286,990+- 3 bd
- 2.5 ba
- 1,549 sqft
- View details for Hampton - Single Family Homes

Hampton - Single Family Homes
Castlewood Single Family
$289,991+- 3 bd
- 2 ba
- 1,482 sqft
About the builder - Dream Finders Homes

- 337communities on Jome
- 1,573homes on Jome
Neighborhood
Home address
- City:
- Taylor
- County:
- Williamson
- Zip Code:
- 76574
Schools in Taylor Independent School District
GreatSchools’ Summary Rating calculation is based on 4 of the school’s themed ratings, including test scores, student/academic progress, college readiness, and equity. This information should only be used as a reference. Jome is not affiliated with GreatSchools and does not endorse or guarantee this information. Please reach out to schools directly to verify all information and enrollment eligibility. Data provided by GreatSchools.org © 2025
Places of interest
Getting around
Air quality

Considering this home?
Our expert will guide your tour, in-person or virtual
Need more information?
Text or call (888) 488-9243
Financials
Estimated monthly payment
Let us help you find your dream home
How many bedrooms are you looking for?
Similar homes nearby
Recently added communities in this area
Nearby communities in Taylor
New homes in nearby cities
More New Homes in Taylor, TX
- Jome
- New homes search
- Texas
- Greater Austin Area
- Williamson County
- Taylor
- Castlewood
- Castlewood Single Family
- 115 Cherry Blossom Ln, Taylor, TX 76574































