



- 3 bd
- 2.5 ba
- 2,110 sqft
106 Cherry Blossom Ln, Taylor, TX 76574
- Single-Family
- $184.08/sqft
- Northwest facing
- 62 days on Jome
New Homes for Sale Near 106 Cherry Blossom Ln, Taylor, TX 76574
About this Home
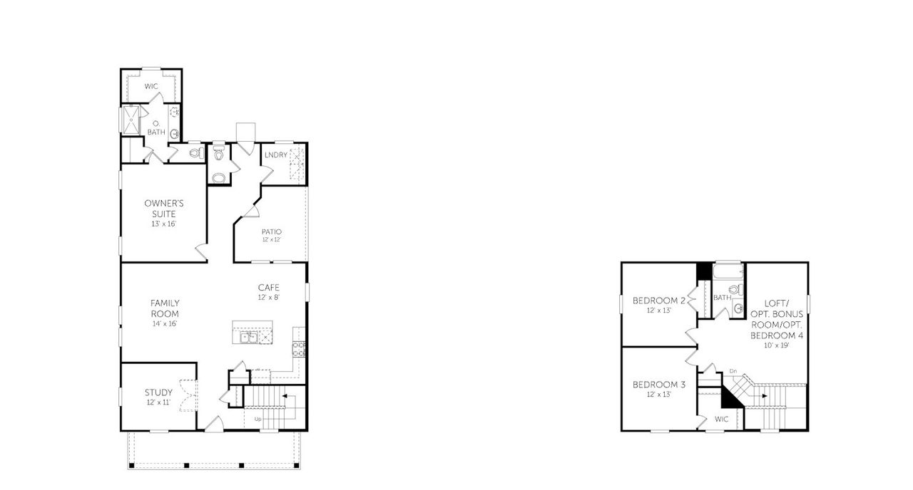
The Washington floorplan is a beautifully designed two-story home featuring 3 bedrooms, 2.5 bathrooms, and a one or two-car garage. The first floor is highlighted by a spacious owner’s suite complete with a large walk-in closet and a private en-suite bathroom, offering the perfect retreat for relaxation. Adjacent to the suite is an open and inviting family room, flowing seamlessly into the café and modern kitchen, making it an ideal layout for entertaining and daily living. A private study at the front of the home creates an excellent space for working from home or pursuing hobbies, while the cozy patio extends your living area outdoors.Upstairs, two additional bedrooms with generous dimensions provide plenty of space for family or guests. A shared full bathroom is thoughtfully positioned for convenience, while the loft area adds flexibility as a second living space, playroom, or an optional fourth bedroom to suit your needs. The Washington floorplan’s well-balanced design prioritizes comfort, style, and functionality, creating a home that’s as inviting as it is practical for modern living.
May also be listed on the Dream Finders Homes website
Information last verified by Jome: Thursday at 5:04 AM (March 19, 2026)
Home details
- Property status:
- Sold
- Collection:
- Castlewood Single Family
- Size:
- 2,110 sqft
- Stories:
- 2
- Beds:
- 3
- Baths:
- 2
- Half baths:
- 1
- Garage spaces:
- 2
- Facing direction:
- Northwest

Floor plan details
Washington - Single Family Homes
- 3 bd
- 2.5 ba
- 2,110 sqft
View Washington - Single Family Homes details
Construction details
- Builder Name:
- Dream Finders Homes
Home features & finishes
- Garage/Parking:
- Garage
- Interior Features:
- Walk-In ClosetLoft
- Kitchen:
- Kitchen Island
- Laundry facilities:
- Utility/Laundry Room
- Rooms:
- Primary Bedroom On MainKitchenOffice/StudyFamily RoomOpen Concept FloorplanPrimary Bedroom Downstairs

Community details
Castlewood
by Dream Finders Homes, Taylor, TX
- 28 homes
- 12 plans
- 1,482 - 2,306 sqft
View Castlewood details
More homes in Castlewood
- Home at address 109 Backwood Pass, Taylor, TX 76574
Savings$260,490
Move-in ready- 3 bd
- 2 ba
- 1,508 sqft
109 Backwood Pass, Taylor, TX 76574
- Home at address 205 Backwood Pass, Taylor, TX 76574
Savings$260,490
Move-in ready- 3 bd
- 2 ba
- 1,508 sqft
205 Backwood Pass, Taylor, TX 76574
- Home at address 213 Backwood Pass, Taylor, TX 76574
Savings$260,490
Move-in ready- 3 bd
- 2 ba
- 1,508 sqft
213 Backwood Pass, Taylor, TX 76574
- Home at address 111 Backwood Pass, Taylor, TX 76574
Savings$260,490
Move-in ready- 3 bd
- 2 ba
- 1,508 sqft
111 Backwood Pass, Taylor, TX 76574
- Home at address 207 Backwood Pass, Taylor, TX 76574
Savings$260,490
Move-in ready- 3 bd
- 2 ba
- 1,508 sqft
207 Backwood Pass, Taylor, TX 76574
- Home at address 303 Backwood Pass, Taylor, TX 76574
Savings$260,490
Move-in ready- 3 bd
- 2 ba
- 1,508 sqft
303 Backwood Pass, Taylor, TX 76574
Floor plans in Castlewood
- View details for Daylily - Paired Cottages

Daylily - Paired Cottages
SavingsCastlewood Paired Cottages
$259,990+- 3 bd
- 2 ba
- 1,508 sqft
- View details for Clover - Paired Cottages

Clover - Paired Cottages
SavingsCastlewood Paired Cottages
$261,990+- 3 bd
- 2 ba
- 1,532 sqft
About the builder - Dream Finders Homes

- 333communities on Jome
- 1,548homes on Jome
Neighborhood
Home address
- City:
- Taylor
- County:
- Williamson
- Zip Code:
- 76574
Schools in Taylor Independent School District
GreatSchools’ Summary Rating calculation is based on 4 of the school’s themed ratings, including test scores, student/academic progress, college readiness, and equity. This information should only be used as a reference. Jome is not affiliated with GreatSchools and does not endorse or guarantee this information. Please reach out to schools directly to verify all information and enrollment eligibility. Data provided by GreatSchools.org © 2025
Places of interest
Getting around
Air quality
Financials
Nearby communities in Taylor
Homes in Taylor by Dream Finders Homes
Recently added communities in this area
Other Builders in Taylor, TX
Nearby sold homes
New homes in nearby cities
More New Homes in Taylor, TX
- Jome
- New homes search
- Texas
- Greater Austin Area
- Williamson County
- Taylor
- Castlewood
- Castlewood Single Family
- 106 Cherry Blossom Ln, Taylor, TX 76574

























































