

























- 4 bd
- 3 ba
- 1,882 sqft
1137 Wheatgrass Mews, Celina, TX 75009
- Single-Family
- $210.77/sqft
- $950/annual HOA
- West facing
New Homes for Sale Near 1137 Wheatgrass Mews, Celina, TX 75009
About this Home
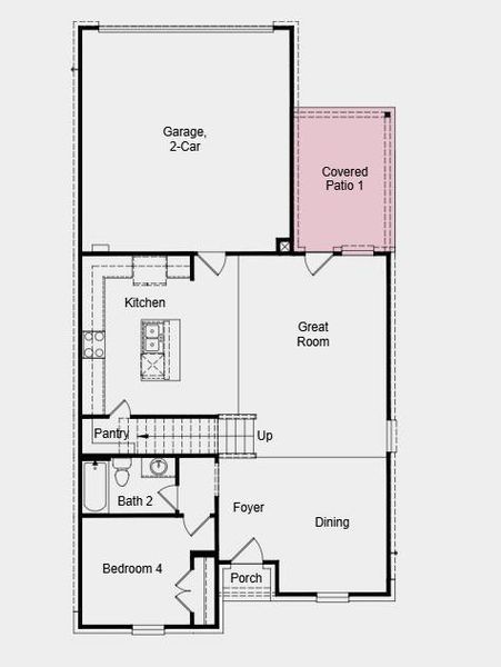
What's Special: West Facing Lot - Close to Trails - Covered Patio. New Construction – Ready Now! Built by Taylor Morrison, America’s Most Trusted Homebuilder. Welcome to The Bruckner at 1137 Wheatgrass Mews in Cross Creek Meadows, a bright and inviting two-story home designed for comfort and connection. The open-concept kitchen, dining area, and living room create a natural flow that makes everyday living feel easy and enjoyable. A main-floor guest bedroom offers flexibility for visitors or work-from-home needs. Upstairs, the private primary suite is joined by two additional bedrooms, providing space for everyone. A covered outdoor living area adds a peaceful spot to unwind or gather. Cross Creek Meadows is a friendly neighborhood with nearby parks, shops, and everyday conveniences. Structural options added included: Covered outdoor living. Photos are for representative purposes only. MLS#21052525
Alexander Properties, MLS 21052525
May also be listed on the Taylor Morrison website
Information last verified by Jome: Today at 1:36 AM (March 3, 2026)
Home details
- Property status:
- Sold
- Collection:
- Cross Creek Meadows 40s
- Lot size (acres):
- 0.10
- Size:
- 1,882 sqft
- Stories:
- 2
- Beds:
- 4
- Baths:
- 3
- Garage spaces:
- 2
- Fence:
- Wood Fence
- Facing direction:
- West
Construction details
- Builder Name:
- Taylor Morrison
- Completion Date:
- September, 2025
- Year Built:
- 2025
- Roof:
- Roof Gutter, Composition Roofing
Home features & finishes
- Construction Materials:
- BrickRockStone
- Cooling:
- Central Air
- Flooring:
- Ceramic FlooringVinyl FlooringCarpet FlooringTile Flooring
- Foundation Details:
- Slab
- Garage/Parking:
- Door OpenerGarageRear Entry Garage/ParkingAttached Garage
- Interior Features:
- Walk-In ClosetFoyerPantryLoft
- Kitchen:
- DishwasherMicrowave OvenGas CooktopKitchen Island
- Laundry facilities:
- DryerWasherStackable Washer/DryerUtility/Laundry Room
- Property amenities:
- PatioPorch
- Rooms:
- KitchenDining RoomFamily RoomPrimary Bedroom Upstairs
- Security system:
- Fire Alarm SystemSmoke DetectorCarbon Monoxide Detector
Utility information
- Heating:
- Gas Heating
- Utilities:
- Other

Community details
Cross Creek Meadows at Cross Creek Meadows
by Taylor Morrison, Celina, TX
- 11 homes
- 17 plans
- 1,305 - 3,452 sqft
View Cross Creek Meadows details
Community amenities
- Playground
- Club House
- Community Pool
- Park Nearby
- Sidewalks Available
- Greenbelt View
- Walking, Jogging, Hike Or Bike Trails
More homes in Cross Creek Meadows
- Home at address 1124 Broomsedge Mews, Celina, TX 75009

$388,324
Under construction- 4 bd
- 3 ba
- 1,904 sqft
1124 Broomsedge Mews, Celina, TX 75009
- Home at address 1128 Beautyberry Ln, Celina, TX 75009

$416,145
Under construction- 4 bd
- 3 ba
- 1,882 sqft
1128 Beautyberry Ln, Celina, TX 75009
- Home at address 1133 Beebalm Mews, Celina, TX 75009

$419,250
Under construction- 4 bd
- 3 ba
- 1,903 sqft
1133 Beebalm Mews, Celina, TX 75009
- Home at address 1112 Beautyberry Ln, Celina, TX 75009

$435,300
Move-in ready- 4 bd
- 2.5 ba
- 1,930 sqft
1112 Beautyberry Ln, Celina, TX 75009
- Home at address 1105 Beebalm Mews, Celina, TX 75009

$439,200
Under construction- 4 bd
- 3 ba
- 1,932 sqft
1105 Beebalm Mews, Celina, TX 75009
- Home at address 1149 Beautyberry Ln, Celina, TX 75009

$444,450
Under construction- 4 bd
- 3 ba
- 1,930 sqft
1149 Beautyberry Ln, Celina, TX 75009
Floor plans in Cross Creek Meadows
About the builder - Taylor Morrison

- 320communities on Jome
- 1,446homes on Jome
Neighborhood
Home address
Schools in Celina Independent School District
- Grades KG-05Publicbobby ray & afton martin elementary3.8 mi2905 n louisiana drna
- Grades M-MPublicnew elementary4.0 mi2120 coventry drna
GreatSchools’ Summary Rating calculation is based on 4 of the school’s themed ratings, including test scores, student/academic progress, college readiness, and equity. This information should only be used as a reference. Jome is not affiliated with GreatSchools and does not endorse or guarantee this information. Please reach out to schools directly to verify all information and enrollment eligibility. Data provided by GreatSchools.org © 2025
Places of interest
Getting around
Air quality
Financials
Nearby communities in Celina
Homes in Celina by Taylor Morrison
Recently added communities in this area
Other Builders in Celina, TX
Nearby sold homes
New homes in nearby cities
More New Homes in Celina, TX
Alexander Properties, MLS 21052525
IDX information is provided exclusively for personal, non-commercial use, and may not be used for any purpose other than to identify prospective properties consumers may be interested in purchasing. You may not reproduce or redistribute this data, it is for viewing purposes only. This data is deemed reliable, but is not guaranteed accurate by the MLS or NTREIS.
Read moreLast checked Mar 3, 4:00 pm
- Jome
- New homes search
- Texas
- Dallas-Fort Worth Area
- Collin County
- Celina
- Cross Creek Meadows
- Cross Creek Meadows 40s
- 1137 Wheatgrass Mews, Celina, TX 75009




































































