














Book your tour. Save an average of $18,473. We'll handle the rest.
We collect exclusive builder offers, book your tours, and support you from start to housewarming.
- Confirmed tours
- Get matched & compare top deals
- Expert help, no pressure
- No added fees
Estimated value based on Jome data, T&C apply






















Why tour with Jome?
- No pressure toursTour at your own pace with no sales pressure
- Expert guidanceGet insights from our home buying experts
- Exclusive accessSee homes and deals not available elsewhere
Jome is featured in
- Single-Family
- Quick move-in
- $183.33/sqft
- $750/annual HOA
Home description
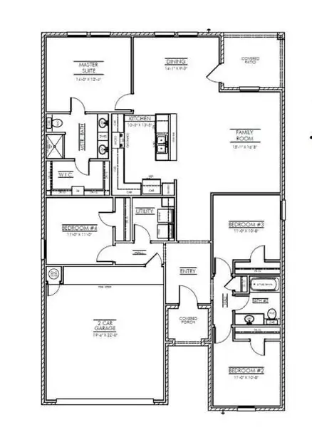
MLS# 21148238 - Built by Bluehaven Homes - Ready Now! ~ *** Rates as low as 2.99% * conditions apply, check with Builder for details! + $17k in Included Upgrades *** Welcome to your dream home! This stunning 4-bedroom, 2-bathroom residence spans 1,800 square feet, offering a perfect blend of style and functionality. Step inside to discover an inviting open concept living area, ideal for both everyday living and entertaining. The spacious living room flows seamlessly into the dining area and gourmet kitchen, where you'll find custom cabinets that provide ample storage and a touch of elegance. The secluded primary retreat, featuring a generous walk-in closet and a luxurious en-suite bathroom. Three additional bedrooms offer flexibility for growing, guests, or a home office. Enjoy outdoor living at its finest with a covered patio, perfect for relaxing or hosting summer barbecues. Situated in the desirable LakePointe neighborhood, this home offers convenience and charm. Don't miss the opportunity to make this exquisite property your own!
HomesUSA.com, MLS 21148238
May also be listed on the BLUEHAVEN Homes website
Information last verified by Jome: Yesterday at 1:44 AM (March 7, 2026)
Home highlights
Peaceful Dallas lake with trails, birdwatching, and historic neighborhoods just minutes from the city center.
Book your tour. Save an average of $18,473. We'll handle the rest.
We collect exclusive builder offers, book your tours, and support you from start to housewarming.
- Confirmed tours
- Get matched & compare top deals
- Expert help, no pressure
- No added fees
Estimated value based on Jome data, T&C apply
Home details
- Property status:
- Move-in ready
- Lot size (acres):
- 0.14
- Lot width (feet):
- 50
- Size:
- 1,800 sqft
- Stories:
- 1
- Beds:
- 4
- Baths:
- 2
- Garage spaces:
- 2
- Fence:
- Wood Fence
- Facing direction:
- Southeast
Construction details
- Builder Name:
- BLUEHAVEN Homes
- Year Built:
- 2024
- Roof:
- Roof Gutter, Composition Roofing
Home features & finishes
- Appliances:
- Sprinkler System
- Construction Materials:
- Brick
- Cooling:
- Central Air
- Flooring:
- Vinyl FlooringCarpet FlooringTile Flooring
- Foundation Details:
- Slab
- Garage/Parking:
- GarageAttached Garage
- Home amenities:
- Green Construction
- Interior Features:
- Walk-In ClosetPantry
- Kitchen:
- DishwasherMicrowave OvenDisposalKitchen CountertopKitchen Island
- Laundry facilities:
- DryerWasherUtility/Laundry Room
- Lighting:
- Decorative/Designer Lighting
- Property amenities:
- BackyardIrrigationPatioPorch
- Rooms:
- Primary Bedroom On MainKitchenDining RoomFamily RoomPrimary Bedroom Downstairs
- Security system:
- Smoke DetectorCarbon Monoxide Detector

Get a consultation with our New Homes Expert
- See how your home builds wealth
- Plan your home-buying roadmap
- Discover hidden gems
Utility information
- Heating:
- Electric Heating, Central Heating
- Utilities:
- HVAC, City Water System, Cable TV

Community details
Lakepointe
by BLUEHAVEN Homes, Lavon, TX
- 3 homes
- 5 plans
- 1,800 - 2,977 sqft
View Lakepointe details
Community amenities
- Playground
- Community Pool
- Park Nearby
- Fishing Pond
- Sidewalks Available
- Walking, Jogging, Hike Or Bike Trails
More homes in Lakepointe
- Home at address 572 Oak Crk, Lavon, TX 75166

Nevada
$339,999
- 4 bd
- 2 ba
- 2,000 sqft
572 Oak Crk, Lavon, TX 75166
- Home at address 442 Rockstream Dr, Lavon, TX 75166

New Hampshire
$379,999
- 4 bd
- 3 ba
- 2,400 sqft
442 Rockstream Dr, Lavon, TX 75166
Floor plans in Lakepointe
About the builder - BLUEHAVEN Homes
Neighborhood
Home address
Schools in Community Independent School District
- Grades PK-05Publicmary lou dodson elementary1.9 mi300 e lavon trail pkwyna
- Grades M-MPubliccommunity trails middle1.9 mi900 rosewood drna
GreatSchools’ Summary Rating calculation is based on 4 of the school’s themed ratings, including test scores, student/academic progress, college readiness, and equity. This information should only be used as a reference. Jome is not affiliated with GreatSchools and does not endorse or guarantee this information. Please reach out to schools directly to verify all information and enrollment eligibility. Data provided by GreatSchools.org © 2025
Places of interest
Getting around
Air quality
Noise level
A Soundscore™ rating is a number between 50 (very loud) and 100 (very quiet) that tells you how loud a location is due to environmental noise.

Considering this home?
Our expert will guide your tour, in-person or virtual
Need more information?
Text or call (888) 488-9243
Financials
Estimated monthly payment
Let us help you find your dream home
How many bedrooms are you looking for?
Similar homes nearby
Recently added communities in this area
Nearby communities in Lavon
New homes in nearby cities
More New Homes in Lavon, TX
HomesUSA.com, MLS 21148238
IDX information is provided exclusively for personal, non-commercial use, and may not be used for any purpose other than to identify prospective properties consumers may be interested in purchasing. You may not reproduce or redistribute this data, it is for viewing purposes only. This data is deemed reliable, but is not guaranteed accurate by the MLS or NTREIS.
Read moreLast checked Mar 7, 10:00 pm
- Jome
- New homes search
- Texas
- Dallas-Fort Worth Area
- Collin County
- Lavon
- Lakepointe
- 519 Chase Creek Dr, Lavon, TX 75166































