














Book your tour. Save an average of $18,473. We'll handle the rest.
- Confirmed tours
- Get matched & compare top deals
- Expert help, no pressure
- No added fees
Estimated value based on Jome data, T&C apply































- 4 bd
- 4 ba
- 3,682 sqft
613 Cork Dr, Celina, TX 75009
Why tour with Jome?
- No pressure toursTour at your own pace with no sales pressure
- Expert guidanceGet insights from our home buying experts
- Exclusive accessSee homes and deals not available elsewhere
Jome is featured in
- Single-Family
- Quick move-in
- $189.84/sqft
- $850/annual HOA
Home description
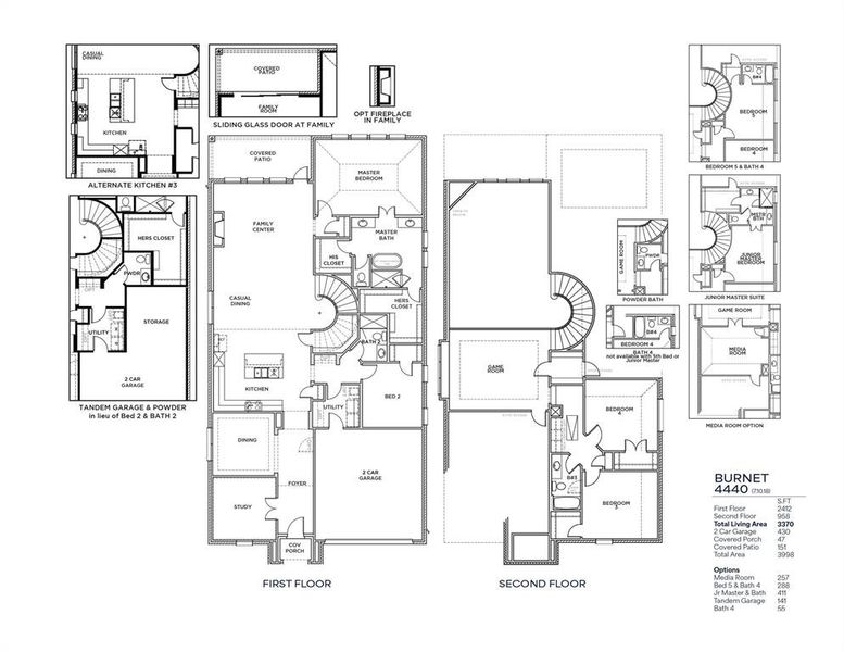
Burnet elevation features a stunning exterior with light brick, Country French stone, and unique cedar accents. Inside you’ll find an elegant curved staircase, modern center fireplace, sliding glass doors, and soaring ceilings in the Family Room. Chef’s kitchen boasts huge island, light stained cabinetry, and white quartz countertops. A freestanding tub, large shower, and his and hers closets are featured in the Main Bedroom. Light wood floors bring warmth to the main areas on the first floor. Media Room and 4th full bath have been added upstairs. Upgraded tech & lighting package. Boutique, hilly community with Low HOA dues!
Hunter Dehn Realty, MLS 21145411
May also be listed on the Shaddock Homes website
Information last verified by Jome: Today at 1:48 AM (January 17, 2026)
Home highlights
Book your tour. Save an average of $18,473. We'll handle the rest.
We collect exclusive builder offers, book your tours, and support you from start to housewarming.
- Confirmed tours
- Get matched & compare top deals
- Expert help, no pressure
- No added fees
Estimated value based on Jome data, T&C apply
Home details
- Property status:
- Move-in ready
- Lot size (acres):
- 0.12
- Size:
- 3,682 sqft
- Stories:
- 2
- Beds:
- 4
- Baths:
- 4
- Garage spaces:
- 2
- Fence:
- Wood Fence

Floor plan details
Burnet - SH 4440
- 4 bd
- 3 ba
- 3,370 sqft
View Burnet - SH 4440 details
Construction details
- Builder Name:
- Shaddock Homes
- Completion Date:
- January, 2026
- Year Built:
- 2025
- Roof:
- Composition Roofing
Home features & finishes
- Appliances:
- Exhaust Fan VentedSprinkler System
- Construction Materials:
- BrickRockStone
- Cooling:
- Ceiling Fan(s)Central Air
- Flooring:
- Ceramic FlooringWood FlooringCarpet FlooringTile Flooring
- Foundation Details:
- Pillar/Post/Pier
- Garage/Parking:
- Door OpenerGarageFront Entry Garage/ParkingAttached Garage
- Home amenities:
- Green Construction
- Interior Features:
- Ceiling-VaultedWalk-In ClosetFoyer
- Kitchen:
- DishwasherMicrowave OvenOvenDisposalGas CooktopConvection OvenGas OvenKitchen RangeElectric Oven
- Laundry facilities:
- Utility/Laundry Room
- Lighting:
- Decorative/Designer Lighting
- Property amenities:
- SidewalkGas Log FireplacePatioFireplaceAlleySmart Home SystemPorch
- Rooms:
- KitchenGame RoomMedia RoomOffice/StudyDining RoomFamily RoomPrimary Bedroom Downstairs
- Security system:
- Smoke DetectorCarbon Monoxide Detector

Get a consultation with our New Homes Expert
- See how your home builds wealth
- Plan your home-buying roadmap
- Discover hidden gems
Utility information
- Heating:
- Water Heater, Central Heating, Gas Heating, Tankless water heater
- Utilities:
- Underground Utilities, HVAC, City Water System, High Speed Internet Access, Cable TV

Community details
Hillside Village at Hillside Village
by Shaddock Homes, Celina, TX
- 6 homes
- 16 plans
- 2,308 - 3,972 sqft
View Hillside Village details
Community amenities
- Playground
- Community Pool
- Greenbelt View
- Walking, Jogging, Hike Or Bike Trails
More homes in Hillside Village
- Home at address 616 Dublin Dr, Celina, TX 75009

Westlake - SH 5415
$729,000
- 5 bd
- 4 ba
- 3,857 sqft
616 Dublin Dr, Celina, TX 75009
- Home at address 512 Donegal Dr, Celina, TX 75009

Home
$744,900
- 4 bd
- 4 ba
- 3,430 sqft
512 Donegal Dr, Celina, TX 75009
- Home at address 520 Wexford Dr, Celina, TX 75009

Pinehurst - SH 5423
$749,000
- 5 bd
- 4 ba
- 3,503 sqft
520 Wexford Dr, Celina, TX 75009
- Home at address 620 Donegal Dr, Celina, TX 75009

Benbrook - SH 4459
Contact for price
- 5 bd
- 5.5 ba
- 3,972 sqft
620 Donegal Dr, Celina, TX 75009
Floor plans in Hillside Village
About the builder - Shaddock Homes
Neighborhood
Home address
Schools in Celina Independent School District
- Grades M-MPublicnew elementary2.6 mi2120 coventry drna
- Grades KG-05Publicbobby ray & afton martin elementary3.7 mi2905 n louisiana drna
GreatSchools’ Summary Rating calculation is based on 4 of the school’s themed ratings, including test scores, student/academic progress, college readiness, and equity. This information should only be used as a reference. Jome is not affiliated with GreatSchools and does not endorse or guarantee this information. Please reach out to schools directly to verify all information and enrollment eligibility. Data provided by GreatSchools.org © 2025
Places of interest
Getting around
Air quality
Noise level
A Soundscore™ rating is a number between 50 (very loud) and 100 (very quiet) that tells you how loud a location is due to environmental noise.

Considering this home?
Our expert will guide your tour, in-person or virtual
Need more information?
Text or call (888) 486-2818
Financials
Estimated monthly payment
Let us help you find your dream home
How many bedrooms are you looking for?
Similar homes nearby
Recently added communities in this area
Nearby communities in Celina
New homes in nearby cities
More New Homes in Celina, TX
Hunter Dehn Realty, MLS 21145411
IDX information is provided exclusively for personal, non-commercial use, and may not be used for any purpose other than to identify prospective properties consumers may be interested in purchasing. You may not reproduce or redistribute this data, it is for viewing purposes only. This data is deemed reliable, but is not guaranteed accurate by the MLS or NTREIS.
Read moreLast checked Jan 17, 10:00 pm
- Jome
- New homes search
- Texas
- Dallas-Fort Worth Area
- Collin County
- Celina
- Hillside Village
- 613 Cork Dr, Celina, TX 75009
































