









Book your tour. Save an average of $18,473. We'll handle the rest.
We collect exclusive builder offers, book your tours, and support you from start to housewarming.
- Confirmed tours
- Get matched & compare top deals
- Expert help, no pressure
- No added fees
Estimated value based on Jome data, T&C apply
























Why tour with Jome?
- No pressure toursTour at your own pace with no sales pressure
- Expert guidanceGet insights from our home buying experts
- Exclusive accessSee homes and deals not available elsewhere
Jome is featured in
- Single-Family
- Quick move-in
- $165.88/sqft
- $1,150/annual HOA
Home description
Welcome to 1905 Wild Orchard Lane in Crandall, TX—a beautifully maintained home offering comfort, functionality, and modern style. This spacious property features an open-concept layout with a bright living area that flows seamlessly into the kitchen and dining space, perfect for both everyday living and entertaining.
The kitchen is equipped with ample cabinetry, generous counter space, and modern appliances, making it ideal for home chefs. The primary suite provides a private retreat with a well-appointed ensuite bathroom and a walk-in closet. Additional bedrooms are generously sized and offer flexibility for family, guests, or a home office.
Step outside to a large backyard with plenty of space for outdoor activities, gatherings, or future customization. Located in a growing community with convenient access to schools, shopping, and major highways, this home combines small-town charm with easy connectivity to the Dallas area.
Don’t miss the opportunity to make this move-in ready home yours—schedule your showing today!
Lugary, LLC, MLS 21232136
May also be listed on the Lennar website
Information last verified by Jome: Today at 1:04 AM (April 12, 2026)
Home highlights
Peaceful Dallas lake with trails, birdwatching, and historic neighborhoods just minutes from the city center.
Book your tour. Save an average of $18,473. We'll handle the rest.
We collect exclusive builder offers, book your tours, and support you from start to housewarming.
- Confirmed tours
- Get matched & compare top deals
- Expert help, no pressure
- No added fees
Estimated value based on Jome data, T&C apply
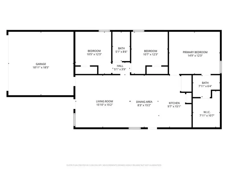
Home details
- Property status:
- Move-in ready
- Collection:
- Eastland: Cottage
- Lot size (acres):
- 0.14
- Size:
- 1,266 sqft
- Stories:
- 1
- Beds:
- 3
- Baths:
- 2
- Garage spaces:
- 2
- Fence:
- Wood Fence
Construction details
- Builder Name:
- Lennar
- Completion Date:
- November, 2024
- Year Built:
- 2024
- Roof:
- Composition Roofing
Home features & finishes
- Appliances:
- Trash CompactorSprinkler System
- Construction Materials:
- BrickRockStone
- Cooling:
- Ceiling Fan(s)Central Air
- Flooring:
- Ceramic FlooringTile Flooring
- Foundation Details:
- Slab
- Garage/Parking:
- Door OpenerGarageFront Entry Garage/ParkingMulti-Door GarageAttached Garage
- Home amenities:
- ENERGY STAR CertifiedGreen Construction
- Interior Features:
- Walk-In ClosetFoyerPantryDouble Vanity
- Kitchen:
- DishwasherMicrowave OvenDisposalGas CooktopGas OvenKitchen Range
- Laundry facilities:
- DryerWasherStackable Washer/DryerUtility/Laundry Room
- Lighting:
- Decorative/Designer Lighting
- Property amenities:
- SidewalkBackyardLandscapingPatioPorch
- Rooms:
- Primary Bedroom On MainKitchenDining RoomFamily RoomOpen Concept FloorplanPrimary Bedroom Downstairs
- Security system:
- Smoke DetectorCarbon Monoxide Detector

Get a consultation with our New Homes Expert
- See how your home builds wealth
- Plan your home-buying roadmap
- Discover hidden gems
Utility information
- Heating:
- Electric Heating, Water Heater, Central Heating, Gas Heating, Tankless water heater
- Utilities:
- HVAC, City Water System, Cable Available, Individual Water Meter, High Speed Internet Access, Cable TV, Curbs

Community details
Eastland
by Lennar, Crandall, TX
- 21 homes
- 30 plans
- 1,239 - 2,448 sqft
View Eastland details
Community amenities
- Playground
- Community Pool
- Park Nearby
More homes in Eastland
- Home at address 2416 Horsemanship Dr, Crandall, TX 75114

Beckman
Eastland: Watermill
$205,149
- 3 bd
- 2 ba
- 1,260 sqft
2416 Horsemanship Dr, Crandall, TX 75114
- Home at address 2934 Hearts Trl, Crandall, TX 75114

Idlewood
Eastland: Cottage
$209,999
- 3 bd
- 2 ba
- 1,411 sqft
2934 Hearts Trl, Crandall, TX 75114
- Home at address 2935 Hearts Trl, Crandall, TX 75114

Oakridge
Eastland: Cottage
$223,999
- 3 bd
- 2 ba
- 1,266 sqft
2935 Hearts Trl, Crandall, TX 75114
- Home at address 2510 Smoke Passage St, Crandall, TX 75114

Ramsey
Eastland: Watermill
$224,499
- 4 bd
- 2 ba
- 1,667 sqft
2510 Smoke Passage St, Crandall, TX 75114
- Home at address 2932 Hearts Trl, Crandall, TX 75114

Kitson
Eastland: Cottage
$228,999
- 3 bd
- 2 ba
- 1,402 sqft
2932 Hearts Trl, Crandall, TX 75114
- Home at address 2936 Hearts Trl, Crandall, TX 75114

Idlewood
Eastland: Cottage
$233,999
- 3 bd
- 2 ba
- 1,411 sqft
2936 Hearts Trl, Crandall, TX 75114
Floor plans in Eastland
About the builder - Lennar

- 1,839communities on Jome
- 6,709homes on Jome
Neighborhood
Home address
Schools in Crandall Independent School District
- Grades PK-06Publicopal smith elementary1.1 mi3015 fletcher rdna
GreatSchools’ Summary Rating calculation is based on 4 of the school’s themed ratings, including test scores, student/academic progress, college readiness, and equity. This information should only be used as a reference. Jome is not affiliated with GreatSchools and does not endorse or guarantee this information. Please reach out to schools directly to verify all information and enrollment eligibility. Data provided by GreatSchools.org © 2025
Places of interest
Getting around
Air quality

Considering this home?
Our expert will guide your tour, in-person or virtual
Need more information?
Text or call (888) 545-5198
Financials
Estimated monthly payment
Let us help you find your dream home
How many bedrooms are you looking for?
Similar homes nearby
Recently added communities in this area
Nearby communities in Crandall
New homes in nearby cities
More New Homes in Crandall, TX
Lugary, LLC, MLS 21232136
IDX information is provided exclusively for personal, non-commercial use, and may not be used for any purpose other than to identify prospective properties consumers may be interested in purchasing. You may not reproduce or redistribute this data, it is for viewing purposes only. This data is deemed reliable, but is not guaranteed accurate by the MLS or NTREIS.
Read moreLast checked Apr 12, 4:00 pm
- Jome
- New homes search
- Texas
- Dallas-Fort Worth Area
- Kaufman County
- Crandall
- Eastland
- Eastland: Cottage
- 1905 Wild Orchard Ln, Crandall, TX 75114

























