









Book your tour. Save an average of $18,473. We'll handle the rest.
We collect exclusive builder offers, book your tours, and support you from start to housewarming.
- Confirmed tours
- Get matched & compare top deals
- Expert help, no pressure
- No added fees
Estimated value based on Jome data, T&C apply










































- 4 bd
- 3 ba
- 2,339 sqft
4923 Kai Dr, Murfreesboro, TN 37129
Why tour with Jome?
- No pressure toursTour at your own pace with no sales pressure
- Expert guidanceGet insights from our home buying experts
- Exclusive accessSee homes and deals not available elsewhere
Jome is featured in
- Single-Family
- Ready by May 2026
- $223.94/sqft
- 1 days on Jome
Home description
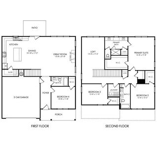
UNDER CONSTRUCTION – SUTHERLAND FLOOR PLAN | 4 BEDROOMS | 3 BATHS | BONUS ROOM | FIRST-FLOOR LIVING | SMITH FARMS--HOME BACKS UP TO TREES This beautiful Sutherland floor plan offers an ideal combination of comfort, functionality, and upgraded design features. With 4 bedrooms and 3 full bathrooms, the layout provides excellent versatility—featuring two bedrooms and two bathrooms on the first floor, plus two bedrooms and a shared Jack-and-Jill bathroom upstairs, along with a spacious bonus room. Interior Features: Upgraded bistro kitchen with cabinet-mounted oven and microwave Drop-in cooktop with exterior-vented exhaust hood Additional windows added to the great room for enhanced natural light Fireplace in the great room Hardwood stairs Unfinished storage space on the second floor Upgraded cabinet hardware Quartz countertops in the kitchen and all bathrooms Ceramic tile flooring in all wet areas Upgraded pendant lighting above the kitchen island Owner’s bath featuring a 7 Foot Long tile shower with frameless shower door Second-Floor Layout: Two bedrooms with a Jack-and-Jill bathroom Spacious bonus room perfect for movie night, gaming, or a play area Convenient unfinished storage room Lot & Exterior: Located on a desirable Tree Lined Lot offering added privacy and outdoor space.
May also be listed on the Goodall Homes website
Information last verified by Jome: Today at 6:40 AM (April 22, 2026)
Book your tour. Save an average of $18,473. We'll handle the rest.
We collect exclusive builder offers, book your tours, and support you from start to housewarming.
- Confirmed tours
- Get matched & compare top deals
- Expert help, no pressure
- No added fees
Estimated value based on Jome data, T&C apply
Home details
- Property status:
- Under construction
- Size:
- 2,339 sqft
- Stories:
- 2
- Beds:
- 4
- Baths:
- 3
- Garage spaces:
- 2

Floor plan details
The Sutherland
- 3 bd
- 2.5 ba
- 2,344 sqft
View The Sutherland details
Construction details
- Builder Name:
- Goodall Homes
- Completion Date:
- May, 2026
Home features & finishes
- Garage/Parking:
- Garage

Get a consultation with our New Homes Expert
- See how your home builds wealth
- Plan your home-buying roadmap
- Discover hidden gems

Community details
Smith Farms
by Goodall Homes, Murfreesboro, TN
- 9 homes
- 5 plans
- 1,765 - 2,846 sqft
View Smith Farms details
More homes in Smith Farms
- Home at address 4900 Kai Dr, Murfreesboro, TN 37129

The Sutherland
$489,806
- 4 bd
- 3 ba
- 2,339 sqft
4900 Kai Dr, Murfreesboro, TN 37129
- Home at address 4935 Kai Dr, Murfreesboro, TN 37129

The Stanford
$513,522
- 4 bd
- 3 ba
- 2,269 sqft
4935 Kai Dr, Murfreesboro, TN 37129
- Home at address 4927 Kai Dr, Murfreesboro, TN 37129

The Stanford
$513,522
- 4 bd
- 3 ba
- 2,269 sqft
4927 Kai Dr, Murfreesboro, TN 37129
- Home at address 4911 Kai Dr, Murfreesboro, TN 37129

The Sutherland
$519,951
- 4 bd
- 3 ba
- 2,339 sqft
4911 Kai Dr, Murfreesboro, TN 37129
- Home at address 4931 Kai Dr, Murfreesboro, TN 37129

The Winston
$542,397
- 5 bd
- 3 ba
- 2,584 sqft
4931 Kai Dr, Murfreesboro, TN 37129
- Home at address 4919 Kai Dr, Murfreesboro, TN 37129

The Colburn
$571,408
- 5 bd
- 4 ba
- 2,816 sqft
4919 Kai Dr, Murfreesboro, TN 37129
Floor plans in Smith Farms
About the builder - Goodall Homes
Neighborhood
Home address
- City:
- Murfreesboro
- County:
- Sumner
- Zip Code:
- 37129
Schools in Rutherford County School District
- Grades 01-10Privateabundant life christian academy2.8 mi5904 new nashville hwyna
GreatSchools’ Summary Rating calculation is based on 4 of the school’s themed ratings, including test scores, student/academic progress, college readiness, and equity. This information should only be used as a reference. Jome is not affiliated with GreatSchools and does not endorse or guarantee this information. Please reach out to schools directly to verify all information and enrollment eligibility. Data provided by GreatSchools.org © 2025
Places of interest
Getting around
Air quality
Noise level
A Soundscore™ rating is a number between 50 (very loud) and 100 (very quiet) that tells you how loud a location is due to environmental noise.

Considering this home?
Our expert will guide your tour, in-person or virtual
Need more information?
Text or call (888) 545-5198
Financials
Estimated monthly payment
Let us help you find your dream home
How many bedrooms are you looking for?
Similar homes nearby
Recently added communities in this area
Nearby communities in Murfreesboro
New homes in nearby cities
More New Homes in Murfreesboro, TN
- Jome
- New homes search
- Tennessee
- Nashville-Memphis Area
- Sumner County
- Murfreesboro
- Smith Farms
- 4923 Kai Dr, Murfreesboro, TN 37129



























