








Book your tour. Save an average of $18,473. We'll handle the rest.
We collect exclusive builder offers, book your tours, and support you from start to housewarming.
- Confirmed tours
- Get matched & compare top deals
- Expert help, no pressure
- No added fees
Estimated value based on Jome data, T&C apply















Why tour with Jome?
- No pressure toursTour at your own pace with no sales pressure
- Expert guidanceGet insights from our home buying experts
- Exclusive accessSee homes and deals not available elsewhere
Jome is featured in
- Single-Family
- Under construction
- $225.87/sqft
- 94 days on Jome
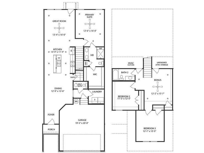
Home description
The Natchez II features an open-concept main level, three bedrooms, two-and-a-half bathrooms, and a two-car garage, all within a vibrant lifestyle community. This home is now under construction and the ideal time to personalize with your selections. Photos are for illustrative purposes.
May also be listed on the Regent Homes website
Information last verified by Jome: Today at 12:01 PM (April 10, 2026)
Book your tour. Save an average of $18,473. We'll handle the rest.
We collect exclusive builder offers, book your tours, and support you from start to housewarming.
- Confirmed tours
- Get matched & compare top deals
- Expert help, no pressure
- No added fees
Estimated value based on Jome data, T&C apply
Home details
- Property status:
- Under construction
- Size:
- 1,859 sqft
- Stories:
- 2
- Beds:
- 3
- Baths:
- 2
- Half baths:
- 1
- Garage spaces:
- 2
Construction details
- Builder Name:
- Regent Homes
Home features & finishes
- Garage/Parking:
- Garage

Get a consultation with our New Homes Expert
- See how your home builds wealth
- Plan your home-buying roadmap
- Discover hidden gems

Community details
Harvest Point
by Regent Homes, Spring Hill, TN
- 7 homes
- 2 plans
- 1,821 - 2,046 sqft
View Harvest Point details
More homes in Harvest Point
- Home at address 1120 June Wilde Rdg, Unit 16224, Spring Hill, TN 37174

Natchez I
$399,900
- 3 bd
- 2.5 ba
- 1,835 sqft
1120 June Wilde Rdg, Unit 16224, Spring Hill, TN 37174
- Home at address 1112 June Wilde Rdg, Unit 16228, Spring Hill, TN 37174

Natchez I
$409,900
- 3 bd
- 2.5 ba
- 1,845 sqft
1112 June Wilde Rdg, Unit 16228, Spring Hill, TN 37174
- Home at address 1097 June Wilde Rdg, Unit 16282, Spring Hill, TN 37174

Fredericksburg II
$422,100
- 3 bd
- 2.5 ba
- 2,046 sqft
1097 June Wilde Rdg, Unit 16282, Spring Hill, TN 37174
- Home at address 1093 June Wilde Rdg, Unit 16280, Spring Hill, TN 37174

Fredericksburg II
$422,100
- 3 bd
- 2.5 ba
- 2,046 sqft
1093 June Wilde Rdg, Unit 16280, Spring Hill, TN 37174
- Home at address 1128 June Wilde Rdg, Spring Hill, TN 37174

Natchez I
$424,900
- 3 bd
- 2.5 ba
- 1,845 sqft
1128 June Wilde Rdg, Spring Hill, TN 37174
- Home at address 1122 June Wilde Rdg, Unit 16223, Spring Hill, TN 37174

Natchez I
$426,900
- 3 bd
- 2.5 ba
- 1,845 sqft
1122 June Wilde Rdg, Unit 16223, Spring Hill, TN 37174
Floor plans in Harvest Point
About the builder - Regent Homes
Neighborhood
Home address
- City:
- Spring Hill
- County:
- Maury
- Zip Code:
- 37174
Schools in Maury County School District
GreatSchools’ Summary Rating calculation is based on 4 of the school’s themed ratings, including test scores, student/academic progress, college readiness, and equity. This information should only be used as a reference. Jome is not affiliated with GreatSchools and does not endorse or guarantee this information. Please reach out to schools directly to verify all information and enrollment eligibility. Data provided by GreatSchools.org © 2025
Places of interest
Getting around
Air quality

Considering this home?
Our expert will guide your tour, in-person or virtual
Need more information?
Text or call (888) 545-5198
Financials
Estimated monthly payment
Let us help you find your dream home
How many bedrooms are you looking for?
Similar homes nearby
Recently added communities in this area
Nearby communities in Spring Hill
New homes in nearby cities
More New Homes in Spring Hill, TN
- Jome
- New homes search
- Tennessee
- Nashville-Memphis Area
- Maury County
- Spring Hill
- Harvest Point
- 1126 June Wilde Rdg, Spring Hill, TN 37174






























