











Book your tour. Save an average of $18,473. We'll handle the rest.
We collect exclusive builder offers, book your tours, and support you from start to housewarming.
- Confirmed tours
- Get matched & compare top deals
- Expert help, no pressure
- No added fees
Estimated value based on Jome data, T&C apply
Why tour with Jome?
- No pressure toursTour at your own pace with no sales pressure
- Expert guidanceGet insights from our home buying experts
- Exclusive accessSee homes and deals not available elsewhere
Jome is featured in
- Single-Family
- Under construction
- $369.33/sqft
- 99 days on Jome
Home description
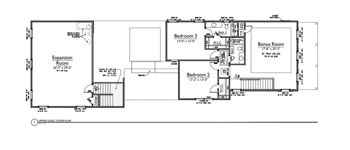
The Amelia by Ford Classic Homes features a welcoming entry foyer. Great Room showcases a wood beam ceiling detail and 42″ fireplace. Kitchen overlooks the Breakfast Nook and features quartz countertops, KitchenAid appliances, tile backsplash, and a flush island. Spacious main-level Primary Suite with a tub, fully tiled shower, and separate walk-in closets. Formal Dining Room or Study, Butler’s Pantry, plus two covered porches are also on the main level. Upper level features the oversized Bonus Room, two ensuite bedrooms, and a spacious Expansion Room with plumbing rough-in for future bathroom above the garage. 3-car garage + privacy fence! Community amenities will include a pool and clubhouse, pocket parks, and walking trails throughout!
May also be listed on the Ford Classic Homes website
Information last verified by Jome: Friday at 3:50 AM (February 27, 2026)
Book your tour. Save an average of $18,473. We'll handle the rest.
We collect exclusive builder offers, book your tours, and support you from start to housewarming.
- Confirmed tours
- Get matched & compare top deals
- Expert help, no pressure
- No added fees
Estimated value based on Jome data, T&C apply
Home details
- Property status:
- Under construction
- Size:
- 3,388 sqft
- Stories:
- 2
- Beds:
- 3
- Baths:
- 3
- Half baths:
- 1
- Garage spaces:
- 3
Construction details
- Builder Name:
- Ford Classic Homes
Home features & finishes
- Garage/Parking:
- GarageAttached Garage
- Interior Features:
- Walk-In ClosetFoyerPantry
- Kitchen:
- Kitchen Island
- Laundry facilities:
- Utility/Laundry Room
- Property amenities:
- Porch
- Rooms:
- Bonus RoomGreat RoomPrimary Bedroom On MainKitchenOffice/StudyDining RoomBreakfast AreaOpen Concept FloorplanPrimary Bedroom Downstairs

Get a consultation with our New Homes Expert
- See how your home builds wealth
- Plan your home-buying roadmap
- Discover hidden gems

Community details
SouthVale
by Ford Classic Homes, Franklin, TN
- 1 home
- 3,128 - 4,094 sqft
View SouthVale details
About the builder - Ford Classic Homes
Neighborhood
Home address
- City:
- Franklin
- County:
- Williamson
- Zip Code:
- 37064
Schools in Williamson County School District
GreatSchools’ Summary Rating calculation is based on 4 of the school’s themed ratings, including test scores, student/academic progress, college readiness, and equity. This information should only be used as a reference. Jome is not affiliated with GreatSchools and does not endorse or guarantee this information. Please reach out to schools directly to verify all information and enrollment eligibility. Data provided by GreatSchools.org © 2025
Places of interest
Getting around
Air quality

Considering this home?
Our expert will guide your tour, in-person or virtual
Need more information?
Text or call (888) 488-9243
Financials
Estimated monthly payment
Let us help you find your dream home
How many bedrooms are you looking for?
Similar homes nearby
Recently added communities in this area
Nearby communities in Franklin
New homes in nearby cities
More New Homes in Franklin, TN
- Jome
- New homes search
- Tennessee
- Nashville-Memphis Area
- Williamson County
- Franklin
- SouthVale
- 7018 Southvale Blvd, Franklin, TN 37064


























