



- 5 bd
- 3 ba
- 2,511 sqft
922 Jerry Price Dr, Knoxville, TN 37920
- Single-Family
- $157.48/sqft
- 149 days on Jome
New Homes for Sale Near 922 Jerry Price Dr, Knoxville, TN 37920
About this Home
About this home
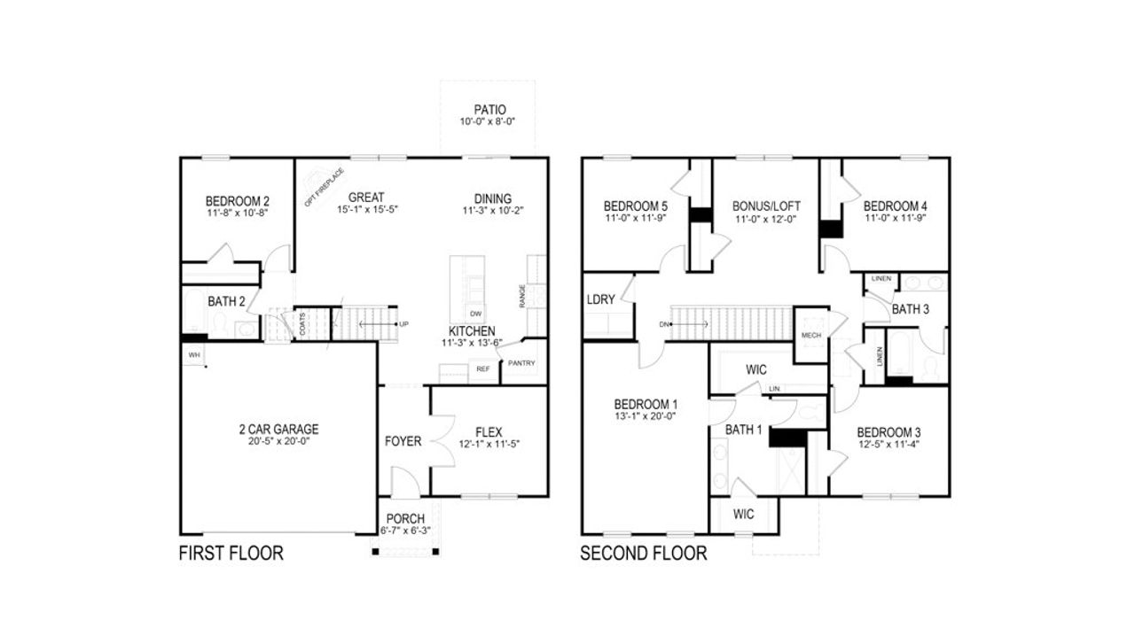
Welcome to the Hayden floor plan. This amazing home features 5 bedrooms and 3 bathrooms optimizing living space with an open concept design. The eat-in kitchen overlooks the living area, while having a view to the outdoor patio. The kitchen features an island with bar seating and plentiful cabinets and counter space. The first floor also features a flex room that could be used as a formal dining room or office, as well as a bedroom and full bathroom. As you head up to the second floor, you are greeted with the primary bedroom that features an ensuite bathroom as well as three additional bedrooms that surround a second living area, a full bathroom, and a laundry area. The Hayden plan is a stunning home that utilizes space. Make it your next home by scheduling an appointment with a New Home Specialist today.
May also be listed on the D.R. Horton website
Information last verified by Jome: Wednesday at 1:34 PM (December 10, 2025)
Home details
- Property status:
- Sold
- Size:
- 2,511 sqft
- Stories:
- 2
- Beds:
- 5
- Baths:
- 3
- Garage spaces:
- 2
Construction details
- Builder Name:
- D.R. Horton
Home features & finishes
- Garage/Parking:
- Garage

Community details
Price's Point
by D.R. Horton, Knoxville, TN
- 13 homes
- 7 plans
- 1,618 - 2,618 sqft
View Price's Point details
More homes in Price's Point
- Home at address 4343 Juliette Elise St, Knoxville, TN 37920

$338,900
Move-in ready- 3 bd
- 2.5 ba
- 1,645 sqft
4343 Juliette Elise St, Knoxville, TN 37920
- Home at address 4331 Juliette Elise St, Knoxville, TN 37920

$338,900
Move-in ready- 3 bd
- 2.5 ba
- 1,645 sqft
4331 Juliette Elise St, Knoxville, TN 37920
- Home at address 5728 Painted Shoals Ln, Knoxville, TN 37920

$338,900
Move-in ready- 3 bd
- 2.5 ba
- 1,645 sqft
5728 Painted Shoals Ln, Knoxville, TN 37920
- Home at address 5740 Painted Shoals Ln, Knoxville, TN 37920

$338,900
Move-in ready- 3 bd
- 2.5 ba
- 1,645 sqft
5740 Painted Shoals Ln, Knoxville, TN 37920
- Home at address 5736 Painted Shoals Ln, Knoxville, TN 37920

$338,900
Move-in ready- 3 bd
- 2.5 ba
- 1,645 sqft
5736 Painted Shoals Ln, Knoxville, TN 37920
- Home at address 4340 Juliette Elise St, Knoxville, TN 37920

$343,830
Move-in ready- 3 bd
- 2 ba
- 1,618 sqft
4340 Juliette Elise St, Knoxville, TN 37920
Floor plans in Price's Point
About the builder - D.R. Horton

- 1,164communities on Jome
- 10,414homes on Jome
Neighborhood
Home address
Schools in Knox County School District
GreatSchools’ Summary Rating calculation is based on 4 of the school’s themed ratings, including test scores, student/academic progress, college readiness, and equity. This information should only be used as a reference. Jome is not affiliated with GreatSchools and does not endorse or guarantee this information. Please reach out to schools directly to verify all information and enrollment eligibility. Data provided by GreatSchools.org © 2025
Places of interest
Getting around
Air quality
Financials
Nearby communities in Knoxville
Homes in Knoxville by D.R. Horton
Recently added communities in this area
Other Builders in Knoxville, TN
Nearby sold homes
New homes in nearby cities
More New Homes in Knoxville, TN
- Jome
- New homes search
- Tennessee
- Chattanooga-Knoxville Area
- Knox County
- Knoxville
- Price's Point
- 922 Jerry Price Dr, Knoxville, TN 37920




















































