


















































- 3 bd
- 3 ba
- 2,537 sqft
1368 Ashton Park Dr, Mount Juliet, TN 37122
- Single-Family
- $236.5/sqft
- 190 days on Jome
New Homes for Sale Near 1368 Ashton Park Dr, Mount Juliet, TN 37122
About this Home
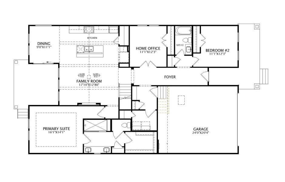
3 BR/3 BA, Two-Level Design Near Percy Priest Lake. The Roseland II boasts an expansive primary bedroom with a super shower and a guest bedroom on the main level, as well as a convenient home office. The family room with a vaulted ceiling and cedar beams accommodates all residents and the second-level gameroom offers a private place to get away! The chef's kitchen includes wall ovens, an enlarged gas cooktop top and much more! Adjacent to the gameroom is a third bedroom for your guests who will enjoy their privacy. All residents will love the covered rear deck with an upgraded extension. Vitual tour is for illustrative purposes only.
Home Features:
Main-level primary suite and guest suite
Covered rear deck with extension
Family room with vaulted ceiling and cedar beams
May also be listed on the Drees Custom Homes website
Information last verified by Jome: Tuesday at 6:09 AM (January 20, 2026)
Home details
- Property status:
- Sold
- Lot width (feet):
- 55
- Size:
- 2,537 sqft
- Stories:
- 2
- Beds:
- 3
- Baths:
- 3
- Garage spaces:
- 2
Construction details
- Builder Name:
- Drees Custom Homes
- Completion Date:
- January, 2026
Home features & finishes
- Garage/Parking:
- Garage
- Interior Features:
- Walk-In Closet
- Rooms:
- Family Room

Community details
Ashton Park - 55'
by Drees Custom Homes, Mount Juliet, TN
- 2 homes
- 5 plans
- 1,945 - 2,684 sqft
View Ashton Park - 55' details
More homes in Ashton Park - 55'
- Home at address 1332 Ashton Park Dr, Mount Juliet, TN 37122

$574,990
Under construction- 4 bd
- 3.5 ba
- 2,539 sqft
1332 Ashton Park Dr, Mount Juliet, TN 37122
- Home at address 1365 Ashton Park Dr, Mount Juliet, TN 37122

$624,990
Under construction- 4 bd
- 3 ba
- 2,568 sqft
1365 Ashton Park Dr, Mount Juliet, TN 37122
Floor plans in Ashton Park - 55'
About the builder - Drees Custom Homes
Neighborhood
Home address
- City:
- Mount Juliet
- County:
- Davidson
- Zip Code:
- 37122
Schools in Metropolitan Nashville Public School District
GreatSchools’ Summary Rating calculation is based on 4 of the school’s themed ratings, including test scores, student/academic progress, college readiness, and equity. This information should only be used as a reference. Jome is not affiliated with GreatSchools and does not endorse or guarantee this information. Please reach out to schools directly to verify all information and enrollment eligibility. Data provided by GreatSchools.org © 2025
Places of interest
Getting around
Air quality
Noise level
A Soundscore™ rating is a number between 50 (very loud) and 100 (very quiet) that tells you how loud a location is due to environmental noise.
Financials
Nearby communities in Mount Juliet
Homes in Mount Juliet by Drees Custom Homes
Recently added communities in this area
Other Builders in Mount Juliet, TN
Nearby sold homes
New homes in nearby cities
More New Homes in Mount Juliet, TN
- Jome
- New homes search
- Tennessee
- Nashville-Memphis Area
- Davidson County
- Mount Juliet
- Ashton Park - 55'
- 1368 Ashton Park Dr, Mount Juliet, TN 37122




































































