








Book your tour. Save an average of $18,473. We'll handle the rest.
We collect exclusive builder offers, book your tours, and support you from start to housewarming.
- Confirmed tours
- Get matched & compare top deals
- Expert help, no pressure
- No added fees
Estimated value based on Jome data, T&C apply








Why tour with Jome?
- No pressure toursTour at your own pace with no sales pressure
- Expert guidanceGet insights from our home buying experts
- Exclusive accessSee homes and deals not available elsewhere
Jome is featured in
- Single-Family
- Ready by July 2026
- $227.75/sqft
- 51 days on Jome
Home description
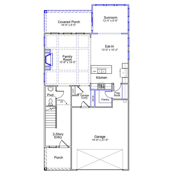
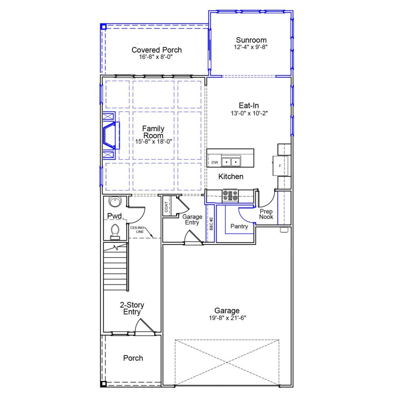
This is our Cameron A floor plan, featuring a balcony, three bedrooms, two-and-one-half bathrooms, and a sunroom that makes a great space for a dining room or playroom. This homesite backs to HOA space and offers a beautiful pond view. The open floor plan showcases a stunning gourmet kitchen, ideal for hosting and everyday living. The home includes crown molding, eight-foot doors, upgraded light fixtures, and quartz countertops throughout. Upstairs, the primary suite features dual walk-in closets, an eight-foot tiled shower, and access to a private balcony. The second level also includes a loft and a laundry room with a folding table for added convenience. Enjoy the view from both the covered front and back porches. Located in Pineland Preserve, about three miles from downtown Summerville, this community offers resort-style amenities. Estimated completion is in July.
May also be listed on the Mungo Homes website
Information last verified by Jome: Monday at 6:04 AM (April 27, 2026)
Book your tour. Save an average of $18,473. We'll handle the rest.
We collect exclusive builder offers, book your tours, and support you from start to housewarming.
- Confirmed tours
- Get matched & compare top deals
- Expert help, no pressure
- No added fees
Estimated value based on Jome data, T&C apply
Home details
- Property status:
- Under construction
- Size:
- 2,213 sqft
- Stories:
- 2
- Beds:
- 3
- Baths:
- 2
- Half baths:
- 1
- Garage spaces:
- 2
Construction details
- Builder Name:
- Mungo Homes
- Completion Date:
- July, 2026
Home features & finishes
- Garage/Parking:
- Garage
- Rooms:
- Primary Bedroom Upstairs

Get a consultation with our New Homes Expert
- See how your home builds wealth
- Plan your home-buying roadmap
- Discover hidden gems

Community details
Pineland Preserve
by Mungo Homes, Summerville, SC
- 23 homes
- 14 plans
- 1,677 - 4,009 sqft
View Pineland Preserve details
More homes in Pineland Preserve
- Home at address 114 Dahlberg St, Summerville, SC 29483

Mandevilla
$362,000
- 3 bd
- 2.5 ba
- 1,947 sqft
114 Dahlberg St, Summerville, SC 29483
- Home at address 112 Dahlberg St, Summerville, SC 29483

Mandevilla
$367,000
- 3 bd
- 2.5 ba
- 1,946 sqft
112 Dahlberg St, Summerville, SC 29483
- Home at address 108 Dahlberg St, Summerville, SC 29483

Mandevilla
$368,000
- 3 bd
- 2.5 ba
- 1,933 sqft
108 Dahlberg St, Summerville, SC 29483
- Home at address 110 Dahlberg St, Summerville, SC 29483

Moonflower
$369,000
- 3 bd
- 2.5 ba
- 1,974 sqft
110 Dahlberg St, Summerville, SC 29483
- Home at address 116 Dahlberg St, Summerville, SC 29483

Moonflower
$384,000
- 3 bd
- 2.5 ba
- 1,974 sqft
116 Dahlberg St, Summerville, SC 29483
- Home at address 213 Crosswick St, Summerville, SC 29483

Bowen
$455,000
- 3 bd
- 2.5 ba
- 1,899 sqft
213 Crosswick St, Summerville, SC 29483
Floor plans in Pineland Preserve
- View details for Mandevilla - Vanguard Collection

Mandevilla - Vanguard Collection
$335,900+- 3 bd
- 2.5 ba
- 1,933 sqft
- View details for Moonflower - Vanguard Collection

Moonflower - Vanguard Collection
$339,900+- 3 bd
- 2.5 ba
- 1,968 sqft
About the builder - Mungo Homes
Neighborhood
Home address
- City:
- Summerville
- County:
- Dorchester
- Zip Code:
- 29483
Schools in Dorchester School District 2
GreatSchools’ Summary Rating calculation is based on 4 of the school’s themed ratings, including test scores, student/academic progress, college readiness, and equity. This information should only be used as a reference. Jome is not affiliated with GreatSchools and does not endorse or guarantee this information. Please reach out to schools directly to verify all information and enrollment eligibility. Data provided by GreatSchools.org © 2025
Places of interest
Getting around
Air quality
Noise level
A Soundscore™ rating is a number between 50 (very loud) and 100 (very quiet) that tells you how loud a location is due to environmental noise.

Considering this home?
Our expert will guide your tour, in-person or virtual
Need more information?
Text or call (888) 545-5198
Financials
Estimated monthly payment
Let us help you find your dream home
How many bedrooms are you looking for?
Similar homes nearby
Recently added communities in this area
Nearby communities in Summerville
New homes in nearby cities
More New Homes in Summerville, SC
- Jome
- New homes search
- South Carolina
- Charleston Metropolitan Area
- Dorchester County
- Summerville
- Pineland Preserve
- 209 Crosswick St, Summerville, SC 29483
































