



Book your tour. Save an average of $18,473. We'll handle the rest.
We collect exclusive builder offers, book your tours, and support you from start to housewarming.
- Confirmed tours
- Get matched & compare top deals
- Expert help, no pressure
- No added fees
Estimated value based on Jome data, T&C apply

Why tour with Jome?
- No pressure toursTour at your own pace with no sales pressure
- Expert guidanceGet insights from our home buying experts
- Exclusive accessSee homes and deals not available elsewhere
Jome is featured in
- Single-Family
- Ready by May 2026
- $221.07/sqft
- 46 days on Jome
Home description
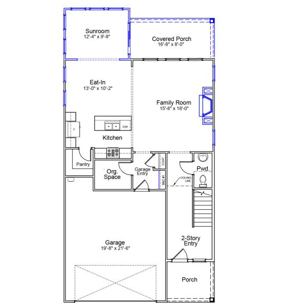
Welcome our Cameron A plan, which offers a beautiful two-story foyer entrance and features three bedrooms and two-and-one-half bathrooms. This open floor plan includes a stunning gourmet kitchen that flows into a bright sunroom, and the great room is equipped with a gas fireplace for enjoying time with loved ones. This gorgeous home includes Craftsman trim, eight-foot doors, upgraded light fixtures, and a well-appointed powder room. Upstairs, you will find all three bedrooms, two full bathrooms, and a loft ideal for a second living area or playroom. Enjoy outdoor living with covered front and back porches overlooking a lovely pond view. Located in Pineland Preserve, just under three miles from downtown Summerville, this community offers resort-style amenities. Estimated completion is in June.
May also be listed on the Mungo Homes website
Information last verified by Jome: Today at 5:32 AM (March 20, 2026)
Book your tour. Save an average of $18,473. We'll handle the rest.
We collect exclusive builder offers, book your tours, and support you from start to housewarming.
- Confirmed tours
- Get matched & compare top deals
- Expert help, no pressure
- No added fees
Estimated value based on Jome data, T&C apply
Home details
- Property status:
- Under construction
- Size:
- 2,212 sqft
- Stories:
- 2
- Beds:
- 3
- Baths:
- 2
- Half baths:
- 1
- Garage spaces:
- 2
Construction details
- Builder Name:
- Mungo Homes
- Completion Date:
- May, 2026
Home features & finishes
- Garage/Parking:
- Garage
- Rooms:
- Primary Bedroom Upstairs

Get a consultation with our New Homes Expert
- See how your home builds wealth
- Plan your home-buying roadmap
- Discover hidden gems

Community details
Pineland Preserve
by Mungo Homes, Summerville, SC
- 14 homes
- 12 plans
- 1,677 - 4,009 sqft
View Pineland Preserve details
More homes in Pineland Preserve
- Home at address 213 Crosswick St, Summerville, SC 29483

Bowen
$460,000
- 3 bd
- 2.5 ba
- 1,899 sqft
213 Crosswick St, Summerville, SC 29483
- Home at address 215 Crosswick St, Summerville, SC 29483

Lacey
$494,000
- 4 bd
- 3.5 ba
- 2,465 sqft
215 Crosswick St, Summerville, SC 29483
- Home at address 81 Crosswick St, Summerville, SC 29483

Lacey - Vanguard Collection
$499,000
- 4 bd
- 3.5 ba
- 2,490 sqft
81 Crosswick St, Summerville, SC 29483
- Home at address 609 Crosswick St, Summerville, SC 29483

Lacey
$500,000
- 4 bd
- 3.5 ba
- 2,490 sqft
609 Crosswick St, Summerville, SC 29483
- Home at address 607 Crosswick St, Summerville, SC 29483

Dabney
$504,000
- 4 bd
- 3 ba
- 2,271 sqft
607 Crosswick St, Summerville, SC 29483
- Home at address 209 Crosswick St, Summerville, SC 29483

Cameron
$504,000
- 3 bd
- 2.5 ba
- 2,213 sqft
209 Crosswick St, Summerville, SC 29483
Floor plans in Pineland Preserve
- View details for Ashley - Vanguard Collection

Ashley - Vanguard Collection
$384,900+- 3 bd
- 2.5 ba
- 1,677 sqft
- View details for Bowen - Vanguard Collection

Bowen - Vanguard Collection
$397,900+- 3 bd
- 2.5 ba
- 1,899 sqft
About the builder - Mungo Homes
Neighborhood
Home address
- City:
- Summerville
- County:
- Dorchester
- Zip Code:
- 29483
Schools in Dorchester School District 2
GreatSchools’ Summary Rating calculation is based on 4 of the school’s themed ratings, including test scores, student/academic progress, college readiness, and equity. This information should only be used as a reference. Jome is not affiliated with GreatSchools and does not endorse or guarantee this information. Please reach out to schools directly to verify all information and enrollment eligibility. Data provided by GreatSchools.org © 2025
Places of interest
Getting around
Air quality
Noise level
A Soundscore™ rating is a number between 50 (very loud) and 100 (very quiet) that tells you how loud a location is due to environmental noise.

Considering this home?
Our expert will guide your tour, in-person or virtual
Need more information?
Text or call (888) 545-5198
Financials
Estimated monthly payment
Let us help you find your dream home
How many bedrooms are you looking for?
Similar homes nearby
Recently added communities in this area
Nearby communities in Summerville
New homes in nearby cities
More New Homes in Summerville, SC
- Jome
- New homes search
- South Carolina
- Charleston Metropolitan Area
- Dorchester County
- Summerville
- Pineland Preserve
- 513 Crosswick St, Summerville, SC 29483































