














Book your tour. Save an average of $18,473. We'll handle the rest.
We collect exclusive builder offers, book your tours, and support you from start to housewarming.
- Confirmed tours
- Get matched & compare top deals
- Expert help, no pressure
- No added fees
Estimated value based on Jome data, T&C apply





Why tour with Jome?
- No pressure toursTour at your own pace with no sales pressure
- Expert guidanceGet insights from our home buying experts
- Exclusive accessSee homes and deals not available elsewhere
Jome is featured in
- Single-Family
- Ready by July 2026
- $192.05/sqft
- $710/annual HOA
Builder deals available
- TOP-TIER DEAL
VA 30 Year Fixed
$8,120 est. value- Rate buydown from 3.49% (1 year) with 4.733% APR
FHA 30 Year Fixed
$490 est. value- Rate buydown from 3.49% (1 year) with 5.422% APR and 3.5% down payment
Deals may change and are not guaranteed. Some deals apply to specific homes or plans. Not a financing offer. Eligibility varies by lender. Please verify details.
Home description
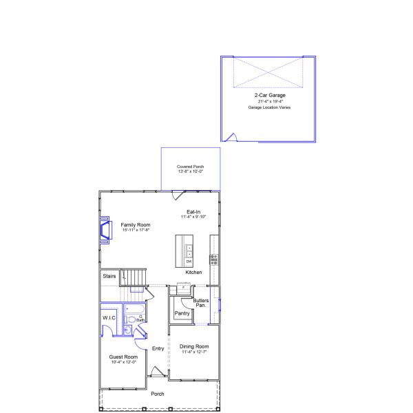
Meet the Lafayette! As you enter the home, you are welcomed by a formal dining room to the right that connects to the kitchen through a butlers pantry, while a dedicated guest suite sits to the left, complete with a walk in closet and full bathroom. Continuing down the hall, the home opens into the main living area featuring a gourmet kitchen, an inviting eat in space, and a spacious great room centered around a cozy fireplace. Just beyond the living area is a covered porch that leads to the detached two car garage, creating a seamless indoor and outdoor connection. Upstairs, the primary suite offers a beautifully tiled shower and a large walk in closet. Two additional bedrooms, a secondary bathroom, a loft space, and a conveniently located laundry room complete the second floor. Located in Six Oaks, residents enjoy resort style amenities including a pool with cabana, playground, dog park, and scenic walking trails, all within the highly rated Dorchester District 2 school district and just minutes from Summerville High School, downtown Summerville, Publix, shops, and local restaurants.
May also be listed on the Mungo Homes website
Information last verified by Jome: Today at 6:39 AM (March 10, 2026)
Book your tour. Save an average of $18,473. We'll handle the rest.
We collect exclusive builder offers, book your tours, and support you from start to housewarming.
- Confirmed tours
- Get matched & compare top deals
- Expert help, no pressure
- No added fees
Estimated value based on Jome data, T&C apply
Home details
- Property status:
- Under construction
- Size:
- 2,416 sqft
- Stories:
- 2
- Beds:
- 4
- Baths:
- 3
- Garage spaces:
- 2
Construction details
- Builder Name:
- Mungo Homes
- Completion Date:
- July, 2026
Home features & finishes
- Garage/Parking:
- Garage
- Rooms:
- Primary Bedroom Upstairs

Get a consultation with our New Homes Expert
- See how your home builds wealth
- Plan your home-buying roadmap
- Discover hidden gems

Community details
Six Oaks
by Mungo Homes, Summerville, SC
- 11 homes
- 9 plans
- 1,383 - 2,897 sqft
View Six Oaks details
More homes in Six Oaks
- Home at address 534 O'Leary Cir, Summerville, SC 29483

Lancaster
Savings$415,000
- 5 bd
- 3 ba
- 2,175 sqft
534 O'Leary Cir, Summerville, SC 29483
- Home at address 104 Brown Cow Wy, Summerville, SC 29483

Joliet
Savings$464,000
- 4 bd
- 3.5 ba
- 2,468 sqft
104 Brown Cow Wy, Summerville, SC 29483
- Home at address 112 Brown Cow Wy, Summerville, SC 29483

Joliet
Savings$469,000
- 4 bd
- 3.5 ba
- 2,468 sqft
112 Brown Cow Wy, Summerville, SC 29483
- Home at address 106 Brown Cow Wy, Summerville, SC 29483

Lafayette
Savings$472,000
- 4 bd
- 2.5 ba
- 2,426 sqft
106 Brown Cow Wy, Summerville, SC 29483
- Home at address 116 Brown Cow Wy, Summerville, SC 29483

Lafayette
Savings$484,000
- 4 bd
- 3 ba
- 2,426 sqft
116 Brown Cow Wy, Summerville, SC 29483
- Home at address 115 Brown Cow Wy, Summerville, SC 29483

Lafayette
Savings$489,000
- 5 bd
- 3 ba
- 2,416 sqft
115 Brown Cow Wy, Summerville, SC 29483
Floor plans in Six Oaks
- View details for Guilford - Genesis Value Collection

Guilford - Genesis Value Collection
$348,500+- 4 bd
- 2.5 ba
- 1,772 sqft
- View details for Lancaster - Genesis Value Collection

Lancaster - Genesis Value Collection
$363,000+- 4 bd
- 2.5 ba
- 2,152 sqft
About the builder - Mungo Homes
Neighborhood
Home address
- City:
- Summerville
- County:
- Dorchester
- Zip Code:
- 29483
Schools in Dorchester School District 2
GreatSchools’ Summary Rating calculation is based on 4 of the school’s themed ratings, including test scores, student/academic progress, college readiness, and equity. This information should only be used as a reference. Jome is not affiliated with GreatSchools and does not endorse or guarantee this information. Please reach out to schools directly to verify all information and enrollment eligibility. Data provided by GreatSchools.org © 2025
Places of interest
Getting around
Air quality
Noise level
A Soundscore™ rating is a number between 50 (very loud) and 100 (very quiet) that tells you how loud a location is due to environmental noise.

Considering this home?
Our expert will guide your tour, in-person or virtual
Need more information?
Text or call (888) 488-9243
Financials
Estimated monthly payment
Let us help you find your dream home
How many bedrooms are you looking for?
Similar homes nearby
Recently added communities in this area
Nearby communities in Summerville
New homes in nearby cities
More New Homes in Summerville, SC
- Jome
- New homes search
- South Carolina
- Charleston Metropolitan Area
- Dorchester County
- Summerville
- Six Oaks
- 114 Brown Cow Wy, Summerville, SC 29483






























