









Book your tour. Save an average of $18,473. We'll handle the rest.
We collect exclusive builder offers, book your tours, and support you from start to housewarming.
- Confirmed tours
- Get matched & compare top deals
- Expert help, no pressure
- No added fees
Estimated value based on Jome data, T&C apply


















Why tour with Jome?
- No pressure toursTour at your own pace with no sales pressure
- Expert guidanceGet insights from our home buying experts
- Exclusive accessSee homes and deals not available elsewhere
Jome is featured in
- Single-Family
- $190.8/sqft
- $710/annual HOA
- 0.14-acre lot
Home description
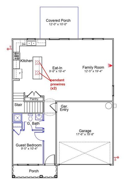
Meet the Lancaster - as you enter through the front door, you're greeted by a full guest suite. Stunning archways lead you into the great room, eat-in area, and spacious kitchen, creating a seamless and inviting main living space. A covered back porch extends off the rear of the home and overlooks a pond and mature trees. Upstairs, the primary suite sits along the back of the home, offering the same serene pond view. Located in Six Oaks, residents enjoy resort-style amenities, including a pool with a cabana, a playground, a dog park, an amphitheater, and scenic walking trails. Conveniently situated in the highly rated Dorchester District 2 school district, just three minutes from Summerville High School.
Carolina One Real Estate, MLS 26004806
May also be listed on the Mungo Homes website
Information last verified by Jome: Yesterday at 7:38 AM (April 3, 2026)
Home highlights
Cutting-edge data hub in Berkeley County boosting tech jobs, infrastructure, and digital growth in the Charleston area.
Book your tour. Save an average of $18,473. We'll handle the rest.
We collect exclusive builder offers, book your tours, and support you from start to housewarming.
- Confirmed tours
- Get matched & compare top deals
- Expert help, no pressure
- No added fees
Estimated value based on Jome data, T&C apply
Home details
- Property status:
- Pending/Under contract
- Lot size (acres):
- 0.14
- Size:
- 2,175 sqft
- Stories:
- 2
- Beds:
- 5
- Baths:
- 3
- Garage spaces:
- 2
Construction details
- Builder Name:
- Mungo Homes
- Completion Date:
- May, 2026
- Year Built:
- 2026
- Roof:
- Roof Gutter
Home features & finishes
- Construction Materials:
- Vinyl Siding
- Cooling:
- Central Air
- Flooring:
- Vinyl FlooringCarpet Flooring
- Garage/Parking:
- GarageAttached Garage
- Interior Features:
- Ceiling-HighWalk-In ClosetPantryTray Ceiling
- Kitchen:
- Kitchen Island
- Laundry facilities:
- DryerWasherUtility/Laundry Room
- Rooms:
- KitchenFamily RoomPrimary Bedroom Upstairs

Get a consultation with our New Homes Expert
- See how your home builds wealth
- Plan your home-buying roadmap
- Discover hidden gems
Utility information
- Heating:
- Gas Heating

Community details
Six Oaks
by Mungo Homes, Summerville, SC
- 11 homes
- 9 plans
- 1,383 - 2,897 sqft
View Six Oaks details
Community amenities
- Dog Park
- Club House
- Community Pool
- Park Nearby
- Walking, Jogging, Hike Or Bike Trails
More homes in Six Oaks
- Home at address 115 Brown Cow Wy, Summerville, SC 29483

Lafayette
$489,000
- 5 bd
- 3 ba
- 2,416 sqft
115 Brown Cow Wy, Summerville, SC 29483
- Home at address 209 O'Malley Dr, Summerville, SC 29483

Home
$525,000
- 5 bd
- 3 ba
- 2,897 sqft
209 O'Malley Dr, Summerville, SC 29483
Floor plans in Six Oaks
- View details for Rutherford - Genesis Value Collection

Rutherford - Genesis Value Collection
$395,000+- 5 bd
- 3.5 ba
- 2,621 sqft
About the builder - Mungo Homes
Neighborhood
Home address
- City:
- Summerville
- County:
- Dorchester
- Zip Code:
- 29483
Schools in Dorchester School District 2
GreatSchools’ Summary Rating calculation is based on 4 of the school’s themed ratings, including test scores, student/academic progress, college readiness, and equity. This information should only be used as a reference. Jome is not affiliated with GreatSchools and does not endorse or guarantee this information. Please reach out to schools directly to verify all information and enrollment eligibility. Data provided by GreatSchools.org © 2025
Places of interest
Getting around
Air quality
Noise level
A Soundscore™ rating is a number between 50 (very loud) and 100 (very quiet) that tells you how loud a location is due to environmental noise.

Considering this home?
Our expert will guide your tour, in-person or virtual
Need more information?
Text or call (888) 545-5198
Financials
Estimated monthly payment
Let us help you find your dream home
How many bedrooms are you looking for?
Similar homes nearby
Recently added communities in this area
Nearby communities in Summerville
New homes in nearby cities
More New Homes in Summerville, SC
Carolina One Real Estate, MLS 26004806
IDX information is provided exclusively for personal, non-commercial use, and may not be used for any purpose other than to identify prospective properties consumers may be interested in purchasing. Copyright Charleston Trident Multiple Listing Service, Inc. All rights reserved. Information is deemed reliable but not guaranteed.
Read moreLast checked Apr 4, 1:55 am
- Jome
- New homes search
- South Carolina
- Charleston Metropolitan Area
- Dorchester County
- Summerville
- Six Oaks
- 534 O'Leary Cir, Summerville, SC 29483





























