














Book your tour. Save an average of $18,473. We'll handle the rest.
We collect exclusive builder offers, book your tours, and support you from start to housewarming.
- Confirmed tours
- Get matched & compare top deals
- Expert help, no pressure
- No added fees
Estimated value based on Jome data, T&C apply














Why tour with Jome?
- No pressure toursTour at your own pace with no sales pressure
- Expert guidanceGet insights from our home buying experts
- Exclusive accessSee homes and deals not available elsewhere
Jome is featured in
- Single-Family
- Under construction
- $187.49/sqft
- 1 days on Jome
Home description
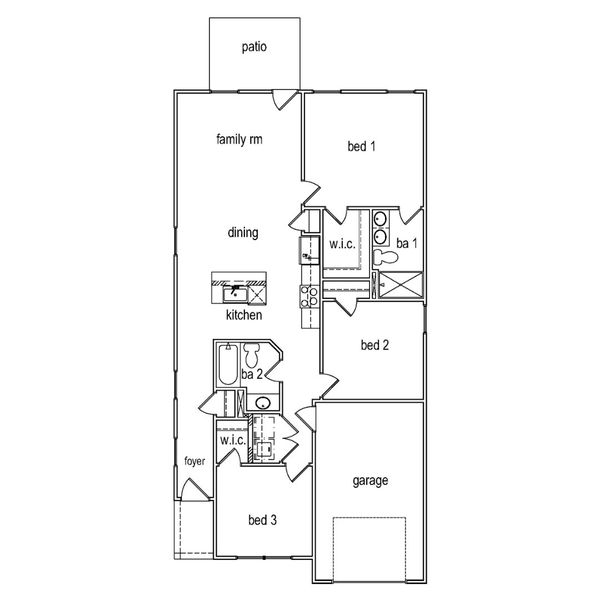
Spacious Homesite! The Juniper is a comfortable, well-designed home that keeps everything connected while still giving each bedroom its own space. With a one-level layout and an easy flow throughout, it’s a great fit for everyday living!
This floor plan offers 3 bedrooms, 2 bathrooms, and 1,200 square feet of intentional living space, along with a one-car garage. When you step inside through the foyer, you’re welcomed into the main living area where the kitchen, dining area, and family room all come together. The kitchen features a center island that’s perfect for cooking, setting out meals, or gathering with others throughout the day, making the space feel open and functional.
The primary bedroom is tucked away at the back of the home and includes its own private bathroom and walk-in closet. Two additional bedrooms are located nearby, offering flexibility for guests, kids, or a home office, along with a second full bathroom. A convenient laundry area is located nearby, making everyday routines simple.
Step outside to the patio for fresh air, grilling, or relaxing at the end of the day!
With its smart layout, one-level design, and practical use of space, the Juniper is a home that feels welcoming, comfortable, and easy to live in.
May also be listed on the McGuinn Homes website
Information last verified by Jome: Yesterday at 6:24 AM (March 3, 2026)
Book your tour. Save an average of $18,473. We'll handle the rest.
We collect exclusive builder offers, book your tours, and support you from start to housewarming.
- Confirmed tours
- Get matched & compare top deals
- Expert help, no pressure
- No added fees
Estimated value based on Jome data, T&C apply
Home details
- Property status:
- Under construction
- Size:
- 1,200 sqft
- Stories:
- 1
- Beds:
- 3
- Baths:
- 2
- Garage spaces:
- 1
Construction details
- Builder Name:
- McGuinn Homes
Home features & finishes
- Garage/Parking:
- Garage
- Rooms:
- Primary Bedroom On MainPrimary Bedroom Downstairs

Get a consultation with our New Homes Expert
- See how your home builds wealth
- Plan your home-buying roadmap
- Discover hidden gems

Community details
Forts Ridge
by McGuinn Homes, Pelion, SC
- 9 homes
- 23 plans
- 1,100 - 2,411 sqft
View Forts Ridge details
More homes in Forts Ridge
- Home at address 185 Calm Citadel Dr (46), Pelion, SC 29123

Juniper A
$221,790
- 3 bd
- 2 ba
- 1,100 sqft
185 Calm Citadel Dr (46), Pelion, SC 29123
- Home at address 313 Star Capital Way (52), Pelion, SC 29123

Spruce B
$251,290
- 3 bd
- 2 ba
- 1,392 sqft
313 Star Capital Way (52), Pelion, SC 29123
- Home at address 111 Calm Citadel Dr (68), Pelion, SC 29123

Magnolia A
$261,790
- 3 bd
- 2 ba
- 1,700 sqft
111 Calm Citadel Dr (68), Pelion, SC 29123
- Home at address 312 Star Capital Way (51), Pelion, SC 29123

Willow
$271,990
- 4 bd
- 2.5 ba
- 2,073 sqft
312 Star Capital Way (51), Pelion, SC 29123
- Home at address 193 Calm Citadel Dr (44), Pelion, SC 29123

Willow
$274,490
- 4 bd
- 2.5 ba
- 2,073 sqft
193 Calm Citadel Dr (44), Pelion, SC 29123
- Home at address 412 Nights Watch Way (41), Pelion, SC 29123

Cypress C
$274,790
- 4 bd
- 2.5 ba
- 2,075 sqft
412 Nights Watch Way (41), Pelion, SC 29123
Floor plans in Forts Ridge
About the builder - McGuinn Homes
Neighborhood
Home address
Schools in Lexington School District 1
GreatSchools’ Summary Rating calculation is based on 4 of the school’s themed ratings, including test scores, student/academic progress, college readiness, and equity. This information should only be used as a reference. Jome is not affiliated with GreatSchools and does not endorse or guarantee this information. Please reach out to schools directly to verify all information and enrollment eligibility. Data provided by GreatSchools.org © 2025
Places of interest
Getting around
Air quality

Considering this home?
Our expert will guide your tour, in-person or virtual
Need more information?
Text or call (888) 488-9243
Financials
Estimated monthly payment
Let us help you find your dream home
How many bedrooms are you looking for?
Similar homes nearby
Recently added communities in this area
Nearby communities in Pelion
New homes in nearby cities
More New Homes in Pelion, SC
- Jome
- New homes search
- South Carolina
- Lexington County
- Pelion
- Forts Ridge
- 207 Calm Citadel Dr (38), Pelion, SC 29123

































