








Book your tour. Save an average of $18,473. We'll handle the rest.
We collect exclusive builder offers, book your tours, and support you from start to housewarming.
- Confirmed tours
- Get matched & compare top deals
- Expert help, no pressure
- No added fees
Estimated value based on Jome data, T&C apply




















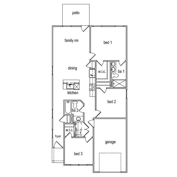
- 3 bd
- 2 ba
- 1,200 sqft
Juniper A plan in Forts Ridge by McGuinn Homes
Visit the community to experience this floor plan
Why tour with Jome?
- No pressure toursTour at your own pace with no sales pressure
- Expert guidanceGet insights from our home buying experts
- Exclusive accessSee homes and deals not available elsewhere
Jome is featured in
Plan description
May also be listed on the McGuinn Homes website
Information last verified by Jome: Today at 6:05 AM (April 11, 2026)
Book your tour. Save an average of $18,473. We'll handle the rest.
We collect exclusive builder offers, book your tours, and support you from start to housewarming.
- Confirmed tours
- Get matched & compare top deals
- Expert help, no pressure
- No added fees
Estimated value based on Jome data, T&C apply
Plan details
- Name:
- Juniper A
- Property type:
- Floor plan
- Community:
- Forts Ridge
- Builder:
- McGuinn Homes
- Size:
- 1,200 sqft
- Stories:
- 1
- Beds:
- 3
- Baths:
- 2
- Garage spaces:
- 1
Plan features & finishes
- Garage/Parking:
- Garage
- Rooms:
- Primary Bedroom On MainPrimary Bedroom Downstairs

Get a consultation with our New Homes Expert
- See how your home builds wealth
- Plan your home-buying roadmap
- Discover hidden gems

Community details
Forts Ridge
by McGuinn Homes, Pelion, SC
- 9 homes
- 23 plans
- 1,100 - 2,411 sqft
View Forts Ridge details
Want to know more about what's around here?
The Juniper A floor plan is part of Forts Ridge, a new home community by McGuinn Homes, located in Pelion, SC. Visit the Forts Ridge community page for full neighborhood insights, including nearby schools, shopping, walk & bike-scores, commuting, air quality & natural hazards.

Homes built from this plan
Available homes in Forts Ridge
- Home at address 207 Calm Citadel Dr (38), Pelion, SC 29123

Juniper B
$225,990
- 3 bd
- 2 ba
- 1,200 sqft
207 Calm Citadel Dr (38), Pelion, SC 29123
- Home at address 135 Calm Citadel Dr (62), Pelion, SC 29123

Birch B
$258,837
- 3 bd
- 2.5 ba
- 1,883 sqft
135 Calm Citadel Dr (62), Pelion, SC 29123
- Home at address 111 Calm Citadel Dr (68), Pelion, SC 29123

Magnolia A
$262,790
- 3 bd
- 2 ba
- 1,700 sqft
111 Calm Citadel Dr (68), Pelion, SC 29123
- Home at address 312 Star Capital Way (51), Pelion, SC 29123

Willow
$272,990
- 4 bd
- 2.5 ba
- 2,073 sqft
312 Star Capital Way (51), Pelion, SC 29123
- Home at address 193 Calm Citadel Dr (44), Pelion, SC 29123

Willow
$275,490
- 4 bd
- 2.5 ba
- 2,073 sqft
193 Calm Citadel Dr (44), Pelion, SC 29123
- Home at address 412 Nights Watch Way (41), Pelion, SC 29123

Cypress C
$276,892
- 4 bd
- 2.5 ba
- 2,075 sqft
412 Nights Watch Way (41), Pelion, SC 29123
More floor plans in Forts Ridge

Considering this plan?
Our expert will guide your tour, in-person or virtual
Need more information?
Text or call (888) 545-5198
Financials
Estimated monthly payment
Let us help you find your dream home
How many bedrooms are you looking for?
Similar homes nearby
Recently added communities in this area
Nearby communities in Pelion
New homes in nearby cities
More New Homes in Pelion, SC
- Jome
- New homes search
- South Carolina
- Lexington County
- Pelion
- Forts Ridge
- Forts Pond Rd, Pelion, SC 29123

































