














Book your tour. Save an average of $18,473. We'll handle the rest.
We collect exclusive builder offers, book your tours, and support you from start to housewarming.
- Confirmed tours
- Get matched & compare top deals
- Expert help, no pressure
- No added fees
Estimated value based on Jome data, T&C apply


Why tour with Jome?
- No pressure toursTour at your own pace with no sales pressure
- Expert guidanceGet insights from our home buying experts
- Exclusive accessSee homes and deals not available elsewhere
Jome is featured in
- Single-Family
- Ready by June 2026
- $145.2/sqft
- 9 days on Jome
Home description
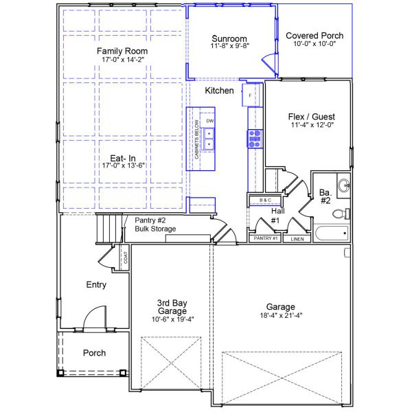
This Saluda II is a beautiful five bedroom, four bathroom, three-car garage home with an open plan featuring luxury vinyl plank flooring throughout the home. As you walk into the home, you'll see the open concept great room, open kitchen, and living area as well as the sunroom. This space is perfect for entertaining friends and loved ones or hosting special holidays and get-togethers! The kitchen features a large island, quartz countertops, and gas stainless gourmet kitchen appliances. The guest suite is downstairs off of the great room. Upstairs, there are four bedrooms with large walk-in closets, including the primary bedroom that has a large sitting room with a luxury primary bathroom featuring a soaking tub and large walk-in shower with bench seat.
May also be listed on the Mungo Homes website
Information last verified by Jome: Today at 5:40 AM (February 25, 2026)
Book your tour. Save an average of $18,473. We'll handle the rest.
We collect exclusive builder offers, book your tours, and support you from start to housewarming.
- Confirmed tours
- Get matched & compare top deals
- Expert help, no pressure
- No added fees
Estimated value based on Jome data, T&C apply
Home details
- Property status:
- Under construction
- Size:
- 3,175 sqft
- Stories:
- 2
- Beds:
- 5
- Baths:
- 4
- Garage spaces:
- 3
Construction details
- Builder Name:
- Mungo Homes
- Completion Date:
- June, 2026
Home features & finishes
- Garage/Parking:
- Garage
- Rooms:
- Primary Bedroom Upstairs

Get a consultation with our New Homes Expert
- See how your home builds wealth
- Plan your home-buying roadmap
- Discover hidden gems

Community details
Cottages at Lake Emory
by Mungo Homes, Inman, SC
- 4 homes
- 9 plans
- 1,531 - 4,009 sqft
View Cottages at Lake Emory details
More homes in Cottages at Lake Emory
- Home at address 1295 Dockyard Ln, Inman, SC 29349

Cary
$330,000
- 3 bd
- 2 ba
- 1,544 sqft
1295 Dockyard Ln, Inman, SC 29349
- Home at address 1304 Dockyard Ln, Inman, SC 29349

Elliott
$369,000
- 3 bd
- 2 ba
- 2,178 sqft
1304 Dockyard Ln, Inman, SC 29349
- Home at address 1248 Dockyard Ln, Inman, SC 29349

Hunter
$409,000
- 4 bd
- 3.5 ba
- 2,595 sqft
1248 Dockyard Ln, Inman, SC 29349
Floor plans in Cottages at Lake Emory
- View details for Savannah - Vanguard Collection

Savannah - Vanguard Collection
$345,000+- 5 bd
- 2.5 ba
- 2,886 sqft
- View details for Yates II - Vanguard Collection

Yates II - Vanguard Collection
$416,000+- 5 bd
- 4.5 ba
- 4,009 sqft
About the builder - Mungo Homes
Neighborhood
Home address
- City:
- Inman
- County:
- Spartanburg
- Zip Code:
- 29349
Schools in Spartanburg School District 2
GreatSchools’ Summary Rating calculation is based on 4 of the school’s themed ratings, including test scores, student/academic progress, college readiness, and equity. This information should only be used as a reference. Jome is not affiliated with GreatSchools and does not endorse or guarantee this information. Please reach out to schools directly to verify all information and enrollment eligibility. Data provided by GreatSchools.org © 2025
Places of interest
Getting around
Air quality
Noise level
A Soundscore™ rating is a number between 50 (very loud) and 100 (very quiet) that tells you how loud a location is due to environmental noise.

Considering this home?
Our expert will guide your tour, in-person or virtual
Need more information?
Text or call (888) 488-9243
Financials
Estimated monthly payment
Let us help you find your dream home
How many bedrooms are you looking for?
Similar homes nearby
Recently added communities in this area
Nearby communities in Inman
New homes in nearby cities
More New Homes in Inman, SC
- Jome
- New homes search
- South Carolina
- Spartanburg County
- Inman
- Cottages at Lake Emory
- 1267 Dockyard Ln, Inman, SC 29349
























