














Book your tour. Save an average of $18,473. We'll handle the rest.
We collect exclusive builder offers, book your tours, and support you from start to housewarming.
- Confirmed tours
- Get matched & compare top deals
- Expert help, no pressure
- No added fees
Estimated value based on Jome data, T&C apply








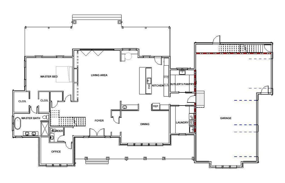
- 5 bd
- 4.5 ba
- 4,572 sqft
5025 Reese Ln, Johns Island, SC 29455
Why tour with Jome?
- No pressure toursTour at your own pace with no sales pressure
- Expert guidanceGet insights from our home buying experts
- Exclusive accessSee homes and deals not available elsewhere
Jome is featured in
- Single-Family
- Quick move-in
- $371.83/sqft
- Northeast facing
Home description
Welcome to the prestigious Haven Estates community! This proposed, Semi-custom, new construction home will be situated on the largest lot in the neighborhood, located at the end of a cul-de-sac and embraced by nature. The home will feature 5 bedrooms and 4.5 bathrooms, offering spacious and comfortable living. There is also a full functional Mother-in-law space for guests. Don't miss the chance to be a part of this hidden gem, conveniently located near beautiful beaches and award-winning golf courses. *Disclaimer: The images in this listing are AI-generated and meant to illustrate potential designs and aesthetics for this proposed home. Actual materials and finishes may vary. Please consult with the builder/list agent for specific details and upgrades available.
Pam Harrington Exclusives, MLS 25033052
Information last verified by Jome: Today at 7:55 AM (March 5, 2026)
Book your tour. Save an average of $18,473. We'll handle the rest.
We collect exclusive builder offers, book your tours, and support you from start to housewarming.
- Confirmed tours
- Get matched & compare top deals
- Expert help, no pressure
- No added fees
Estimated value based on Jome data, T&C apply
Home details
- Property status:
- Move-in ready
- Lot size (acres):
- 1.15
- Size:
- 4,572 sqft
- Stories:
- 2
- Beds:
- 5
- Baths:
- 4
- Half baths:
- 1
- Garage spaces:
- 3
- Facing direction:
- Northeast
Construction details
- Year Built:
- 2026
- Roof:
- Metal Roofing, Roof Gutter
Home features & finishes
- Construction Materials:
- Brick
- Cooling:
- Ceiling Fan(s)Central Air
- Flooring:
- Ceramic FlooringWood FlooringTile Flooring
- Garage/Parking:
- GarageAttached Garage
- Interior Features:
- Ceiling-HighWalk-In ClosetFoyerPantry
- Kitchen:
- Kitchen Island
- Laundry facilities:
- DryerWasherUtility/Laundry Room
- Property amenities:
- Cul-de-sacIrrigationFireplacePorch
- Rooms:
- KitchenOffice/StudyDining RoomFamily RoomLiving RoomSeparate Living and Dining

Get a consultation with our New Homes Expert
- See how your home builds wealth
- Plan your home-buying roadmap
- Discover hidden gems
Utility information
- Heating:
- Electric Heating, Heat Pump
Neighborhood
Home address
- City:
- Johns Island
- County:
- Charleston
- Zip Code:
- 29455
Schools in Charleston County School District
GreatSchools’ Summary Rating calculation is based on 4 of the school’s themed ratings, including test scores, student/academic progress, college readiness, and equity. This information should only be used as a reference. Jome is not affiliated with GreatSchools and does not endorse or guarantee this information. Please reach out to schools directly to verify all information and enrollment eligibility. Data provided by GreatSchools.org © 2025
Places of interest
Getting around
Air quality
Natural hazards risk
Provided by FEMA

Considering this home?
Our expert will guide your tour, in-person or virtual
Need more information?
Text or call (888) 488-9243
Financials
Estimated monthly payment
Let us help you find your dream home
How many bedrooms are you looking for?
Similar homes nearby
Recently added communities in this area
Nearby communities in Johns Island
New homes in nearby cities
More New Homes in Johns Island, SC
Pam Harrington Exclusives, MLS 25033052
IDX information is provided exclusively for personal, non-commercial use, and may not be used for any purpose other than to identify prospective properties consumers may be interested in purchasing. Copyright Charleston Trident Multiple Listing Service, Inc. All rights reserved. Information is deemed reliable but not guaranteed.
Read moreLast checked Mar 5, 7:55 am
- Jome
- New homes search
- South Carolina
- Charleston Metropolitan Area
- Charleston County
- Johns Island
- 5025 Reese Ln, Johns Island, SC 29455



























