




Book your tour. Save an average of $18,473. We'll handle the rest.
- Confirmed tours
- Get matched & compare top deals
- Expert help, no pressure
- No added fees
Estimated value based on Jome data, T&C apply
Why tour with Jome?
- No pressure toursTour at your own pace with no sales pressure
- Expert guidanceGet insights from our home buying experts
- Exclusive accessSee homes and deals not available elsewhere
Jome is featured in
- Single-Family
- Ready by March 2026
- $124.28/sqft
- 1 days on Jome
Home description
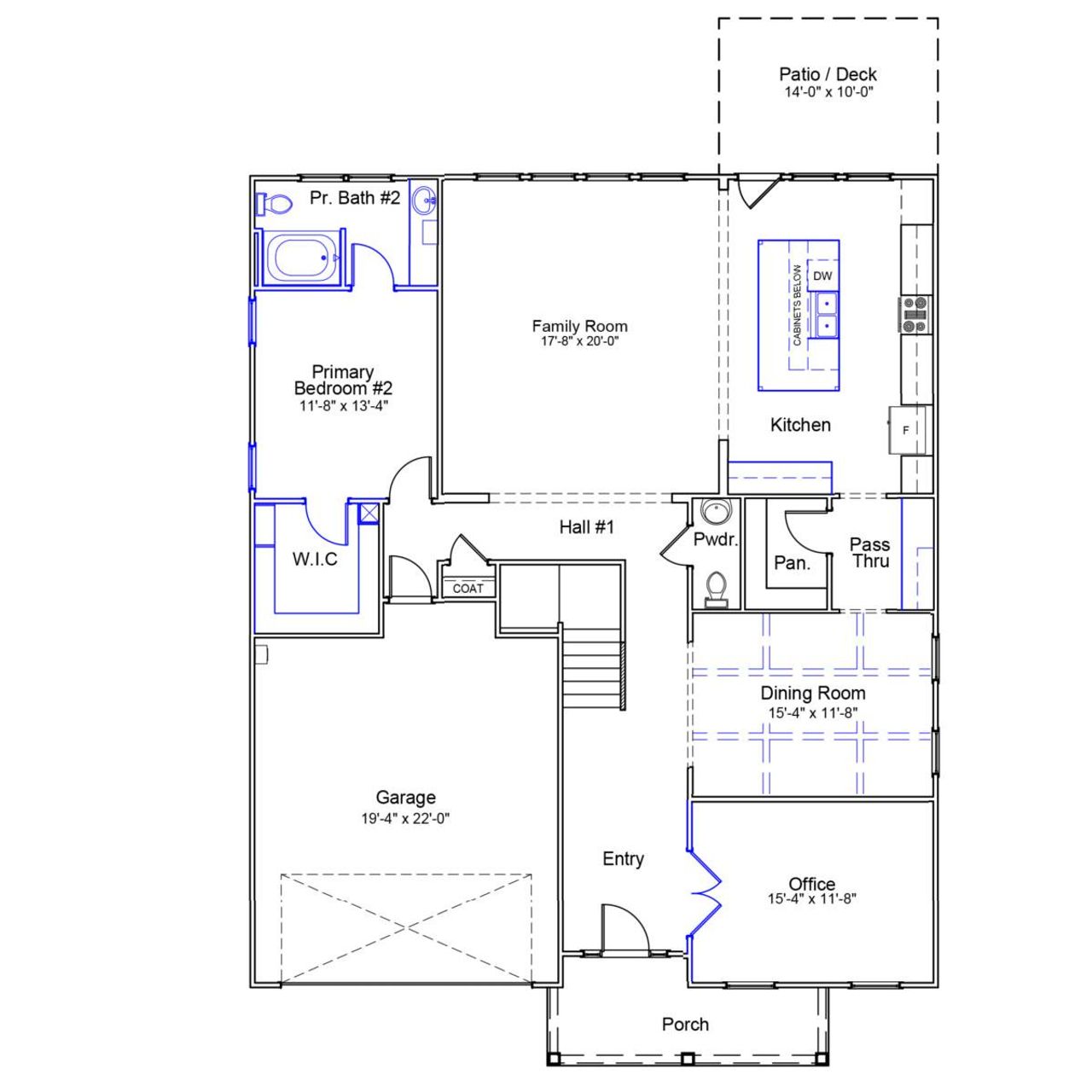
The Yates II floor plan, located in desirable Chapin, SC, offers a thoughtfully designed layout with exceptional space and functionality. This home is conveniently located within walking distance to the community’s future pool, adding to its appeal and lifestyle convenience. The home features a second primary suite on the main level, ideal for guests or multi-generational living, along with a private office enclosed by French doors. Entertain with ease in the elegant dining room showcasing coffered ceilings, which connects seamlessly to the kitchen through a pass-through with a butler’s pantry. The gourmet kitchen is a true centerpiece, complete with a large island topped with Luna Pearl granite, a gas cooktop, and upgraded finishes throughout. The main primary suite is located upstairs and serves as a private retreat, featuring a luxury bath, dual closets, and a spacious laundry room conveniently located just off the suite with a support countertop. Additional highlights include a smart home automation package, full gutters, and quality craftsmanship throughout—making this home a perfect blend of comfort, style, and modern convenience.
May also be listed on the Mungo Homes website
Information last verified by Jome: Today at 5:52 AM (December 17, 2025)
Home highlights
Book your tour. Save an average of $18,473. We'll handle the rest.
We collect exclusive builder offers, book your tours, and support you from start to housewarming.
- Confirmed tours
- Get matched & compare top deals
- Expert help, no pressure
- No added fees
Estimated value based on Jome data, T&C apply
Home details
- Property status:
- Under construction
- Size:
- 4,009 sqft
- Stories:
- 2
- Beds:
- 5
- Baths:
- 4
- Half baths:
- 1
- Garage spaces:
- 2
Construction details
- Builder Name:
- Mungo Homes
- Completion Date:
- March, 2026
Home features & finishes
- Garage/Parking:
- Garage
- Rooms:
- Primary Bedroom Upstairs

Community details
Pebble Branch
by Mungo Homes, Chapin, SC
- 15 homes
- 9 plans
- 1,671 - 4,009 sqft
View Pebble Branch details
More homes in Pebble Branch
Floor plans in Pebble Branch
About the builder - Mungo Homes
Neighborhood
Home address
Schools in Lexington School District 5
GreatSchools’ Summary Rating calculation is based on 4 of the school’s themed ratings, including test scores, student/academic progress, college readiness, and equity. This information should only be used as a reference. Jome is not affiliated with GreatSchools and does not endorse or guarantee this information. Please reach out to schools directly to verify all information and enrollment eligibility. Data provided by GreatSchools.org © 2025
Places of interest
Getting around
Air quality
Natural hazards risk
Climate hazards can impact homes and communities, with risks varying by location. These scores reflect the potential impact of natural disasters and climate-related risks on Lexington County
Provided by FEMA

Considering this home?
Our expert will guide your tour, in-person or virtual
Need more information?
Text or call (888) 486-2818
Financials
Estimated monthly payment
Similar homes nearby
Recently added communities in this area
Nearby communities in Chapin
New homes in nearby cities
More New Homes in Chapin, SC
- Jome
- New homes search
- South Carolina
- Lexington County
- Chapin
- Pebble Branch
- 414 Rising Stream Wy, Chapin, SC 29036



































