



Book your tour. Save an average of $18,473. We'll handle the rest.
We collect exclusive builder offers, book your tours, and support you from start to housewarming.
- Confirmed tours
- Get matched & compare top deals
- Expert help, no pressure
- No added fees
Estimated value based on Jome data, T&C apply

Why tour with Jome?
- No pressure toursTour at your own pace with no sales pressure
- Expert guidanceGet insights from our home buying experts
- Exclusive accessSee homes and deals not available elsewhere
Jome is featured in
- Single-Family
- Ready by July 2026
- $160.78/sqft
- 53 days on Jome
Home description
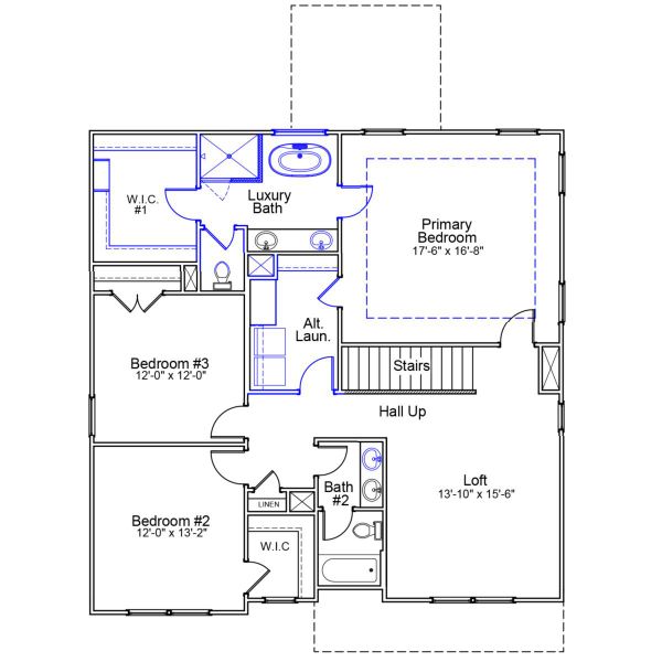
The Mulberry is a beautiful four-bedroom, three-bathroom plan. Upon entering, you are greeted with a guest bedroom off the foyer. As you continue down the hall, you enter the open kitchen, eat-in area, and great room. The kitchen features a large island with cabinets. There is a sunroom located off the kitchen. A full bath completes the first floor. Upstairs, you will find a large primary bedroom, two secondary bedrooms, and a loft. The primary bedroom features a walk-in closet and a luxury bathroom. The second floor is rounded out with a shared hall bath and a laundry room!
May also be listed on the Mungo Homes website
Information last verified by Jome: Today at 5:43 AM (May 2, 2026)
Book your tour. Save an average of $18,473. We'll handle the rest.
We collect exclusive builder offers, book your tours, and support you from start to housewarming.
- Confirmed tours
- Get matched & compare top deals
- Expert help, no pressure
- No added fees
Estimated value based on Jome data, T&C apply
Home details
- Property status:
- Under construction
- Size:
- 2,610 sqft
- Stories:
- 2
- Beds:
- 4
- Baths:
- 3
- Garage spaces:
- 2
Construction details
- Builder Name:
- Mungo Homes
- Completion Date:
- July, 2026
Home features & finishes
- Garage/Parking:
- Garage
- Rooms:
- Primary Bedroom Upstairs

Get a consultation with our New Homes Expert
- See how your home builds wealth
- Plan your home-buying roadmap
- Discover hidden gems

Community details
Pebble Branch
by Mungo Homes, Chapin, SC
- 8 homes
- 9 plans
- 1,671 - 4,009 sqft
View Pebble Branch details
More homes in Pebble Branch
- Home at address 617 Falling Leaf Ln, Chapin, SC 29036

Nottely
$421,417
- 5 bd
- 3.5 ba
- 2,507 sqft
617 Falling Leaf Ln, Chapin, SC 29036
- Home at address 625 Falling Leaf Ln, Chapin, SC 29036

Roanoke
$430,998
- 4 bd
- 3.5 ba
- 2,723 sqft
625 Falling Leaf Ln, Chapin, SC 29036
- Home at address 621 Falling Leaf Ln, Chapin, SC 29036

Roland II
$436,715
- 4 bd
- 3.5 ba
- 2,879 sqft
621 Falling Leaf Ln, Chapin, SC 29036
- Home at address 637 Falling Leaf Ln, Chapin, SC 29036

Roland II
$447,885
- 4 bd
- 3.5 ba
- 3,004 sqft
637 Falling Leaf Ln, Chapin, SC 29036
- Home at address 410 Rising Stream Wy, Chapin, SC 29036

Webster II
$489,249
- 5 bd
- 4.5 ba
- 3,578 sqft
410 Rising Stream Wy, Chapin, SC 29036
- Home at address 373 Rising Stream Wy, Chapin, SC 29036

Webster II
$521,884
- 5 bd
- 4.5 ba
- 3,652 sqft
373 Rising Stream Wy, Chapin, SC 29036
Floor plans in Pebble Branch
- View details for Nottely - Vanguard Collection

Nottely - Vanguard Collection
$348,000+- 4 bd
- 2.5 ba
- 2,490 sqft
- View details for Roanoke - Vanguard Collection

Roanoke - Vanguard Collection
$363,000+- 4 bd
- 2.5 ba
- 2,708 sqft
About the builder - Mungo Homes
Neighborhood
Home address
Schools in Lexington School District 5
GreatSchools’ Summary Rating calculation is based on 4 of the school’s themed ratings, including test scores, student/academic progress, college readiness, and equity. This information should only be used as a reference. Jome is not affiliated with GreatSchools and does not endorse or guarantee this information. Please reach out to schools directly to verify all information and enrollment eligibility. Data provided by GreatSchools.org © 2025
Places of interest
Getting around
Air quality

Considering this home?
Our expert will guide your tour, in-person or virtual
Need more information?
Text or call (888) 545-5198
Financials
Estimated monthly payment
Let us help you find your dream home
How many bedrooms are you looking for?
Similar homes nearby
Recently added communities in this area
Nearby communities in Chapin
New homes in nearby cities
More New Homes in Chapin, SC
- Jome
- New homes search
- South Carolina
- Lexington County
- Chapin
- Pebble Branch
- 613 Falling Leaf Ln, Chapin, SC 29036
































