













Book your tour. Save an average of $18,473. We'll handle the rest.
We collect exclusive builder offers, book your tours, and support you from start to housewarming.
- Confirmed tours
- Get matched & compare top deals
- Expert help, no pressure
- No added fees
Estimated value based on Jome data, T&C apply




- 4 bd
- 2.5 ba
- 2,697 sqft
126 Sea Oat St, Summerville, SC 29485
Why tour with Jome?
- No pressure toursTour at your own pace with no sales pressure
- Expert guidanceGet insights from our home buying experts
- Exclusive accessSee homes and deals not available elsewhere
Jome is featured in
- Single-Family
- Quick move-in
- $169.17/sqft
- $133.33/monthly HOA
Home description
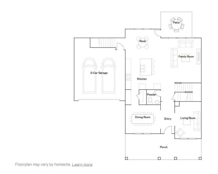
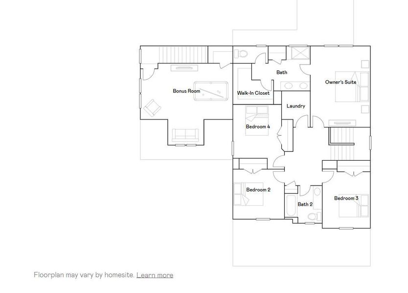
This spacious two-story home features a formal dining room, living room and an open living space with quick access to the patio for outdoor living. Upstairs is a bonus room with endless possibilities, three secondary bedrooms and the owner's suite.Summers Corner is a welcome retreat from the hectic pace of life located in the perfect spot between town and country. At Summers Corner everything is done with intention...from the trails that take you to schools, parks, secret gardens and Buffalo Lake. Discover the artful birdhouses that support not just birds but the entire local ecosystem. Homes include front porches that are designed to be lived on - not just looked at. Discover and explore the active outdoors from kayaks and fishing on the lake to hiking and biking clubs. Thanks to the East Edisto Conservancy, the land will retain its rural character in perpetuity
Lennar Sales Corp., MLS 25031681
May also be listed on the Lennar website
Information last verified by Jome: Yesterday at 7:38 AM (March 6, 2026)
Home highlights
Family-friendly base with top-rated schools, walkable neighborhoods, and easy access to Charleston's amenities.
Book your tour. Save an average of $18,473. We'll handle the rest.
We collect exclusive builder offers, book your tours, and support you from start to housewarming.
- Confirmed tours
- Get matched & compare top deals
- Expert help, no pressure
- No added fees
Estimated value based on Jome data, T&C apply
Home details
- Property status:
- Move-in ready
- Collection:
- Heron's Walk at Summers Corner: Coastal
- Lot size (acres):
- 0.19
- Size:
- 2,697 sqft
- Stories:
- 2
- Beds:
- 4
- Baths:
- 2
- Half baths:
- 1
- Garage spaces:
- 2
Construction details
- Builder Name:
- Lennar
- Year Built:
- 2026
Home features & finishes
- Appliances:
- Sprinkler System
- Construction Materials:
- Vinyl Siding
- Cooling:
- Central Air
- Flooring:
- Ceramic FlooringVinyl FlooringCarpet FlooringTile Flooring
- Garage/Parking:
- GarageAttached Garage
- Interior Features:
- Ceiling-HighWalk-In ClosetFoyer
- Kitchen:
- Gas CooktopKitchen Island
- Laundry facilities:
- DryerWasherUtility/Laundry Room
- Property amenities:
- SodPatioFireplacePorch
- Rooms:
- Bonus RoomKitchenNookPowder RoomDining RoomFamily RoomLiving RoomOpen Concept FloorplanSeparate Living and DiningPrimary Bedroom Upstairs

Get a consultation with our New Homes Expert
- See how your home builds wealth
- Plan your home-buying roadmap
- Discover hidden gems
Utility information
- Heating:
- Gas Heating

Community details
Heron's Walk at Summers Corner
by Lennar, Ridgeville, SC
- 16 homes
- 25 plans
- 1,430 - 3,556 sqft
View Heron's Walk at Summers Corner details
Community amenities
- Dog Park
- Community Pool
- Park Nearby
- Walking, Jogging, Hike Or Bike Trails
More homes in Heron's Walk at Summers Corner
- Home at address 142 Post Mill Dr, Summerville, SC 29485

Sweetgrass
Heron's Walk at Summers Corner: Carolina
$374,999
- 4 bd
- 2.5 ba
- 1,997 sqft
142 Post Mill Dr, Summerville, SC 29485
- Home at address 240 Maritime Wy, Summerville, SC 29485

ASHLEY
Heron's Walk at Summers Corner: Row
$390,490
- 5 bd
- 3 ba
- 2,525 sqft
240 Maritime Wy, Summerville, SC 29485
- Home at address 256 Maritime Wy, Summerville, SC 29485

RUTLEDGE
Heron's Walk at Summers Corner: Row
$426,925
- 4 bd
- 2.5 ba
- 2,385 sqft
256 Maritime Wy, Summerville, SC 29485
- Home at address 138 Salt Yard Lndg, Summerville, SC 29485

Ashley
Heron's Walk at Summers Corner: Row
$429,900
- 4 bd
- 2.5 ba
- 2,666 sqft
138 Salt Yard Lndg, Summerville, SC 29485
- Home at address 260 Maritime Wy, Summerville, SC 29485

TRADD
Heron's Walk at Summers Corner: Row
$450,790
- 4 bd
- 4.5 ba
- 2,851 sqft
260 Maritime Wy, Summerville, SC 29485
- Home at address 122 Sea Oat St, Summerville, SC 29485

FRANKLIN
Heron's Walk at Summers Corner: Coastal
$465,000
- 5 bd
- 4 ba
- 3,018 sqft
122 Sea Oat St, Summerville, SC 29485
Floor plans in Heron's Walk at Summers Corner
- View details for SWEETGRASS

SWEETGRASS
Heron's Walk at Summers Corner: Carolina
$388,000+- 4 bd
- 2.5 ba
- 1,986 sqft
- View details for PRIMROSE

PRIMROSE
Heron's Walk at Summers Corner: Carolina
$396,000+- 4 bd
- 2.5 ba
- 2,185 sqft
About the builder - Lennar

- 1,765communities on Jome
- 6,406homes on Jome
Neighborhood
Home address
- City:
- Summerville
- County:
- Dorchester
- Zip Code:
- 29485
Schools in Dorchester School District 2
GreatSchools’ Summary Rating calculation is based on 4 of the school’s themed ratings, including test scores, student/academic progress, college readiness, and equity. This information should only be used as a reference. Jome is not affiliated with GreatSchools and does not endorse or guarantee this information. Please reach out to schools directly to verify all information and enrollment eligibility. Data provided by GreatSchools.org © 2025
Places of interest
Getting around
Air quality

Considering this home?
Our expert will guide your tour, in-person or virtual
Need more information?
Text or call (888) 488-9243
Financials
Estimated monthly payment
Let us help you find your dream home
How many bedrooms are you looking for?
Similar homes nearby
Recently added communities in this area
Nearby communities in Summerville
New homes in nearby cities
More New Homes in Summerville, SC
Lennar Sales Corp., MLS 25031681
IDX information is provided exclusively for personal, non-commercial use, and may not be used for any purpose other than to identify prospective properties consumers may be interested in purchasing. Copyright Charleston Trident Multiple Listing Service, Inc. All rights reserved. Information is deemed reliable but not guaranteed.
Read moreLast checked Mar 7, 1:55 am






























