




Book your tour. Save an average of $18,473. We'll handle the rest.
- Confirmed tours
- Get matched & compare top deals
- Expert help, no pressure
- No added fees
Estimated value based on Jome data, T&C apply
Why tour with Jome?
- No pressure toursTour at your own pace with no sales pressure
- Expert guidanceGet insights from our home buying experts
- Exclusive accessSee homes and deals not available elsewhere
Jome is featured in
- Single-Family
- Under construction
- $209.68/sqft
- 0.20-acre lot
Home description
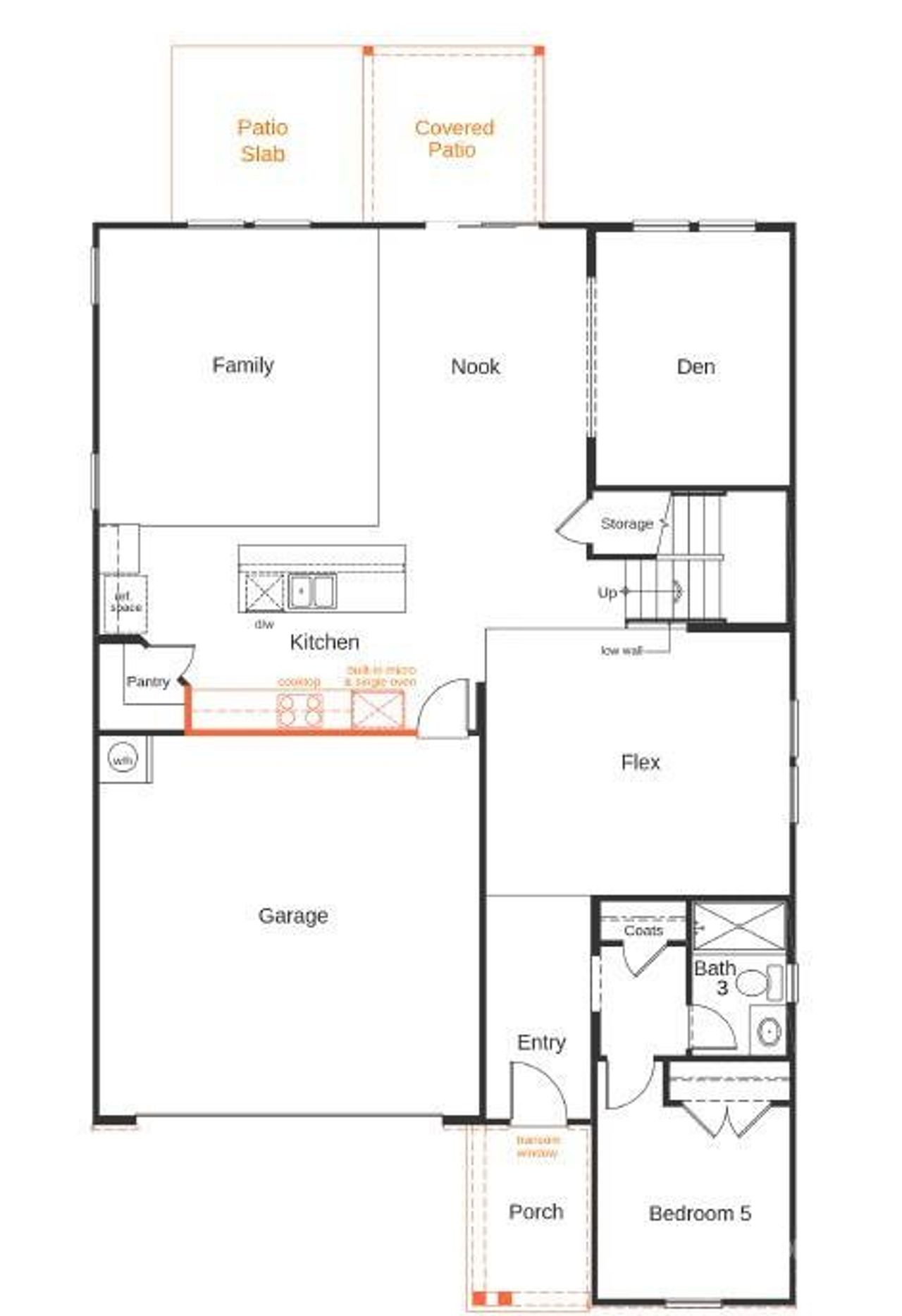
The 3147 is our largest available plan and built for family fun, with a 28x15 game room for all the indoor fun you can handle.
5 Bedrooms including one on the main with a full bath for out of town family or guests and 4 bedrooms upstairs.
An extra den/office & a Flex room lets you keep all of your bedrooms for beds!
Gourmet Kitchen, 9' ceilings, covered patio with an extra patio slab. Primary suite is a private escape, with our "Super Primary bath" that includes a soaking tub.
Commuter & Fun Friendly Location! Close to Ballantyne (just 7 miles to "the Bowl"), Waverly & Ft. Mill. Beautiful community that will feature Pool, Cabana, Playground and walking trails! All of our homes are designed to be Energy Star Certified. This community has sold so fast, and Phase one is almost sold out with phase two not ready till early 27, Great price for the home and area.
William Kiselick, MLS CAR4326765
May also be listed on the KB Home website
Information last verified by Jome: Today at 12:09 AM (December 6, 2025)
Home highlights
Border-straddling theme park near Charlotte with coasters, water rides, and seasonal events for all ages.
Book your tour. Save an average of $18,473. We'll handle the rest.
We collect exclusive builder offers, book your tours, and support you from start to housewarming.
- Confirmed tours
- Get matched & compare top deals
- Expert help, no pressure
- No added fees
Estimated value based on Jome data, T&C apply
Home details
- Property status:
- Under construction
- Lot size (acres):
- 0.20
- Size:
- 3,147 sqft
- Stories:
- 2
- Beds:
- 5
- Baths:
- 3
- Garage spaces:
- 2
Construction details
- Builder Name:
- KB Home
- Year Built:
- 2025
Home features & finishes
- Construction Materials:
- CementStone
- Cooling:
- Central Air
- Flooring:
- Vinyl FlooringCarpet FlooringTile Flooring
- Foundation Details:
- Slab
- Garage/Parking:
- GarageAttached Garage
- Interior Features:
- Sliding Doors
- Kitchen:
- DishwasherDisposalGas CooktopGas OvenKitchen Range
- Laundry facilities:
- Laundry Facilities In UnitLaundry Facilities On Upper LevelUtility/Laundry Room
- Property amenities:
- PatioPorch
Utility information
- Heating:
- Floor Furnace, Gas Heating
- Utilities:
- Electricity Available, Natural Gas on Property, Cable Available

Community details
Wilson Creek
by KB Home, Indian Land, SC
- 10 homes
- 1,445 - 3,147 sqft
View Wilson Creek details
Community amenities
- Playground
- Community Pool
- Picnic Area
- Cabana
- Sidewalks Available
- Walking, Jogging, Hike Or Bike Trails
More homes in Wilson Creek
About the builder - KB Home
Neighborhood
Home address
- City:
- Indian Land
- County:
- Lancaster
- Zip Code:
- 29707
Schools in Lancaster County School District
GreatSchools’ Summary Rating calculation is based on 4 of the school’s themed ratings, including test scores, student/academic progress, college readiness, and equity. This information should only be used as a reference. Jome is not affiliated with GreatSchools and does not endorse or guarantee this information. Please reach out to schools directly to verify all information and enrollment eligibility. Data provided by GreatSchools.org © 2025
Places of interest
Getting around
Noise level
A Soundscore™ rating is a number between 50 (very loud) and 100 (very quiet) that tells you how loud a location is due to environmental noise.
Natural hazards risk
Climate hazards can impact homes and communities, with risks varying by location. These scores reflect the potential impact of natural disasters and climate-related risks on Lancaster County
Provided by FEMA

Considering this home?
Our expert will guide your tour, in-person or virtual
Need more information?
Text or call (888) 486-2818
Financials
Estimated monthly payment
Similar homes nearby
Recently added communities in this area
Nearby communities in Indian Land
New homes in nearby cities
More New Homes in Indian Land, SC
William Kiselick, MLS CAR4326765
Based on information submitted to the MLS GRID as of 10/21/2024 2:31 PM CDT. All data is obtained from various sources and may not have been verified by the broker or MLS GRID. Supplied Open House Information is subject to change without notice. All information should be independently reviewed and verified for accuracy. Properties may or may not be listed by the office/agent presenting the information. Properties displayed may be listed or sold by various participants in the MLS. The Digital Millennium Copyright Act of 1998, 17 U.S.C. § 512 (the “DMCA”) provides recourse for copyright owners who believe that material appearing on the Internet infringes their rights under U.S. copyright law. If you believe in good faith that any content or material made available in connection with our website or services infringes your copyright, you (or your agent) may send us a notice requesting that the content or material be removed, or access to it blocked. Notices must be sent in writing by email to DMCAnotice@MLSGrid.com. The DMCA requires that your notice of alleged copyright infringement include the following information: (1) description of the copyrighted work that is the subject of claimed infringement; (2) description of the alleged infringing content and information sufficient to permit us to locate the content; (3) contact information for you, including your address, telephone number and email address; (4) a statement by you that you have a good faith belief that the content in the manner complained of is not authorized by the copyright owner, or its agent, or by the operation of any law; (5) a statement by you, signed under penalty of perjury, that the information in the notification is accurate and that you have the authority to enforce the copyrights that are claimed to be infringed; and (6) a physical or electronic signature of the copyright owner or a person authorized to act on the copyright owner’s behalf. Failure to include all of the above information may result in the delay of the processing of your complaint.
Read moreLast checked Dec 6, 5:00 am
- Home
- New homes
- South Carolina
- Charlotte Metropolitan Area
- Lancaster County
- Indian Land
- Wilson Creek
- 1217 Daniel Pine Dr, Indian Land, SC 29707





























