




- 3 bd
- 2.5 ba
- 2,214 sqft
116 Fox Creek Ct, Easley, SC 29642
- Single-Family
- $189.7/sqft
- 140 days on Jome
New Homes for Sale Near 116 Fox Creek Ct, Easley, SC 29642
About this Home
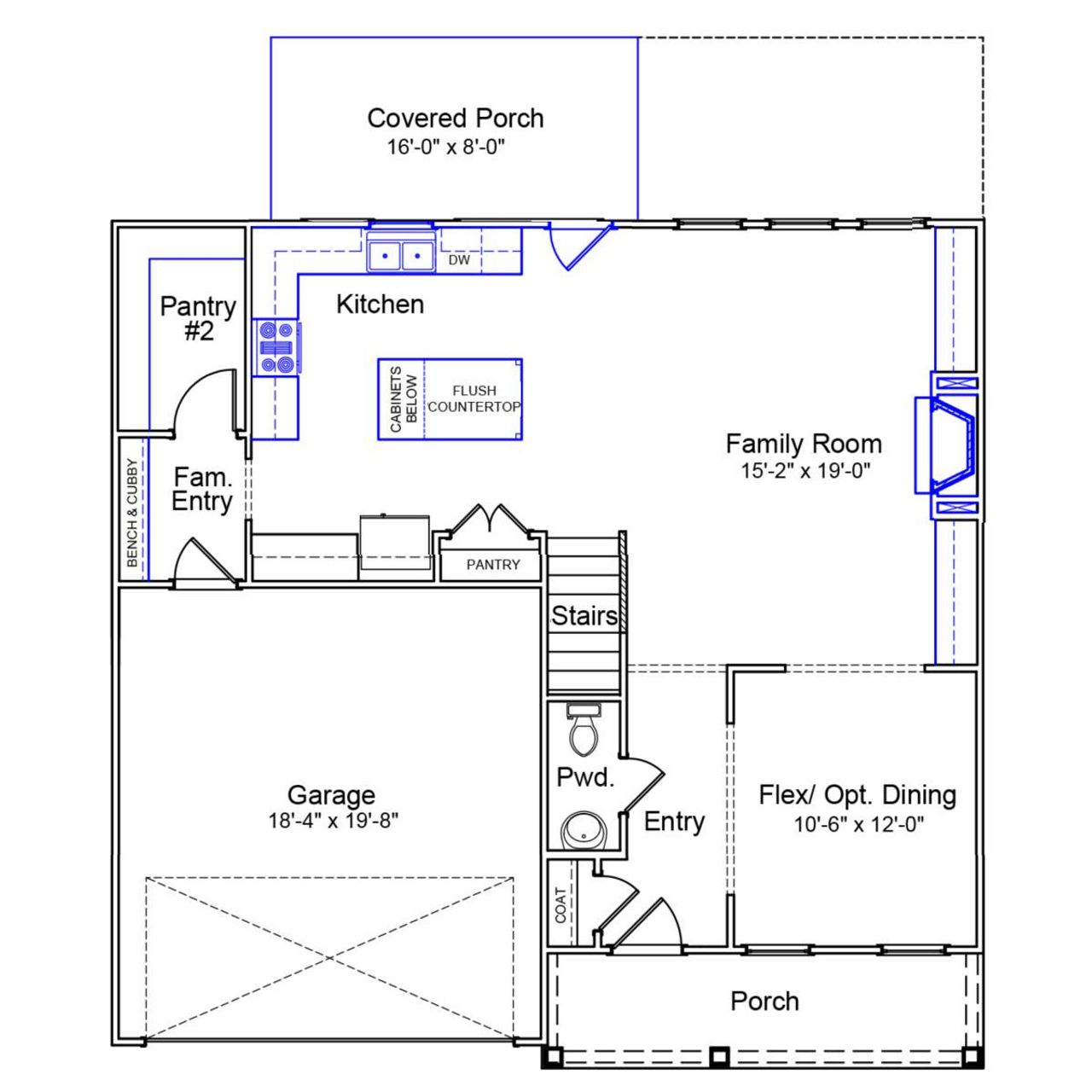
Welcome to the Cooper floor plan in the Foxhall Landing community in Easley, SC! This home offers comfort, style, and thoughtful design throughout. Inside, the kitchen, eat-in, and great room flow seamlessly together, creating the perfect entertaining space. The kitchen features gourmet stainless-steel appliances with gas range, quartz countertops, a large center island with extra storage, and dual pantries. The garage entry includes bench and cubbies. Upstairs, the primary suite feels like a retreat, complete with a tiled walk-in shower, dual sinks, and a spacious walk-in closet. Two additional bedrooms with their own walk-in closets share a full bath. The upstairs loft provides an additional flexible space for resting, working, or play. The covered porch is the perfect spot for morning coffee or unwinding at the end of the day. This community is close to shopping, dining, and downtown Easley. This home delivers it all!
May also be listed on the Mungo Homes website
Information last verified by Jome: Monday at 5:32 AM (March 23, 2026)
Home details
- Property status:
- Sold
- Size:
- 2,214 sqft
- Stories:
- 2
- Beds:
- 3
- Baths:
- 2
- Half baths:
- 1
- Garage spaces:
- 2
Construction details
- Builder Name:
- Mungo Homes
- Completion Date:
- March, 2026
Home features & finishes
- Garage/Parking:
- Garage
- Rooms:
- Primary Bedroom Upstairs

Community details
Foxhall Landing
by Mungo Homes, Easley, SC
- 1 home
- 8 plans
- 1,989 - 4,289 sqft
View Foxhall Landing details
More homes in Foxhall Landing
- Home at address 101 Fox Creek Ct, Easley, SC 29642

$657,000
Move-in ready- 5 bd
- 4.5 ba
- 4,289 sqft
101 Fox Creek Ct, Easley, SC 29642
Floor plans in Foxhall Landing
- View details for Cooper - Vanguard Collection

Cooper - Vanguard Collection
$356,000+- 3 bd
- 2.5 ba
- 2,174 sqft
- View details for Hunter - Vanguard Collection

Hunter - Vanguard Collection
$363,000+- 3 bd
- 2 ba
- 1,989 sqft
About the builder - Mungo Homes
Neighborhood
Home address
Schools in Pickens County School District
GreatSchools’ Summary Rating calculation is based on 4 of the school’s themed ratings, including test scores, student/academic progress, college readiness, and equity. This information should only be used as a reference. Jome is not affiliated with GreatSchools and does not endorse or guarantee this information. Please reach out to schools directly to verify all information and enrollment eligibility. Data provided by GreatSchools.org © 2025
Places of interest
Getting around
Air quality
Financials
Nearby communities in Easley
Homes in Easley by Mungo Homes
Recently added communities in this area
Other Builders in Easley, SC
Nearby sold homes
New homes in nearby cities
More New Homes in Easley, SC
- Jome
- New homes search
- South Carolina
- Pickens County
- Easley
- Foxhall Landing
- 116 Fox Creek Ct, Easley, SC 29642



































































