



Book your tour. Save an average of $18,473. We'll handle the rest.
We collect exclusive builder offers, book your tours, and support you from start to housewarming.
- Confirmed tours
- Get matched & compare top deals
- Expert help, no pressure
- No added fees
Estimated value based on Jome data, T&C apply

- 4 bd
- 3 ba
- 2,442 sqft
7038 New Horizons Ln, Boiling Springs, SC 29316
Why tour with Jome?
- No pressure toursTour at your own pace with no sales pressure
- Expert guidanceGet insights from our home buying experts
- Exclusive accessSee homes and deals not available elsewhere
Jome is featured in
- Single-Family
- Quick move-in
- $154.79/sqft
- 154 days on Jome
Builder deals available
- TOP-TIER DEAL
VA 30 Year Fixed
$7,060 est. value- Rate buydown from 3.49% (1 year) with 4.733% APR
FHA 30 Year Fixed
$740 est. value- Rate buydown from 3.49% (1 year) with 5.422% APR and 3.5% down payment
Deals may change and are not guaranteed. Some deals apply to specific homes or plans. Not a financing offer. Eligibility varies by lender. Please verify details.
Home description
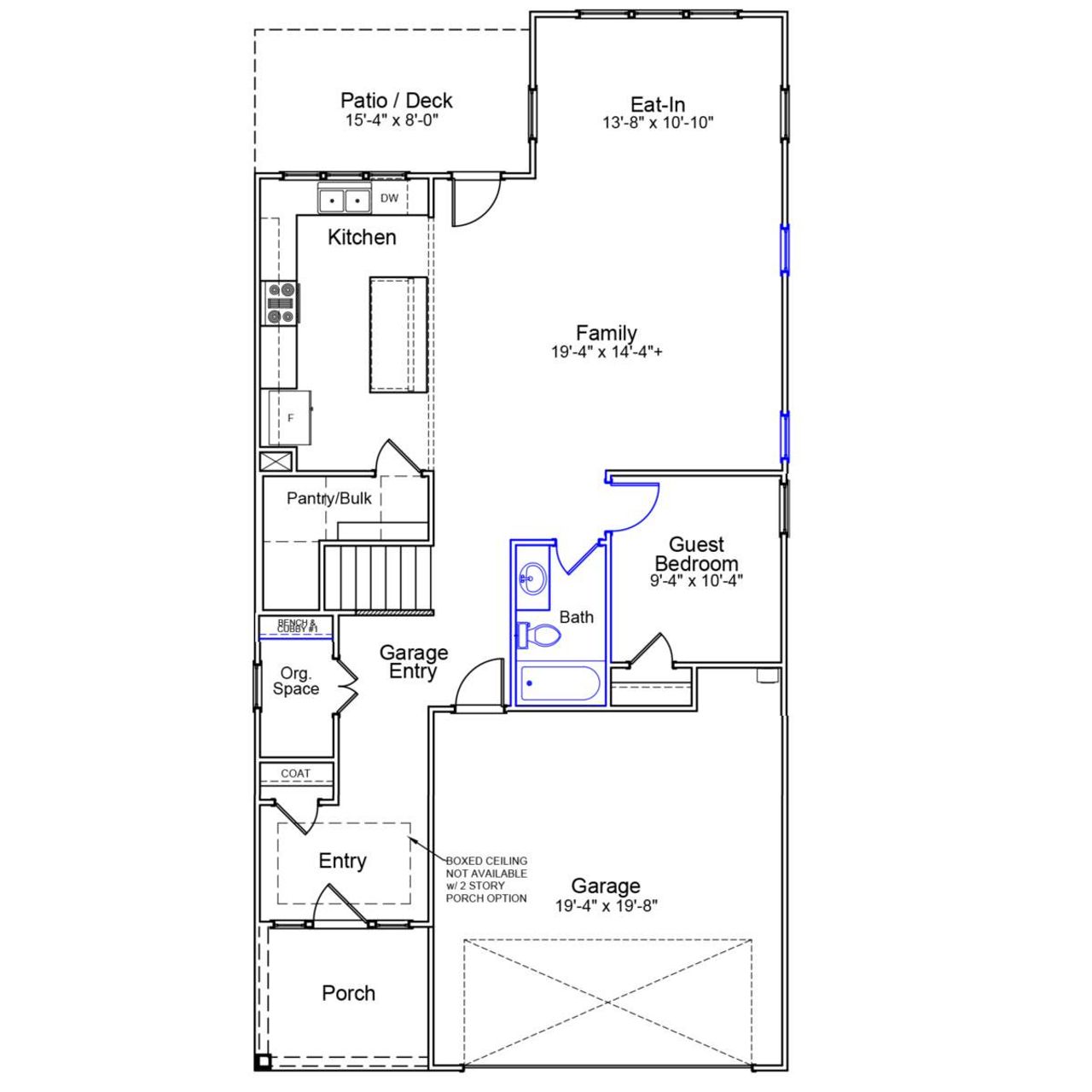
Welcome to the Dabney floor plan—beautifully designed for modern living with the perfect balance of comfort, style, and functionality. This spacious home offers four well-appointed bedrooms, including a convenient first-floor guest room. The inviting open-concept main level seamlessly connects the kitchen, eat-in area, and great room, creating a warm and welcoming space for both everyday living and entertaining. Natural light fills the home, enhancing its airy feel and highlighting the effortless flow between indoor and outdoor spaces. Enjoy quiet mornings or relaxing evenings on the charming covered porch or the second-story front balcony. Upstairs, you’ll find generously sized secondary bedrooms and a versatile loft that can serve as a second living area, playroom, media space, or anything else your lifestyle requires. An expansive storage area ensures you have room for everything without compromising style or convenience. Smart, flexible, and thoughtfully crafted, the Dabney plan delivers a unique blend of elegance and practicality—perfect for the way you live today.
May also be listed on the Mungo Homes website
Information last verified by Jome: Today at 5:47 AM (April 20, 2026)
Book your tour. Save an average of $18,473. We'll handle the rest.
We collect exclusive builder offers, book your tours, and support you from start to housewarming.
- Confirmed tours
- Get matched & compare top deals
- Expert help, no pressure
- No added fees
Estimated value based on Jome data, T&C apply
Home details
- Property status:
- Move-in ready
- Size:
- 2,442 sqft
- Stories:
- 2
- Beds:
- 4
- Baths:
- 3
- Garage spaces:
- 2
Construction details
- Builder Name:
- Mungo Homes
- Completion Date:
- April, 2026
Home features & finishes
- Garage/Parking:
- Garage
- Rooms:
- Primary Bedroom Upstairs

Get a consultation with our New Homes Expert
- See how your home builds wealth
- Plan your home-buying roadmap
- Discover hidden gems

Community details
Landmark Commons
by Mungo Homes, Boiling Springs, SC
- 7 homes
- 8 plans
- 1,383 - 2,535 sqft
View Landmark Commons details
More homes in Landmark Commons
- Home at address 7051 New Horizons Ln, Boiling Springs, SC 29316

Lacey
Savings$376,000
- 4 bd
- 3 ba
- 2,535 sqft
7051 New Horizons Ln, Boiling Springs, SC 29316
- Home at address 7043 New Horizons Ln, Boiling Springs, SC 29316

Lacey
Savings$377,000
- 4 bd
- 3.5 ba
- 2,465 sqft
7043 New Horizons Ln, Boiling Springs, SC 29316
Floor plans in Landmark Commons
- View details for Lacey - Vanguard Collection

Lacey - Vanguard Collection
$325,000+- 4 bd
- 3.5 ba
- 2,465 sqft
About the builder - Mungo Homes
Neighborhood
Home address
- City:
- Boiling Springs
- County:
- Spartanburg
- Zip Code:
- 29316
Schools in Spartanburg School District 2
GreatSchools’ Summary Rating calculation is based on 4 of the school’s themed ratings, including test scores, student/academic progress, college readiness, and equity. This information should only be used as a reference. Jome is not affiliated with GreatSchools and does not endorse or guarantee this information. Please reach out to schools directly to verify all information and enrollment eligibility. Data provided by GreatSchools.org © 2025
Places of interest
Getting around
Air quality
Noise level
A Soundscore™ rating is a number between 50 (very loud) and 100 (very quiet) that tells you how loud a location is due to environmental noise.

Considering this home?
Our expert will guide your tour, in-person or virtual
Need more information?
Text or call (888) 545-5198
Financials
Estimated monthly payment
Let us help you find your dream home
How many bedrooms are you looking for?
Similar homes nearby
Recently added communities in this area
Nearby communities in Boiling Springs
New homes in nearby cities
More New Homes in Boiling Springs, SC
- Jome
- New homes search
- South Carolina
- Spartanburg County
- Boiling Springs
- Landmark Commons
- 7038 New Horizons Ln, Boiling Springs, SC 29316




























