








Book your tour. Save an average of $18,473. We'll handle the rest.
We collect exclusive builder offers, book your tours, and support you from start to housewarming.
- Confirmed tours
- Get matched & compare top deals
- Expert help, no pressure
- No added fees
Estimated value based on Jome data, T&C apply





























Why tour with Jome?
- No pressure toursTour at your own pace with no sales pressure
- Expert guidanceGet insights from our home buying experts
- Exclusive accessSee homes and deals not available elsewhere
Jome is featured in
- Single-Family
- Quick move-in
- $149.24/sqft
- 161 days on Jome
Home description
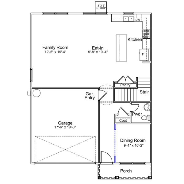
Welcome to The Lancaster, a new floorplan in our popular Garden Grove community. This gorgeous two-story home boasts four bedrooms and two-and-one-half baths. Upon entry, you are greeted by a flex space that can be used as a formal dining room, game room, or office—the choice is yours! A half-bath down the hall from the flex room leads to the expansive living area. The large kitchen has stainless steel appliances, white cabinets, and quartz countertops and overlooks the dining and living room, which provides ample space for relaxing or entertaining. Upstairs, the primary bedroom is a true retreat with a tray ceiling, spacious bath, and huge walk-in closet. The upstairs also holds three generous bedrooms and another full bath with a double vanity. This home sits on an oversized corner lot in this coveted new community! With a large pool and two pickleball courts coming soon, both relaxation and play are just around the corner. Only eight minutes to downtown Conway and twenty-five minutes to the Grand Strand beaches, Garden Grove has it all.
May also be listed on the Mungo Homes website
Information last verified by Jome: Today at 5:33 AM (March 19, 2026)
Book your tour. Save an average of $18,473. We'll handle the rest.
We collect exclusive builder offers, book your tours, and support you from start to housewarming.
- Confirmed tours
- Get matched & compare top deals
- Expert help, no pressure
- No added fees
Estimated value based on Jome data, T&C apply
Home details
- Property status:
- Move-in ready
- Size:
- 2,177 sqft
- Stories:
- 2
- Beds:
- 4
- Baths:
- 2
- Half baths:
- 1
- Garage spaces:
- 2
Construction details
- Builder Name:
- Mungo Homes
- Completion Date:
- January, 2026
Home features & finishes
- Garage/Parking:
- Garage
- Rooms:
- Primary Bedroom Upstairs

Get a consultation with our New Homes Expert
- See how your home builds wealth
- Plan your home-buying roadmap
- Discover hidden gems

Community details
Garden Grove
by Mungo Homes, Conway, SC
- 13 homes
- 9 plans
- 1,518 - 3,000 sqft
View Garden Grove details
More homes in Garden Grove
- Home at address 311 Garden Grove St, Conway, SC 29526

Gwinnett
$339,900
- 4 bd
- 2 ba
- 1,851 sqft
311 Garden Grove St, Conway, SC 29526
- Home at address 464 Atamasco Ct, Conway, SC 29526

Gwinnett II
$346,900
- 4 bd
- 2 ba
- 1,889 sqft
464 Atamasco Ct, Conway, SC 29526
- Home at address 461 Atamasco Ct, Conway, SC 29526

Lancaster
$347,900
- 5 bd
- 3 ba
- 2,177 sqft
461 Atamasco Ct, Conway, SC 29526
- Home at address 452 Atamasco Ct, Conway, SC 29526

Lancaster
$349,900
- 5 bd
- 3 ba
- 2,177 sqft
452 Atamasco Ct, Conway, SC 29526
- Home at address 456 Atamasco Ct, Conway, SC 29526

Telfair
$359,900
- 5 bd
- 3 ba
- 2,844 sqft
456 Atamasco Ct, Conway, SC 29526
- Home at address 448 Atamasco Ct, Conway, SC 29526

Telfair
$369,900
- 5 bd
- 3 ba
- 2,834 sqft
448 Atamasco Ct, Conway, SC 29526
Floor plans in Garden Grove
- View details for Lancaster - Genesis Value Collection

Lancaster - Genesis Value Collection
$314,900+- 4 bd
- 2.5 ba
- 2,152 sqft
- View details for Pickens - Genesis Value Collection

Pickens - Genesis Value Collection
$319,900+- 4 bd
- 2.5 ba
- 2,431 sqft
About the builder - Mungo Homes
Neighborhood
Home address
Schools in Horry County School District
GreatSchools’ Summary Rating calculation is based on 4 of the school’s themed ratings, including test scores, student/academic progress, college readiness, and equity. This information should only be used as a reference. Jome is not affiliated with GreatSchools and does not endorse or guarantee this information. Please reach out to schools directly to verify all information and enrollment eligibility. Data provided by GreatSchools.org © 2025
Places of interest
Getting around
Air quality

Considering this home?
Our expert will guide your tour, in-person or virtual
Need more information?
Text or call (888) 545-5198
Financials
Estimated monthly payment
Let us help you find your dream home
How many bedrooms are you looking for?
Similar homes nearby
Recently added communities in this area
Nearby communities in Conway
New homes in nearby cities
More New Homes in Conway, SC
- Jome
- New homes search
- South Carolina
- Horry County
- Conway
- Garden Grove
- 312 Garden Grove St, Conway, SC 29526






























