




- 3 bd
- 2.5 ba
- 2,325 sqft
304 Vandiver Rd, Anderson, SC 29621
- Single-Family
- $184.52/sqft
- 121 days on Jome
New Homes for Sale Near 304 Vandiver Rd, Anderson, SC 29621
About this Home
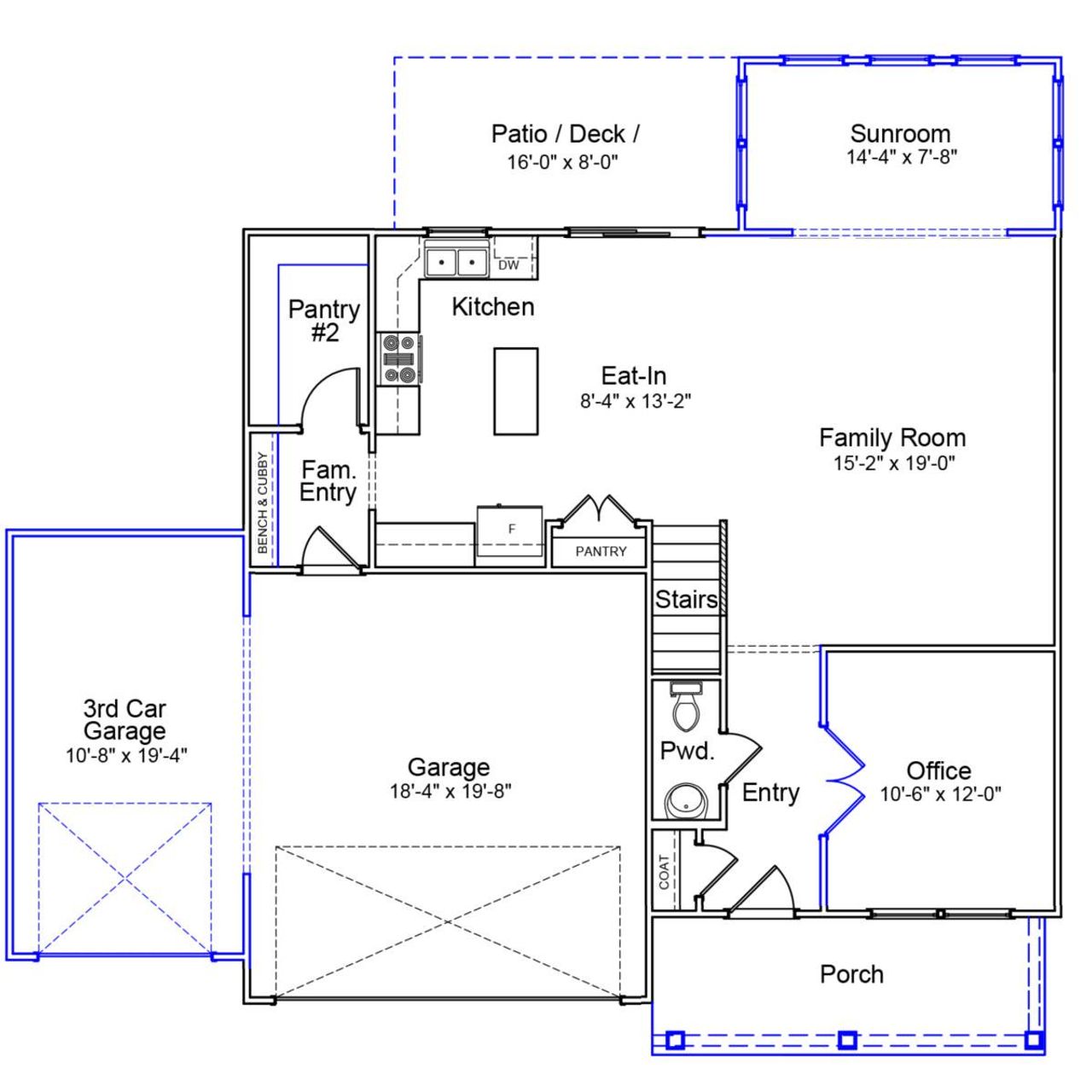
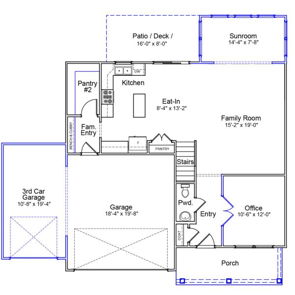
The two-story Cooper plan features three bedrooms and two-and-one-half bathrooms. Enter through the front door to be greeted by an office space which opens to an open great room, eat-in, kitchen, and sunroom. The great room offers a fireplace, and access to the covered porch. The flex space can be utilized as a dining room or office. This home has a spacious three car garage. A powder room completes the first floor. A loft space, the primary suite, and two secondary bedrooms can all be found on the second floor. The primary suite has an boxed ceiling and large walk in shower to meet your needs. The two secondary bedrooms, each with their own walk-in closets, share a full bathroom with dual sinks.
May also be listed on the Mungo Homes website
Information last verified by Jome: Wednesday at 5:38 AM (November 12, 2025)
Home details
- Property status:
- Sold
- Size:
- 2,325 sqft
- Stories:
- 2
- Beds:
- 3
- Baths:
- 2
- Half baths:
- 1
- Garage spaces:
- 3
Construction details
- Builder Name:
- Mungo Homes
- Completion Date:
- January, 2026
Home features & finishes
- Garage/Parking:
- Garage
- Rooms:
- Primary Bedroom Upstairs

Community details
Windsor Forest
by Mungo Homes, Anderson, SC
- 5 homes
- 2,020 - 3,923 sqft
View Windsor Forest details
More homes in Windsor Forest
About the builder - Mungo Homes
Neighborhood
Home address
Schools in Anderson School District 5
GreatSchools’ Summary Rating calculation is based on 4 of the school’s themed ratings, including test scores, student/academic progress, college readiness, and equity. This information should only be used as a reference. Jome is not affiliated with GreatSchools and does not endorse or guarantee this information. Please reach out to schools directly to verify all information and enrollment eligibility. Data provided by GreatSchools.org © 2025
Places of interest
Getting around
Air quality
Noise level
A Soundscore™ rating is a number between 50 (very loud) and 100 (very quiet) that tells you how loud a location is due to environmental noise.
Natural hazards risk
Climate hazards can impact homes and communities, with risks varying by location. These scores reflect the potential impact of natural disasters and climate-related risks on Anderson County
Provided by FEMA
Financials
Nearby communities in Anderson
Homes in Anderson by Mungo Homes
Recently added communities in this area
Other Builders in Anderson, SC
Nearby sold homes
New homes in nearby cities
More New Homes in Anderson, SC
- Jome
- New homes search
- South Carolina
- Anderson County
- Anderson
- Windsor Forest
- 304 Vandiver Rd, Anderson, SC 29621

































































