




- 5 bd
- 4.5 ba
- 4,174 sqft
801 Weathered Oak Wy, Anderson, SC 29621
- Single-Family
- $127.93/sqft
- 126 days on Jome
New Homes for Sale Near 801 Weathered Oak Wy, Anderson, SC 29621
About this Home
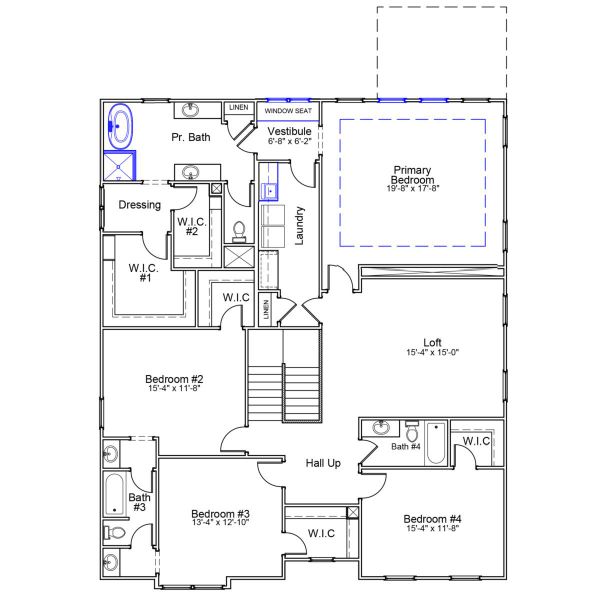
This beautiful Yates II floor plan boasts five bedrooms, and a large loft! Upon entering, you are greeted by the entry foyer, with its high ceilings and arched doorway. The office space connects to a formal dining room with a butler's pantry. As you continue, you will find the gourmet kitchen, complete with a beautiful, large island and plenty of counter space. The sunroom expands the space off of the already large great room and gives heaps of natural light. The uest suite is located on the first floor and features a spacious walk-in closet and a full bath. The second story has three secondary bedrooms, all with walk-in closets and shared bathroom. The primary bedroom is tremendous! It holds a large sitting area, two walk-in closets, and a separate shower and tub, and a dressing area. Don't wait until this corner lot homesite is gone!
May also be listed on the Mungo Homes website
Information last verified by Jome: Monday at 5:39 AM (December 8, 2025)
Home details
- Property status:
- Sold
- Size:
- 4,174 sqft
- Stories:
- 2
- Beds:
- 5
- Baths:
- 4
- Half baths:
- 1
- Garage spaces:
- 3
Construction details
- Builder Name:
- Mungo Homes
- Completion Date:
- December, 2025
Home features & finishes
- Garage/Parking:
- Garage
- Rooms:
- Primary Bedroom Upstairs

Community details
Windsor Forest
by Mungo Homes, Anderson, SC
- 5 homes
- 2,020 - 3,923 sqft
View Windsor Forest details
More homes in Windsor Forest
About the builder - Mungo Homes
Neighborhood
Home address
Schools in Anderson School District 5
GreatSchools’ Summary Rating calculation is based on 4 of the school’s themed ratings, including test scores, student/academic progress, college readiness, and equity. This information should only be used as a reference. Jome is not affiliated with GreatSchools and does not endorse or guarantee this information. Please reach out to schools directly to verify all information and enrollment eligibility. Data provided by GreatSchools.org © 2025
Places of interest
Getting around
Air quality
Noise level
A Soundscore™ rating is a number between 50 (very loud) and 100 (very quiet) that tells you how loud a location is due to environmental noise.
Natural hazards risk
Climate hazards can impact homes and communities, with risks varying by location. These scores reflect the potential impact of natural disasters and climate-related risks on Anderson County
Provided by FEMA
Financials
Nearby communities in Anderson
Homes in Anderson by Mungo Homes
Recently added communities in this area
Other Builders in Anderson, SC
Nearby sold homes
New homes in nearby cities
More New Homes in Anderson, SC
- Jome
- New homes search
- South Carolina
- Anderson County
- Anderson
- Windsor Forest
- 801 Weathered Oak Wy, Anderson, SC 29621






























































