














Book your tour. Save an average of $18,473. We'll handle the rest.
- Confirmed tours
- Get matched & compare top deals
- Expert help, no pressure
- No added fees
Estimated value based on Jome data, T&C apply























- 4 bd
- 2.5 ba
- 2,073 sqft
624 Marbled Teal Ln, Unit (274), Hopkins, SC 29061
Why tour with Jome?
- No pressure toursTour at your own pace with no sales pressure
- Expert guidanceGet insights from our home buying experts
- Exclusive accessSee homes and deals not available elsewhere
Jome is featured in
- Single-Family
- Quick move-in
- $130.24/sqft
- 113 days on Jome
Home description
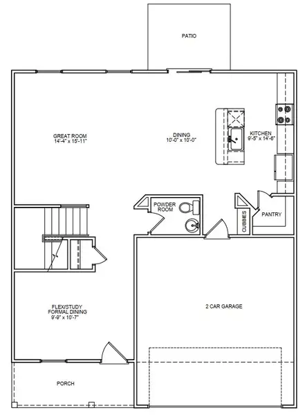
Like its namesake, the Willow flows gracefully from one space to the next. This thoughtfully designed 2-story home offers 2,073 square feet of comfort and flexibility for modern living.
From the welcoming front porch, step inside to a versatile flex room—perfect for a formal dining room, home office, playroom, or library. Just beyond, the open-concept layout expands across the back of the home, connecting the great room, dining area, and kitchen. The kitchen’s central island keeps you at the heart of it all, while the patio just outside extends your living space outdoors.
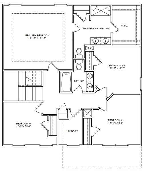
Upstairs, the spacious primary suite spans the full width of the home, complete with a walk-in closet and private bath. Three additional bedrooms, a full hall bath with double sinks, and a convenient laundry room provide plenty of space for family, guests, or hobbies.
The Willow balances openness with thoughtful design, creating a home that adapts to your lifestyle—and always feels welcoming.
May also be listed on the McGuinn Homes website
Information last verified by Jome: Today at 6:06 AM (December 5, 2025)
Home highlights
Book your tour. Save an average of $18,473. We'll handle the rest.
We collect exclusive builder offers, book your tours, and support you from start to housewarming.
- Confirmed tours
- Get matched & compare top deals
- Expert help, no pressure
- No added fees
Estimated value based on Jome data, T&C apply
Home details
- Property status:
- Move-in ready
- Size:
- 2,073 sqft
- Stories:
- 2
- Beds:
- 4
- Baths:
- 2
- Half baths:
- 1
- Garage spaces:
- 2
Construction details
- Builder Name:
- McGuinn Homes
Home features & finishes
- Garage/Parking:
- Garage

Community details
Canary Woods
by McGuinn Homes, Hopkins, SC
- 5 homes
- 13 plans
- 1,292 - 2,394 sqft
View Canary Woods details
More homes in Canary Woods
Floor plans in Canary Woods
About the builder - McGuinn Homes
Neighborhood
Home address
Schools in Richland School District 1
GreatSchools’ Summary Rating calculation is based on 4 of the school’s themed ratings, including test scores, student/academic progress, college readiness, and equity. This information should only be used as a reference. Jome is not affiliated with GreatSchools and does not endorse or guarantee this information. Please reach out to schools directly to verify all information and enrollment eligibility. Data provided by GreatSchools.org © 2025
Getting around
Air quality
Noise level
A Soundscore™ rating is a number between 50 (very loud) and 100 (very quiet) that tells you how loud a location is due to environmental noise.
Natural hazards risk
Climate hazards can impact homes and communities, with risks varying by location. These scores reflect the potential impact of natural disasters and climate-related risks on Richland County
Provided by FEMA

Considering this home?
Our expert will guide your tour, in-person or virtual
Need more information?
Text or call (888) 486-2818
Financials
Estimated monthly payment
Similar homes nearby
Recently added communities in this area
Nearby communities in Hopkins
New homes in nearby cities
More New Homes in Hopkins, SC
- Home
- New homes
- South Carolina
- Richland County
- Hopkins
- Canary Woods
- 624 Marbled Teal Ln, Unit (274), Hopkins, SC 29061



































