













Book your tour. Save an average of $18,473. We'll handle the rest.
We collect exclusive builder offers, book your tours, and support you from start to housewarming.
- Confirmed tours
- Get matched & compare top deals
- Expert help, no pressure
- No added fees
Estimated value based on Jome data, T&C apply
Why tour with Jome?
- No pressure toursTour at your own pace with no sales pressure
- Expert guidanceGet insights from our home buying experts
- Exclusive accessSee homes and deals not available elsewhere
Jome is featured in
- Single-Family
- Ready by April 2026
- $152.4/sqft
- 2 days on Jome
Home description
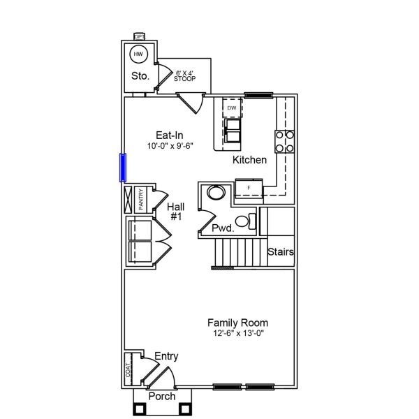
The Laurens! Step inside to an open-concept living and dining area filled with natural light, perfect for entertaining or relaxing. The kitchen features modern appliances, ample cabinet space, and a breakfast bar ideal for casual meals. Upstairs, you’ll find a generous primary suite with a walk-in closet and a private en-suite bath, along with two additional bedrooms and a full hall bath.
May also be listed on the Mungo Homes website
Information last verified by Jome: Yesterday at 5:52 AM (March 14, 2026)
Book your tour. Save an average of $18,473. We'll handle the rest.
We collect exclusive builder offers, book your tours, and support you from start to housewarming.
- Confirmed tours
- Get matched & compare top deals
- Expert help, no pressure
- No added fees
Estimated value based on Jome data, T&C apply
Home details
- Property status:
- Under construction
- Size:
- 1,288 sqft
- Stories:
- 2
- Beds:
- 3
- Baths:
- 2
- Half baths:
- 1
Construction details
- Builder Name:
- Mungo Homes
- Completion Date:
- April, 2026
Home features & finishes
- Rooms:
- Primary Bedroom Upstairs

Get a consultation with our New Homes Expert
- See how your home builds wealth
- Plan your home-buying roadmap
- Discover hidden gems

Community details
Padgett Commons
by Mungo Homes, Hopkins, SC
- 8 homes
- 1 plan
- 1,250 - 1,288 sqft
View Padgett Commons details
More homes in Padgett Commons
- Home at address 300 Channing Ct, Hopkins, SC 29061

Laurens
$185,000
- 3 bd
- 2.5 ba
- 1,250 sqft
300 Channing Ct, Hopkins, SC 29061
- Home at address 316 Channing Ct, Hopkins, SC 29061

Laurens
$185,000
- 3 bd
- 2.5 ba
- 1,250 sqft
316 Channing Ct, Hopkins, SC 29061
- Home at address 362 Channing Ct, Hopkins, SC 29061

Laurens
$191,993
- 3 bd
- 2.5 ba
- 1,250 sqft
362 Channing Ct, Hopkins, SC 29061
- Home at address 363 Channing Ct, Hopkins, SC 29061

Laurens
$192,650
- 3 bd
- 2.5 ba
- 1,250 sqft
363 Channing Ct, Hopkins, SC 29061
- Home at address 349 Channing Ct, Hopkins, SC 29061

Laurens
$192,650
- 3 bd
- 2.5 ba
- 1,250 sqft
349 Channing Ct, Hopkins, SC 29061
- Home at address 353 Channing Ct, Hopkins, SC 29061

Laurens
$196,150
- 3 bd
- 2.5 ba
- 1,288 sqft
353 Channing Ct, Hopkins, SC 29061
Floor plans in Padgett Commons
- View details for Laurens - Genesis Value Collection

Laurens - Genesis Value Collection
$185,000+- 3 bd
- 2.5 ba
- 1,250 sqft
About the builder - Mungo Homes
Neighborhood
Home address
Schools in Richland School District 1
GreatSchools’ Summary Rating calculation is based on 4 of the school’s themed ratings, including test scores, student/academic progress, college readiness, and equity. This information should only be used as a reference. Jome is not affiliated with GreatSchools and does not endorse or guarantee this information. Please reach out to schools directly to verify all information and enrollment eligibility. Data provided by GreatSchools.org © 2025
Places of interest
Getting around
Air quality
Noise level
A Soundscore™ rating is a number between 50 (very loud) and 100 (very quiet) that tells you how loud a location is due to environmental noise.

Considering this home?
Our expert will guide your tour, in-person or virtual
Need more information?
Text or call (888) 545-5198
Financials
Estimated monthly payment
Let us help you find your dream home
How many bedrooms are you looking for?
Similar homes nearby
Recently added communities in this area
Nearby communities in Hopkins
New homes in nearby cities
More New Homes in Hopkins, SC
- Jome
- New homes search
- South Carolina
- Richland County
- Hopkins
- Padgett Commons
- 366 Channing Ct, Hopkins, SC 29061


























