














Book your tour. Save an average of $18,473. We'll handle the rest.
We collect exclusive builder offers, book your tours, and support you from start to housewarming.
- Confirmed tours
- Get matched & compare top deals
- Expert help, no pressure
- No added fees
Estimated value based on Jome data, T&C apply
























Why tour with Jome?
- No pressure toursTour at your own pace with no sales pressure
- Expert guidanceGet insights from our home buying experts
- Exclusive accessSee homes and deals not available elsewhere
Jome is featured in
- Single-Family
- Quick move-in
- $210.73/sqft
- 232 days on Jome
Home description
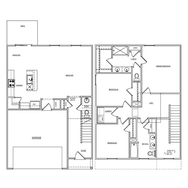
From the moment you arrive, The Beechwood draws you in with timeless curb appeal and a layout designed to make life easier—and more enjoyable. With 3 bedrooms, 2.5 bathrooms, and 1,649 square feet, this two-story home offers just the right balance of shared spaces and quiet corners.
Step through the front door into a bright, open main level where the kitchen sits at the center of it all—featuring a large center island, walk-in pantry, and clear sightlines to the dining area and great room. Whether you're hosting a casual dinner or a full-on holiday gathering, this space makes it feel effortless.
Slide open the back door to enjoy peaceful evenings on your rear patio, ideal for grilling, unwinding, or watching the sunset with your favorite people.
Upstairs, the flexible loft makes a perfect media space, home office, or playroom—whatever fits your lifestyle best. All three bedrooms are upstairs, including a spacious primary suite with a tray ceiling, oversized walk-in closet, and a private bath featuring dual vanities and a tiled walk-in shower.
From morning coffee in the kitchen to quiet nights in the loft, The Beechwood is built for real life—comfortable, connected, and ready to grow with you.
May also be listed on the McGuinn Homes website
Information last verified by Jome: Today at 6:10 AM (March 7, 2026)
Book your tour. Save an average of $18,473. We'll handle the rest.
We collect exclusive builder offers, book your tours, and support you from start to housewarming.
- Confirmed tours
- Get matched & compare top deals
- Expert help, no pressure
- No added fees
Estimated value based on Jome data, T&C apply
Home details
- Property status:
- Move-in ready
- Size:
- 1,649 sqft
- Stories:
- 2
- Beds:
- 3
- Baths:
- 2
- Half baths:
- 1
- Garage spaces:
- 2
Construction details
- Builder Name:
- McGuinn Homes
Home features & finishes
- Garage/Parking:
- Garage

Get a consultation with our New Homes Expert
- See how your home builds wealth
- Plan your home-buying roadmap
- Discover hidden gems

Community details
Blackwood Street
by McGuinn Homes, Greenville, SC
- 4 homes
- 5 plans
- 1,158 - 1,649 sqft
View Blackwood Street details
More homes in Blackwood Street
Floor plans in Blackwood Street
About the builder - McGuinn Homes
Neighborhood
Home address
- City:
- Greenville
- County:
- Greenville
- Zip Code:
- 29611
Schools in Greenville County School District
- Grades PK-03Privateupstate montessori academy0.9 mi109 n leach stna
- Grades PK-06Privatefootprints christian academy1.1 mi28 bob stna
GreatSchools’ Summary Rating calculation is based on 4 of the school’s themed ratings, including test scores, student/academic progress, college readiness, and equity. This information should only be used as a reference. Jome is not affiliated with GreatSchools and does not endorse or guarantee this information. Please reach out to schools directly to verify all information and enrollment eligibility. Data provided by GreatSchools.org © 2025
Places of interest
Getting around
Air quality
Noise level
A Soundscore™ rating is a number between 50 (very loud) and 100 (very quiet) that tells you how loud a location is due to environmental noise.

Considering this home?
Our expert will guide your tour, in-person or virtual
Need more information?
Text or call (888) 488-9243
Financials
Estimated monthly payment
Let us help you find your dream home
How many bedrooms are you looking for?
Similar homes nearby
Recently added communities in this area
Nearby communities in Greenville
New homes in nearby cities
More New Homes in Greenville, SC
- Jome
- New homes search
- South Carolina
- Greenville County
- Greenville
- Blackwood Street
- Greenville, SC 29611



































