














Book your tour. Save an average of $18,473. We'll handle the rest.
- Confirmed tours
- Get matched & compare top deals
- Expert help, no pressure
- No added fees
Estimated value based on Jome data, T&C apply



















Why tour with Jome?
- No pressure toursTour at your own pace with no sales pressure
- Expert guidanceGet insights from our home buying experts
- Exclusive accessSee homes and deals not available elsewhere
Jome is featured in
- Single-Family
- Quick move-in
- $284.97/sqft
- 141 days on Jome
Home description
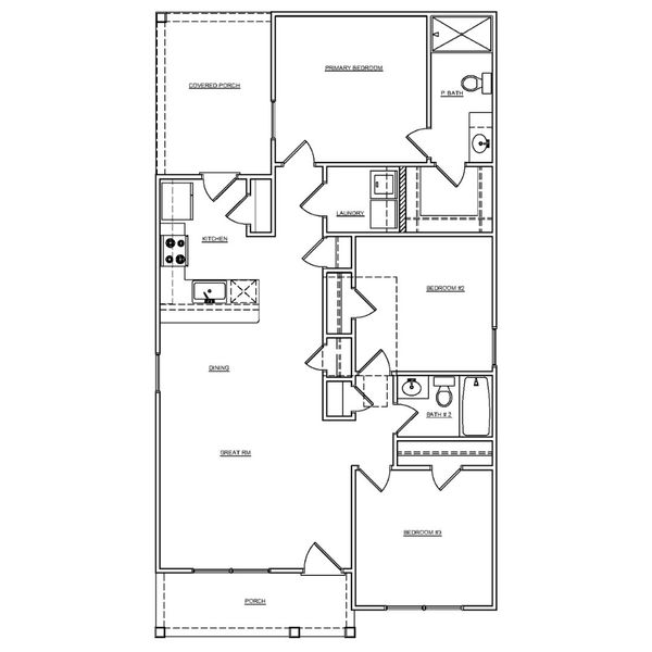
The Dogwood by McGuinn Homes is designed with everyday comfort and lifestyle in mind, offering 3 bedrooms and 2 baths in a smart, functional layout. Covered porches in both the front and rear create a warm welcome and provide relaxing outdoor spaces to enjoy morning coffee, evening breezes, or casual conversations with neighbors.
Inside, the open-concept design connects the inviting great room seamlessly to the gourmet kitchen—making it easy to entertain, cook, or simply enjoy time with loved ones. The kitchen is equipped with granite countertops, a breakfast bar, and a spacious pantry, blending style with the convenience of ample storage. Additional closets throughout the main living area help keep everything organized and within reach.
At the back of the home, the private primary suite serves as a quiet retreat from the rest of the house. With its peaceful location and thoughtful design, it's the perfect place to recharge at the end of the day. Whether you're gathering with family or enjoying quiet moments, the Dogwood offers a comfortable, flexible space that fits a wide range of lifestyles.
May also be listed on the McGuinn Homes website
Information last verified by Jome: Today at 6:10 AM (December 6, 2025)
Home highlights
Book your tour. Save an average of $18,473. We'll handle the rest.
We collect exclusive builder offers, book your tours, and support you from start to housewarming.
- Confirmed tours
- Get matched & compare top deals
- Expert help, no pressure
- No added fees
Estimated value based on Jome data, T&C apply
Home details
- Property status:
- Move-in ready
- Size:
- 1,158 sqft
- Stories:
- 1
- Beds:
- 3
- Baths:
- 2
Construction details
- Builder Name:
- McGuinn Homes
Home features & finishes
- Rooms:
- Primary Bedroom On MainPrimary Bedroom Downstairs

Community details
Blackwood Street
by McGuinn Homes, Greenville, SC
- 4 homes
- 4 plans
- 1,158 - 1,649 sqft
View Blackwood Street details
More homes in Blackwood Street
Floor plans in Blackwood Street
About the builder - McGuinn Homes
Neighborhood
Home address
- City:
- Greenville
- County:
- Greenville
- Zip Code:
- 29611
Schools in Greenville County School District
- Grades PK-03Privateupstate montessori academy0.9 mi109 n leach stna
- Grades PK-06Privatefootprints christian academy1.1 mi28 bob stna
GreatSchools’ Summary Rating calculation is based on 4 of the school’s themed ratings, including test scores, student/academic progress, college readiness, and equity. This information should only be used as a reference. Jome is not affiliated with GreatSchools and does not endorse or guarantee this information. Please reach out to schools directly to verify all information and enrollment eligibility. Data provided by GreatSchools.org © 2025
Places of interest
Getting around
Air quality
Noise level
A Soundscore™ rating is a number between 50 (very loud) and 100 (very quiet) that tells you how loud a location is due to environmental noise.
Natural hazards risk
Climate hazards can impact homes and communities, with risks varying by location. These scores reflect the potential impact of natural disasters and climate-related risks on Greenville County
Provided by FEMA

Considering this home?
Our expert will guide your tour, in-person or virtual
Need more information?
Text or call (888) 486-2818
Financials
Estimated monthly payment
Similar homes nearby
Recently added communities in this area
Nearby communities in Greenville
New homes in nearby cities
More New Homes in Greenville, SC
- Home
- New homes
- South Carolina
- Greenville County
- Greenville
- Blackwood Street
- Greenville, SC 29611


































