





- 3 bd
- 2.5 ba
- 1,898 sqft
1365 Kildary Springs Rd, Inman, SC 29349
- Single-Family
- $162.19/sqft
- 282 days on Jome
New Homes for Sale Near 1365 Kildary Springs Rd, Inman, SC 29349
About this Home
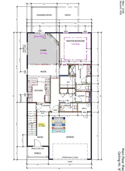
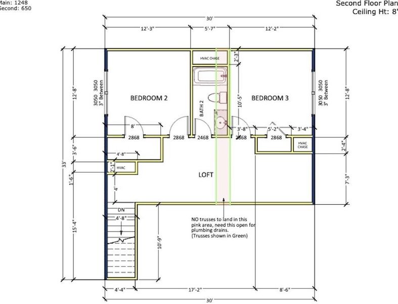
Welcome to the Iris floor plan which features 3 bedrooms and 2 and half bathrooms plus loft. Standard features include 10 ft ceilings in living area, granite countertops throughout, luxury vinyl plank flooring, a corner fireplace, 12x12 covered back patio, and much more! Located in the New Prospect Haven in Inman just minutes from Lake Bowen. Call today for more info!
May also be listed on the Enchanted Homes website
Information last verified by Jome: Thursday at 6:07 AM (January 22, 2026)
Home details
- Property status:
- Sold
- Size:
- 1,898 sqft
- Stories:
- 2
- Beds:
- 3
- Baths:
- 2
- Half baths:
- 1
- Garage spaces:
- 3
Construction details
- Builder Name:
- Enchanted Homes
Home features & finishes
- Garage/Parking:
- Garage

Community details
New Prospect Haven
by Enchanted Homes, Inman, SC
- 31 plans
- 1,247 - 2,411 sqft
View New Prospect Haven details
Floor plans in New Prospect Haven
About the builder - Enchanted Homes
Neighborhood
Home address
- City:
- Inman
- County:
- Spartanburg
- Zip Code:
- 29349
Schools in Spartanburg School District 1
GreatSchools’ Summary Rating calculation is based on 4 of the school’s themed ratings, including test scores, student/academic progress, college readiness, and equity. This information should only be used as a reference. Jome is not affiliated with GreatSchools and does not endorse or guarantee this information. Please reach out to schools directly to verify all information and enrollment eligibility. Data provided by GreatSchools.org © 2025
Places of interest
Getting around
Air quality
Noise level
A Soundscore™ rating is a number between 50 (very loud) and 100 (very quiet) that tells you how loud a location is due to environmental noise.
Financials
Nearby communities in Inman
Homes in Inman by Enchanted Homes
Recently added communities in this area
Other Builders in Inman, SC
Nearby sold homes
New homes in nearby cities
More New Homes in Inman, SC
- Jome
- New homes search
- South Carolina
- Spartanburg County
- Inman
- New Prospect Haven
- 1365 Kildary Springs Rd, Inman, SC 29349




































































