




































- 3 bd
- 2.5 ba
- 1,779 sqft
7026 New Horizons Ln, Boiling Springs, SC 29316
- Single-Family
- $165.26/sqft
- 203 days on Jome
New Homes for Sale Near 7026 New Horizons Ln, Boiling Springs, SC 29316
About this Home
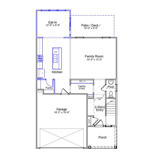
Functionality, stunning upgrades, and a prime location make this home truly exceptional! Nestled in Boiling Springs, it offers quick and convenient access to all that Boiling Springs has to offer, as well as vibrant Downtown Spartanburg! Step inside and notice two-story foyer, followed by water-resistant Ashen Brown luxury vinyl plank flooring that flows throughout all the common areas on the first floor. The kitchen overlooks the great room and eat-in kitchen, which gives you the feel of an open-concept plan with the benefit of defined spaces. The kitchen is packed with upgrades, including stainless steel appliances, a gas range, pendant lights over the large island, and quartz countertops. Beautiful hardwood stairs lead you to the second floor, where there are three bedrooms, a loft, and a convenient laundry room. A two-zone irrigation system has been added, allowing you to keep your yard looking as nice as your new home!
May also be listed on the Mungo Homes website
Information last verified by Jome: Wednesday at 5:39 AM (December 3, 2025)
Home details
- Property status:
- Sold
- Size:
- 1,779 sqft
- Stories:
- 2
- Beds:
- 3
- Baths:
- 2
- Half baths:
- 1
- Garage spaces:
- 2
Construction details
- Builder Name:
- Mungo Homes
Home features & finishes
- Garage/Parking:
- Garage
- Rooms:
- Primary Bedroom Upstairs

Community details
Landmark Commons
by Mungo Homes, Boiling Springs, SC
- 5 homes
- 8 plans
- 1,383 - 2,490 sqft
View Landmark Commons details
More homes in Landmark Commons
- Home at address 7023 New Horizons Ln, Boiling Springs, SC 29316

$295,000
Under construction- 3 bd
- 2 ba
- 1,433 sqft
7023 New Horizons Ln, Boiling Springs, SC 29316
- Home at address 7018 New Horizons Ln, Boiling Springs, SC 29316

$297,000
Under construction- 3 bd
- 2 ba
- 1,383 sqft
7018 New Horizons Ln, Boiling Springs, SC 29316
- Home at address 7019 New Horizons Ln, Boiling Springs, SC 29316

$303,000
Under construction- 3 bd
- 2 ba
- 1,500 sqft
7019 New Horizons Ln, Boiling Springs, SC 29316
- Home at address 7030 New Horizons Ln, Boiling Springs, SC 29316

$369,000
Move-in ready- 4 bd
- 3.5 ba
- 2,490 sqft
7030 New Horizons Ln, Boiling Springs, SC 29316
- Home at address 7038 New Horizons Ln, Boiling Springs, SC 29316

$384,000
Under construction- 4 bd
- 3 ba
- 2,442 sqft
7038 New Horizons Ln, Boiling Springs, SC 29316
Floor plans in Landmark Commons

Ford - Genesis Value Collection
- 3 bd
- 2 ba
- 1,383 sqft

Howard - Genesis Value Collection
- 3 bd
- 2 ba
- 1,433 sqft

Lawrence - Genesis Value Collection
- 3 bd
- 2 ba
- 1,500 sqft

Ashley - Vanguard Collection
- 3 bd
- 2.5 ba
- 1,677 sqft

Bowen - Vanguard Collection
- 3 bd
- 2.5 ba
- 1,899 sqft

Cameron - Vanguard Collection
- 3 bd
- 2.5 ba
- 2,082 sqft

Dabney - Vanguard Collection
- 3 bd
- 2.5 ba
- 2,258 sqft

Lacey - Vanguard Collection
- 4 bd
- 3.5 ba
- 2,465 sqft
About the builder - Mungo Homes
Neighborhood
Home address
- City:
- Boiling Springs
- County:
- Spartanburg
- Zip Code:
- 29316
Schools in Spartanburg School District 2
GreatSchools’ Summary Rating calculation is based on 4 of the school’s themed ratings, including test scores, student/academic progress, college readiness, and equity. This information should only be used as a reference. Jome is not affiliated with GreatSchools and does not endorse or guarantee this information. Please reach out to schools directly to verify all information and enrollment eligibility. Data provided by GreatSchools.org © 2025
Places of interest
Getting around
Air quality
Noise level
A Soundscore™ rating is a number between 50 (very loud) and 100 (very quiet) that tells you how loud a location is due to environmental noise.
Financials
Nearby communities in Boiling Springs
Homes in Boiling Springs by Mungo Homes
Recently added communities in this area
Other Builders in Boiling Springs, SC
Nearby sold homes
New homes in nearby cities
More New Homes in Boiling Springs, SC
- Jome
- New homes search
- South Carolina
- Spartanburg County
- Boiling Springs
- Landmark Commons
- 7026 New Horizons Ln, Boiling Springs, SC 29316































































