

























































- 4 bd
- 3.5 ba
- 2,535 sqft
606 June Berry Dr, Summerville, SC 29486
- Single-Family
- $232.74/sqft
- $220/monthly HOA
- 0.20-acre lot
New Homes for Sale Near 606 June Berry Dr, Summerville, SC 29486
About this Home
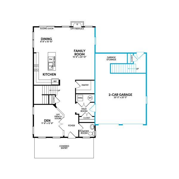
Ideal New Home with FROG is finishing construction and will be ready for move in before the end of the year! Main level has captivating 10' ceilings and LVP throughout. Kitchen is outfitted with Gourmet SS appliances including hood, plus white & burlap cabinets and quartz counters. Family room is enhanced with sleek fireplace and leads to the rear screened porch which offers views of the mature trees behind. Study is also found on the main level. 3 bedrooms and 2 baths on the 2nd level include the primary. FROG with entrance from garage is perfect for extended family or guests. Enjoy all of the Midtown amenities including pool, fitness and yoga studios, clubhouse, sports courts, playground, trails and more! Plus not far from downtown Charleston and local beaches!
Brookfield Mid-Atlantic Brokerage, LLC, MLS 25028182
May also be listed on the Brookfield Residential website
Information last verified by Jome: Today at 7:39 AM (May 19, 2026)
Home details
- Property status:
- Sold
- Collection:
- Single Family Homes at Nexton
- Lot size (acres):
- 0.20
- Size:
- 2,535 sqft
- Stories:
- 2
- Beds:
- 4
- Baths:
- 3
- Half baths:
- 1
- Garage spaces:
- 2
Construction details
- Builder Name:
- Brookfield Residential
- Completion Date:
- December, 2025
- Year Built:
- 2025
Home features & finishes
- Flooring:
- Ceramic FlooringVinyl FlooringTile Flooring
- Garage/Parking:
- GarageAttached Garage
- Interior Features:
- Ceiling-HighWalk-In ClosetFoyerPantry
- Kitchen:
- Kitchen Island
- Laundry facilities:
- Utility/Laundry Room
- Property amenities:
- Porch
- Rooms:
- Flex RoomKitchenDen RoomPowder RoomOffice/StudyMudroomDining RoomFamily RoomLiving RoomOpen Concept FloorplanPrimary Bedroom Upstairs
Utility information
- Heating:
- Gas Heating, Forced Air Heating
- Sewer:
- Public Sewer
- Water source:
- Public

Community details
Nexton at Nexton
by Brookfield Residential, Summerville, SC
- 14 homes
- 4 plans
- 1,553 - 2,692 sqft
View Nexton details
Community amenities
- Dog Park
- Fitness Center/Exercise Area
- Club House
- Tennis Courts
- Community Pool
- Park Nearby
- Walking, Jogging, Hike Or Bike Trails
More homes in Nexton
- Home at address 1733 Brightside Trl, Summerville, SC 29486

$526,790
Move-in ready- 4 bd
- 3.5 ba
- 2,400 sqft
1733 Brightside Trl, Summerville, SC 29486
- Home at address 313 Brightside Trl, Summerville, SC 29486

$535,490
Under construction- 4 bd
- 3.5 ba
- 2,371 sqft
313 Brightside Trl, Summerville, SC 29486
- Home at address 1786 Brightside Trl, Summerville, SC 29486

$551,240
Move-in ready- 4 bd
- 3.5 ba
- 2,407 sqft
1786 Brightside Trl, Summerville, SC 29486
- Home at address 318 Brightside Trl, Summerville, SC 29486

$551,240
Under construction- 4 bd
- 3.5 ba
- 2,407 sqft
318 Brightside Trl, Summerville, SC 29486
- Home at address 610 June Berry Dr, Summerville, SC 29486

$599,990
Move-in ready- 4 bd
- 2.5 ba
- 2,692 sqft
610 June Berry Dr, Summerville, SC 29486
- Home at address 193 Clearpath Dr, Summerville, SC 29486

$619,740
Under construction- 4 bd
- 3.5 ba
- 2,679 sqft
193 Clearpath Dr, Summerville, SC 29486
Floor plans in Nexton
About the builder - Brookfield Residential
Neighborhood
Home address
- City:
- Summerville
- County:
- Berkeley
- Zip Code:
- 29486
Schools in Berkeley County School District
GreatSchools’ Summary Rating calculation is based on 4 of the school’s themed ratings, including test scores, student/academic progress, college readiness, and equity. This information should only be used as a reference. Jome is not affiliated with GreatSchools and does not endorse or guarantee this information. Please reach out to schools directly to verify all information and enrollment eligibility. Data provided by GreatSchools.org © 2025
Places of interest
Getting around
Air quality
Noise level
A Soundscore™ rating is a number between 50 (very loud) and 100 (very quiet) that tells you how loud a location is due to environmental noise.
Financials
Nearby communities in Summerville
Homes in Summerville by Brookfield Residential
Recently added communities in this area
Other Builders in Summerville, SC
Nearby sold homes
New homes in nearby cities
More New Homes in Summerville, SC
Brookfield Mid-Atlantic Brokerage, LLC, MLS 25028182
IDX information is provided exclusively for personal, non-commercial use, and may not be used for any purpose other than to identify prospective properties consumers may be interested in purchasing. Copyright Charleston Trident Multiple Listing Service, Inc. All rights reserved. Information is deemed reliable but not guaranteed.
Read moreLast checked May 19, 7:55 pm
- Jome
- New homes search
- South Carolina
- Charleston Metropolitan Area
- Berkeley County
- Summerville
- Nexton
- Single Family Homes at Nexton
- 606 June Berry Dr, Summerville, SC 29486






























































