














Book your tour. Save an average of $18,473. We'll handle the rest.
- Confirmed tours
- Get matched & compare top deals
- Expert help, no pressure
- No added fees
Estimated value based on Jome data, T&C apply


















Why tour with Jome?
- No pressure toursTour at your own pace with no sales pressure
- Expert guidanceGet insights from our home buying experts
- Exclusive accessSee homes and deals not available elsewhere
Jome is featured in
- Single-Family
- Quick move-in
- $366.32/sqft
- East facing
Home description
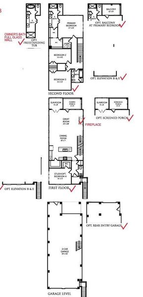
UNDER CONSTRUCTION; HOMESITE 36 The Bennett floorplan: Nestled in the heart of James Island and situated in a pocket style community, this beautifully crafted Drive under home is designed with thoughtful craftsmanship and sophisticated finishes throughout. This open concept floorplan features a gourmet kitchen, a great room with a fireplace, a sunroom and a screened porch! A versatile front room offers the ideal space for a private home office or study Upstairs you will find the Primary bedroom with a beautiful balcony off the rear, along with the other 2 other bedrooms! This home has been thoughtfully designed completely from the studs to the crown molding, making this platinum series home, a beautiful turn key property in the heart of James Island.
DFH Realty Georgia, LLC, MLS 25007726
May also be listed on the Dream Finders Homes website
Information last verified by Jome: Today at 7:47 AM (December 6, 2025)
Home highlights
Elegant performing arts venue in downtown Charleston adjacent to waterfront and revitalized cultural life.
Book your tour. Save an average of $18,473. We'll handle the rest.
We collect exclusive builder offers, book your tours, and support you from start to housewarming.
- Confirmed tours
- Get matched & compare top deals
- Expert help, no pressure
- No added fees
Estimated value based on Jome data, T&C apply
Home details
- Property status:
- Move-in ready
- Lot size (acres):
- 0.07
- Size:
- 2,506 sqft
- Stories:
- 2
- Beds:
- 3
- Baths:
- 2.5
- Garage spaces:
- 2
- Facing direction:
- East
Construction details
- Builder Name:
- Dream Finders Homes
- Year Built:
- 2025
- Roof:
- Metal Roofing
Home features & finishes
- Cooling:
- Ceiling Fan(s)Central Air
- Flooring:
- Ceramic FlooringWood FlooringVinyl FlooringTile Flooring
- Garage/Parking:
- Door OpenerGarageAttached Garage
- Interior Features:
- Ceiling-HighWindow TreatmentsWalk-In ClosetPantryGarden Tub
- Kitchen:
- Kitchen Island
- Laundry facilities:
- DryerWasherUtility/Laundry Room
- Property amenities:
- BalconyGas Log FireplaceFireplace
- Rooms:
- Sun RoomOffice/StudyDining RoomFamily RoomLiving Room
Utility information
- Heating:
- Electric Heating, Gas Heating

Community details
Central Park
by Dream Finders Homes, Charleston, SC
- 10 homes
- 8 plans
- 1,596 - 3,472 sqft
View Central Park details
Community amenities
- Walking, Jogging, Hike Or Bike Trails
More homes in Central Park
Floor plans in Central Park
About the builder - Dream Finders Homes
Neighborhood
Home address
- City:
- Charleston
- County:
- Charleston
- Zip Code:
- 29412
Schools in Charleston County School District
- Grades PK-08Privatejames island christian school0.7 mi15 crosscreek drna
GreatSchools’ Summary Rating calculation is based on 4 of the school’s themed ratings, including test scores, student/academic progress, college readiness, and equity. This information should only be used as a reference. Jome is not affiliated with GreatSchools and does not endorse or guarantee this information. Please reach out to schools directly to verify all information and enrollment eligibility. Data provided by GreatSchools.org © 2025
Places of interest
Getting around
1 nearby routes: 1 bus, 0 rail, 0 otherAir quality
Noise level
A Soundscore™ rating is a number between 50 (very loud) and 100 (very quiet) that tells you how loud a location is due to environmental noise.
Natural hazards risk
Climate hazards can impact homes and communities, with risks varying by location. These scores reflect the potential impact of natural disasters and climate-related risks on Charleston County
Provided by FEMA

Considering this home?
Our expert will guide your tour, in-person or virtual
Need more information?
Text or call (888) 486-2818
Financials
Estimated monthly payment
Similar homes nearby
Recently added communities in this area
Nearby communities in Charleston
New homes in nearby cities
More New Homes in Charleston, SC
DFH Realty Georgia, LLC, MLS 25007726
IDX information is provided exclusively for personal, non-commercial use, and may not be used for any purpose other than to identify prospective properties consumers may be interested in purchasing. Copyright Charleston Trident Multiple Listing Service, Inc. All rights reserved. Information is deemed reliable but not guaranteed.
Read moreLast checked Dec 6, 7:55 am
- Home
- New homes
- South Carolina
- Charleston Metropolitan Area
- Charleston County
- Charleston
- Central Park
- 750 Minton Rd, Charleston, SC 29412










































