








Book your tour. Save an average of $18,473. We'll handle the rest.
We collect exclusive builder offers, book your tours, and support you from start to housewarming.
- Confirmed tours
- Get matched & compare top deals
- Expert help, no pressure
- No added fees
Estimated value based on Jome data, T&C apply



























- 5 bd
- 3 ba
- 2,352 sqft
145 Field Sparrow Wy, Clayton, NC 27520
Why tour with Jome?
- No pressure toursTour at your own pace with no sales pressure
- Expert guidanceGet insights from our home buying experts
- Exclusive accessSee homes and deals not available elsewhere
Jome is featured in
- Single-Family
- Quick move-in
- $173.47/sqft
- $225/quarterly HOA
Home description
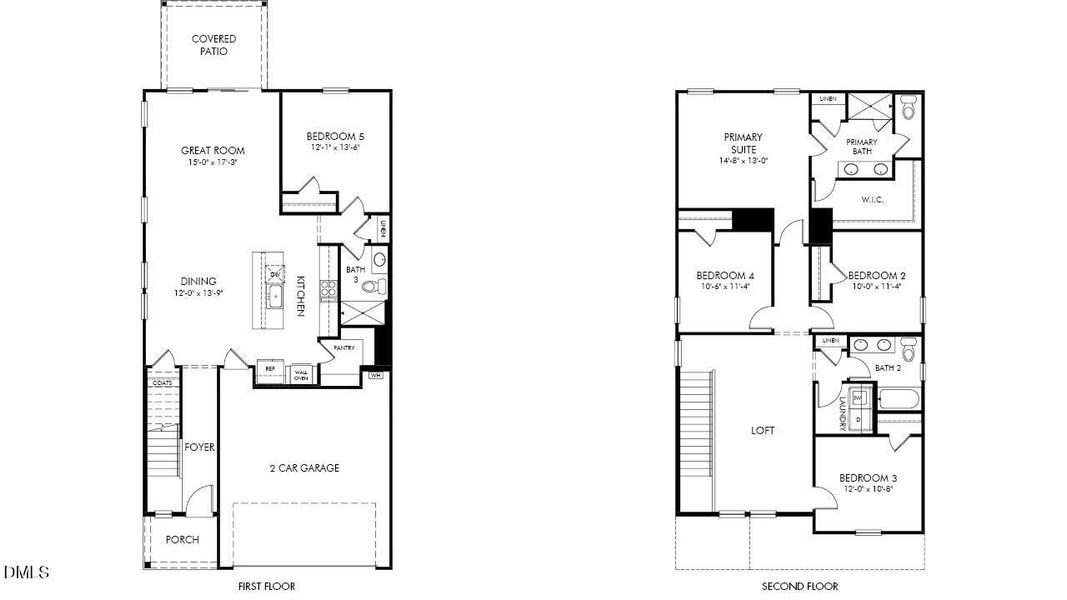
Brand new, energy-efficient home ready Jun 2026! Host your next gathering in the open-concept kitchen and living area. With five bedrooms, there's plenty of room to spread out. Personalize the second-story loft to meet your needs. Dual sinks and a large closet complement the primary suite. Located near downtown Clayton, Country Lane will offer a series of two-story homes with open-concept layouts and engineered with energy-efficient features. The planned community pool, clubhouse, tot lot and fire pit elevate the lifestyle within the community while gourmet kitchens and covered patios enhance living inside the home. Quick access to the I-540 and I-40 interchange keeps Raleigh, RTP and the rest of the Triangle within easy reach. Each of our homes is built with innovative, energy-efficient features designed to help you enjoy more savings, better health, real comfort and peace of mind.
Meritage Homes of the Carolina, MLS 10160038
May also be listed on the Meritage Homes website
Information last verified by Jome: Yesterday at 4:04 AM (April 19, 2026)
Home highlights
Book your tour. Save an average of $18,473. We'll handle the rest.
We collect exclusive builder offers, book your tours, and support you from start to housewarming.
- Confirmed tours
- Get matched & compare top deals
- Expert help, no pressure
- No added fees
Estimated value based on Jome data, T&C apply
Home details
- Property status:
- Move-in ready
- Lot size (acres):
- 0.15
- Size:
- 2,352 sqft
- Stories:
- 2
- Beds:
- 5
- Baths:
- 3
- Garage spaces:
- 2
Construction details
- Builder Name:
- Meritage Homes
- Year Built:
- 2026
- Roof:
- Shingle Roofing
Home features & finishes
- Construction Materials:
- Frame
- Cooling:
- Central Air
- Flooring:
- Vinyl FlooringCarpet Flooring
- Foundation Details:
- Slab
- Garage/Parking:
- GarageFront Entry Garage/ParkingAttached Garage
- Home amenities:
- ENERGY STAR CertifiedGreen Construction
- Interior Features:
- Walk-In ClosetCrown MoldingFoyerPantryBlindsDouble Vanity
- Kitchen:
- DishwasherMicrowave OvenOvenRefrigeratorStainless Steel AppliancesGas CooktopQuartz countertopKitchen IslandCooktop
- Laundry facilities:
- Laundry Facilities On Upper LevelDryerWasherUtility/Laundry Room
- Lighting:
- LightingSmart Lights
- Property amenities:
- BasementLandscapingWalk-in ShowerPatioSmart Home System
- Rooms:
- KitchenDining RoomLiving RoomOpen Concept Floorplan
Room details
Master Bedroom
Dining Room
Living Room

Get a consultation with our New Homes Expert
- See how your home builds wealth
- Plan your home-buying roadmap
- Discover hidden gems
Utility information
- Heating:
- Heat Pump, Zoned Heating, Water Heater, Tankless water heater
- Sewer:
- Public Sewer
- Utilities:
- Electricity Available, Natural Gas Available, Underground Utilities, Water Available
- Water source:
- Public
Community amenities
- Playground
- Club House
- Community Pool
- Park Nearby
- Sidewalks Available
About the builder - Meritage Homes

- 318communities on Jome
- 2,484homes on Jome
Neighborhood
Home address
Schools in Johnston County Schools
GreatSchools’ Summary Rating calculation is based on 4 of the school’s themed ratings, including test scores, student/academic progress, college readiness, and equity. This information should only be used as a reference. Jome is not affiliated with GreatSchools and does not endorse or guarantee this information. Please reach out to schools directly to verify all information and enrollment eligibility. Data provided by GreatSchools.org © 2025
Places of interest
Getting around
Natural hazards risk
Provided by FEMA

Considering this home?
Our expert will guide your tour, in-person or virtual
Need more information?
Text or call (888) 545-5198
Financials
Estimated monthly payment
Let us help you find your dream home
How many bedrooms are you looking for?
Similar homes nearby
Recently added communities in this area
Nearby communities in Clayton
New homes in nearby cities
More New Homes in Clayton, NC
Meritage Homes of the Carolina, MLS 10160038
© 2025 Doorify MLS, Inc. of North Carolina. All rights reserved. Brokers make an effort to deliver accurate information, but buyers should independently verify any information on which they will rely in a transaction. The listing broker shall not be responsible for any typographical errors, misinformation, or misprints, and they shall be held totally harmless from any damages arising from reliance upon this data. This data is provided exclusively for consumers’ personal, non-commercial use. Some IDX listings have been excluded from this IDX display. Closed (sold) listings may have been listed and/or sold by a real estate firm other than the firm(s) featured on this website. Closed data is not available until the sale of the property is recorded in the MLS. Home sale data is not an appraisal, CMA, competitive or comparative market analysis, or home valuation of any property. Listings marked with an icon are provided courtesy of the Doorify MLS, Inc. of North Carolina, Internet Data Exchange Database.
Read moreLast checked Apr 19, 10:10 pm
- Jome
- New homes search
- North Carolina
- Raleigh-Durham Area
- Johnston County
- Clayton
- 145 Field Sparrow Wy, Clayton, NC 27520

























