








Book your tour. Save an average of $18,473. We'll handle the rest.
We collect exclusive builder offers, book your tours, and support you from start to housewarming.
- Confirmed tours
- Get matched & compare top deals
- Expert help, no pressure
- No added fees
Estimated value based on Jome data, T&C apply









- 5 bd
- 4 ba
- 2,687 sqft
141 Gilded Eagle Ave, Clayton, NC 27520
Why tour with Jome?
- No pressure toursTour at your own pace with no sales pressure
- Expert guidanceGet insights from our home buying experts
- Exclusive accessSee homes and deals not available elsewhere
Jome is featured in
- Single-Family
- Quick move-in
- $161.89/sqft
- 1 days on Jome
Home description
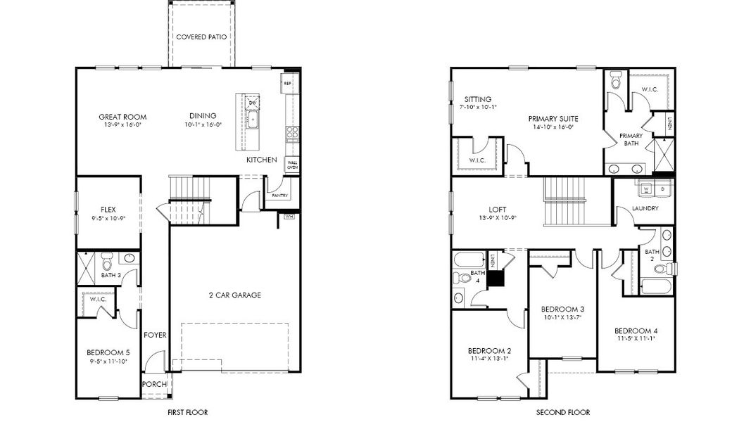
Step from the kitchen to the patio for relaxing. Two flex rooms suit work or hobbies, and a loft sits by bedrooms. Linen cabinets, marble-look white quartz countertops, light gray EVP flooring with warm gray carpet in our Fresh package.
May also be listed on the Meritage Homes website
Information last verified by Jome: Today at 12:32 AM (April 7, 2026)
Book your tour. Save an average of $18,473. We'll handle the rest.
We collect exclusive builder offers, book your tours, and support you from start to housewarming.
- Confirmed tours
- Get matched & compare top deals
- Expert help, no pressure
- No added fees
Estimated value based on Jome data, T&C apply
Home details
- Property status:
- Move-in ready
- Size:
- 2,687 sqft
- Stories:
- 2
- Beds:
- 5
- Baths:
- 4
- Garage spaces:
- 2
- HERS index:
- 60
Construction details
- Builder Name:
- Meritage Homes
Home features & finishes
- Garage/Parking:
- Garage

Get a consultation with our New Homes Expert
- See how your home builds wealth
- Plan your home-buying roadmap
- Discover hidden gems

Community details
Country Lane - Signature Series
by Meritage Homes, Clayton, NC
- 4 homes
- 2,406 - 2,687 sqft
View Country Lane - Signature Series details
More homes in Country Lane - Signature Series
- Home at address 175 Field Sparrow Wy, Clayton, NC 27520

Wilson
$409,000
- 5 bd
- 3 ba
- 2,406 sqft
175 Field Sparrow Wy, Clayton, NC 27520
- Home at address 563 Hunter Wy, Clayton, NC 27520

Lakeland
$419,000
- 5 bd
- 3 ba
- 2,514 sqft
563 Hunter Wy, Clayton, NC 27520
- Home at address 569 Hunter Wy, Clayton, NC 27520

Chatham
$429,000
- 5 bd
- 3 ba
- 2,674 sqft
569 Hunter Wy, Clayton, NC 27520
About the builder - Meritage Homes

- 319communities on Jome
- 2,563homes on Jome
Neighborhood
Home address
Schools in Johnston County Schools
GreatSchools’ Summary Rating calculation is based on 4 of the school’s themed ratings, including test scores, student/academic progress, college readiness, and equity. This information should only be used as a reference. Jome is not affiliated with GreatSchools and does not endorse or guarantee this information. Please reach out to schools directly to verify all information and enrollment eligibility. Data provided by GreatSchools.org © 2025
Places of interest
Getting around
Air quality

Considering this home?
Our expert will guide your tour, in-person or virtual
Need more information?
Text or call (888) 545-5198
Financials
Estimated monthly payment
Let us help you find your dream home
How many bedrooms are you looking for?
Similar homes nearby
Recently added communities in this area
Nearby communities in Clayton
New homes in nearby cities
More New Homes in Clayton, NC
- Jome
- New homes search
- North Carolina
- Raleigh-Durham Area
- Johnston County
- Clayton
- Country Lane - Signature Series
- 141 Gilded Eagle Ave, Clayton, NC 27520
























