














Book your tour. Save an average of $18,473. We'll handle the rest.
We collect exclusive builder offers, book your tours, and support you from start to housewarming.
- Confirmed tours
- Get matched & compare top deals
- Expert help, no pressure
- No added fees
Estimated value based on Jome data, T&C apply




















Why tour with Jome?
- No pressure toursTour at your own pace with no sales pressure
- Expert guidanceGet insights from our home buying experts
- Exclusive accessSee homes and deals not available elsewhere
Jome is featured in
- Single-Family
- Ready by June 2026
- $193.51/sqft
- 2 days on Jome
Builder deals available
- TOP-TIER DEAL
VA 30 Year Fixed
$6,560 est. value- Rate buydown from 3.49% (1 year) with 4.733% APR
FHA 30 Year Fixed
$280 est. value- Rate buydown from 3.49% (1 year) with 5.422% APR and 3.5% down payment
Deals may change and are not guaranteed. Some deals apply to specific homes or plans. Not a financing offer. Eligibility varies by lender. Please verify details.
Home description
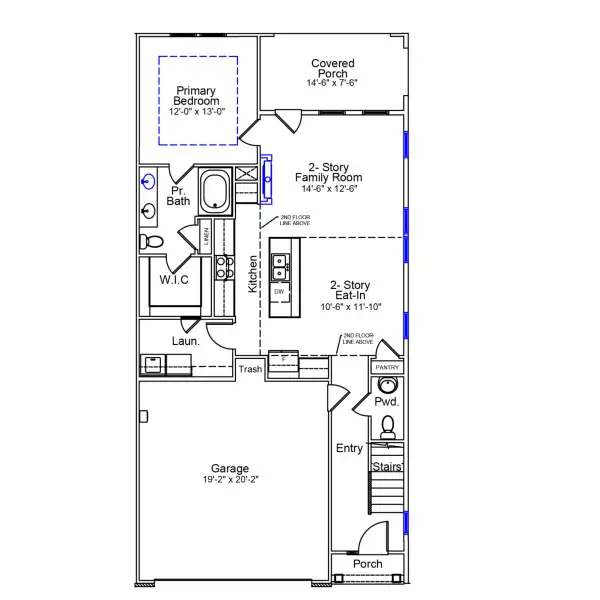
This spacious townhome boasts a two-car garage, first-floor primary suite, and open concept living. Upon entering, you'll find a convenient powder room that seamlessly flows into the great room, kitchen, and eat-in area, all of which feature soaring two-story ceilings. Additionally, this home offers a covered porch, perfect for outdoor relaxation. Downstairs, the primary suite includes a walk-in closet, dual vanities, and a walk-in shower. A laundry room pass through off the primary closet adds extra convenience. Upstairs, you'll discover two secondary bedrooms, a full bathroom, and a versatile loft space. Located just minutes from shopping, dining, and Historic Downtown Wilmington, welcome to Grand Park! This master-planned community will offer amenities such as a swimming pool, a covered outdoor pavilion, and walking paths.
May also be listed on the Mungo Homes website
Information last verified by Jome: Today at 5:40 AM (March 12, 2026)
Book your tour. Save an average of $18,473. We'll handle the rest.
We collect exclusive builder offers, book your tours, and support you from start to housewarming.
- Confirmed tours
- Get matched & compare top deals
- Expert help, no pressure
- No added fees
Estimated value based on Jome data, T&C apply
Home details
- Property status:
- Under construction
- Size:
- 1,883 sqft
- Stories:
- 2
- Beds:
- 3
- Baths:
- 2
- Half baths:
- 1
- Garage spaces:
- 2
Construction details
- Builder Name:
- Mungo Homes
- Completion Date:
- June, 2026
Home features & finishes
- Garage/Parking:
- Garage
- Rooms:
- Primary Bedroom Downstairs

Get a consultation with our New Homes Expert
- See how your home builds wealth
- Plan your home-buying roadmap
- Discover hidden gems

Community details
Grand Park
by Mungo Homes, Leland, NC
- 19 homes
- 16 plans
- 1,671 - 4,297 sqft
View Grand Park details
More homes in Grand Park
- Home at address 2197 Star Shower Wy, Leland, NC 28451

Hyacinth
Savings$312,105
- 3 bd
- 2.5 ba
- 1,856 sqft
2197 Star Shower Wy, Leland, NC 28451
- Home at address 3012 Coastal Dream Wy, Leland, NC 28451

Hyacinth
Savings$314,145
- 3 bd
- 2.5 ba
- 1,856 sqft
3012 Coastal Dream Wy, Leland, NC 28451
- Home at address 3004 Coastal Dream Wy, Leland, NC 28451

Hyacinth
Savings$329,593
- 4 bd
- 3.5 ba
- 2,096 sqft
3004 Coastal Dream Wy, Leland, NC 28451
- Home at address 3032 Coastal Dream Wy, Leland, NC 28451

Hyacinth
Savings$334,979
- 3 bd
- 2.5 ba
- 1,856 sqft
3032 Coastal Dream Wy, Leland, NC 28451
- Home at address 3028 Coastal Dream Wy, Leland, NC 28451

Hyacinth
Savings$334,992
- 4 bd
- 3.5 ba
- 2,096 sqft
3028 Coastal Dream Wy, Leland, NC 28451
- Home at address 3052 Coastal Dream Wy, Leland, NC 28451

Hyacinth
Savings$338,699
- 3 bd
- 2.5 ba
- 1,856 sqft
3052 Coastal Dream Wy, Leland, NC 28451
Floor plans in Grand Park
- View details for Hyacinth - Vanguard Collection

Hyacinth - Vanguard Collection
$296,990+- 3 bd
- 2.5 ba
- 1,856 sqft
- View details for Hydrangea - Vanguard Collection

Hydrangea - Vanguard Collection
$299,990+- 3 bd
- 2.5 ba
- 1,883 sqft
About the builder - Mungo Homes
Neighborhood
Home address
Schools in Brunswick County Schools
GreatSchools’ Summary Rating calculation is based on 4 of the school’s themed ratings, including test scores, student/academic progress, college readiness, and equity. This information should only be used as a reference. Jome is not affiliated with GreatSchools and does not endorse or guarantee this information. Please reach out to schools directly to verify all information and enrollment eligibility. Data provided by GreatSchools.org © 2025
Getting around
Noise level
A Soundscore™ rating is a number between 50 (very loud) and 100 (very quiet) that tells you how loud a location is due to environmental noise.

Considering this home?
Our expert will guide your tour, in-person or virtual
Need more information?
Text or call (888) 488-9243
Financials
Estimated monthly payment
Let us help you find your dream home
How many bedrooms are you looking for?
Similar homes nearby
Recently added communities in this area
Nearby communities in Leland
New homes in nearby cities
More New Homes in Leland, NC
- Jome
- New homes search
- North Carolina
- Brunswick County
- Leland
- Grand Park
- 5621 Palm Tree Pl, Leland, NC 28451
































