








Book your tour. Save an average of $18,473. We'll handle the rest.
We collect exclusive builder offers, book your tours, and support you from start to housewarming.
- Confirmed tours
- Get matched & compare top deals
- Expert help, no pressure
- No added fees
Estimated value based on Jome data, T&C apply









Why tour with Jome?
- No pressure toursTour at your own pace with no sales pressure
- Expert guidanceGet insights from our home buying experts
- Exclusive accessSee homes and deals not available elsewhere
Jome is featured in
- Single-Family
- Quick move-in
- $171.71/sqft
- 57 days on Jome
Home description
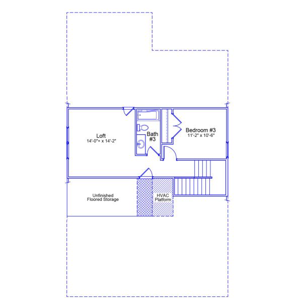
The Lawrence is a thoughtfully designed ranch and a half that offers three bedrooms, three bathrooms, and 1,978 square feet of easy coastal living with main-level convenience and bonus space upstairs. Created for those who want everyday comfort without giving up flexibility, this home blends style and function just minutes from the Brunswick County beaches. The main level features an open-concept layout that connects a bright great room and dining area, creating an inviting space for both relaxing and entertaining. The chef-inspired kitchen is finished with stone-gray cabinets, quartz countertops, a large center island, and a spacious walk-in pantry. Privately tucked at the back of the home, the primary suite showcases a vaulted ceiling and a spa-inspired bathroom with tiled floors, a walk-in shower, water closet, and a convenient laundry pass-through from the walk-in closet. A secondary bedroom and full bathroom are located at the front of the home, making it ideal for guests or a home office. Upstairs, a third bedroom, full bathroom, and loft provide flexible space that works perfectly for visitors, hobbies, or a cozy retreat. Additional features throughout the home include Luxury Vinyl Plank flooring in the main living areas, nine-foot ceilings that enhance the open feel, multiple linen closets for added storage, and a covered back porch that’s perfect for relaxing, dining, or enjoying the coastal breeze. Located near Leland, Wilmington, and the Brunswick County beaches, The Lawrence delivers low-maintenance living paired with modern design. If you’re ready to simplify your lifestyle without sacrificing space, schedule your private tour today and see why The Lawrence is the perfect fit for your next chapter.
May also be listed on the Mungo Homes website
Information last verified by Jome: Today at 5:34 AM (March 20, 2026)
Book your tour. Save an average of $18,473. We'll handle the rest.
We collect exclusive builder offers, book your tours, and support you from start to housewarming.
- Confirmed tours
- Get matched & compare top deals
- Expert help, no pressure
- No added fees
Estimated value based on Jome data, T&C apply
Home details
- Property status:
- Move-in ready
- Size:
- 1,978 sqft
- Stories:
- 1
- Beds:
- 3
- Baths:
- 3
- Garage spaces:
- 2
Construction details
- Builder Name:
- Mungo Homes
- Completion Date:
- March, 2026
Home features & finishes
- Garage/Parking:
- Garage
- Rooms:
- Primary Bedroom On MainPrimary Bedroom Downstairs

Get a consultation with our New Homes Expert
- See how your home builds wealth
- Plan your home-buying roadmap
- Discover hidden gems

Community details
River Tide Farms
by Mungo Homes, Bolivia, NC
- 16 homes
- 6 plans
- 1,383 - 2,378 sqft
View River Tide Farms details
More homes in River Tide Farms
- Home at address 446 Galloping Foal Wy Se, Bolivia, NC 28422

Brunswick
$299,561
- 3 bd
- 2 ba
- 1,548 sqft
446 Galloping Foal Wy Se, Bolivia, NC 28422
- Home at address 482 Galloping Foal Wy Se, Bolivia, NC 28422

Lawrence
$299,658
- 3 bd
- 2 ba
- 1,500 sqft
482 Galloping Foal Wy Se, Bolivia, NC 28422
- Home at address 438 Galloping Foal Wy Se, Bolivia, NC 28422

Brunswick
$299,945
- 3 bd
- 2 ba
- 1,548 sqft
438 Galloping Foal Wy Se, Bolivia, NC 28422
- Home at address 478 Galloping Foal Wy Se, Bolivia, NC 28422

Ford
$299,973
- 3 bd
- 2 ba
- 1,383 sqft
478 Galloping Foal Wy Se, Bolivia, NC 28422
- Home at address 462 Galloping Foal Wy Se, Bolivia, NC 28422

Brunswick
$308,076
- 3 bd
- 2 ba
- 1,548 sqft
462 Galloping Foal Wy Se, Bolivia, NC 28422
- Home at address 454 Galloping Foal Wy Se, Bolivia, NC 28422

Brunswick
$309,342
- 3 bd
- 2 ba
- 1,548 sqft
454 Galloping Foal Wy Se, Bolivia, NC 28422
Floor plans in River Tide Farms
- View details for Ford - Genesis Value Collection

Ford - Genesis Value Collection
$279,292+- 3 bd
- 2 ba
- 1,383 sqft
- View details for Brunswick - Genesis Value Collection

Brunswick - Genesis Value Collection
$281,320+- 3 bd
- 2 ba
- 1,548 sqft
About the builder - Mungo Homes
Neighborhood
Home address
Schools in Brunswick County Schools
GreatSchools’ Summary Rating calculation is based on 4 of the school’s themed ratings, including test scores, student/academic progress, college readiness, and equity. This information should only be used as a reference. Jome is not affiliated with GreatSchools and does not endorse or guarantee this information. Please reach out to schools directly to verify all information and enrollment eligibility. Data provided by GreatSchools.org © 2025
Getting around

Considering this home?
Our expert will guide your tour, in-person or virtual
Need more information?
Text or call (888) 545-5198
Financials
Estimated monthly payment
Let us help you find your dream home
How many bedrooms are you looking for?
Similar homes nearby
Recently added communities in this area
Nearby communities in Bolivia
New homes in nearby cities
More New Homes in Bolivia, NC
- Jome
- New homes search
- North Carolina
- Brunswick County
- Bolivia
- River Tide Farms
- 475 Galloping Foal Wy Se, Bolivia, NC 28422




























