














Book your tour. Save an average of $18,473. We'll handle the rest.
- Confirmed tours
- Get matched & compare top deals
- Expert help, no pressure
- No added fees
Estimated value based on Jome data, T&C apply


Why tour with Jome?
- No pressure toursTour at your own pace with no sales pressure
- Expert guidanceGet insights from our home buying experts
- Exclusive accessSee homes and deals not available elsewhere
Jome is featured in
- Single-Family
- Ready by March 2026
- $167.36/sqft
- 1 days on Jome
Home description
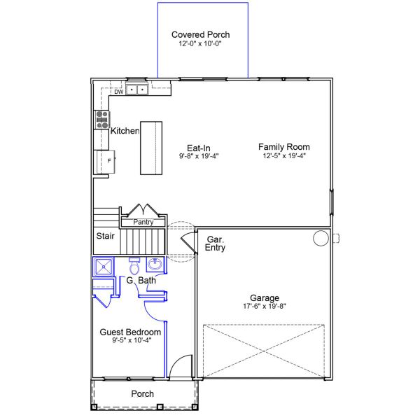
This two-story home offers five bedrooms and three bathrooms. Upstairs, the spacious primary suite features a large shower, double sinks, a linen closet, and an oversized walk-in closet. The conveniently located laundry room sits just outside the primary suite. Three additional bedrooms and a secondary full bath complete the upper level. On the main level, you’ll find a guest suite with a full bathroom. The open-concept great room flows seamlessly into the eat-in kitchen, creating an inviting space for entertaining. A covered rear patio completes the home.
May also be listed on the Mungo Homes website
Information last verified by Jome: Yesterday at 5:40 AM (January 17, 2026)
Book your tour. Save an average of $18,473. We'll handle the rest.
We collect exclusive builder offers, book your tours, and support you from start to housewarming.
- Confirmed tours
- Get matched & compare top deals
- Expert help, no pressure
- No added fees
Estimated value based on Jome data, T&C apply
Home details
- Property status:
- Under construction
- Size:
- 2,175 sqft
- Stories:
- 2
- Beds:
- 5
- Baths:
- 3
- Garage spaces:
- 2
Construction details
- Builder Name:
- Mungo Homes
- Completion Date:
- March, 2026
Home features & finishes
- Garage/Parking:
- Garage
- Rooms:
- Primary Bedroom Upstairs

Get a consultation with our New Homes Expert
- See how your home builds wealth
- Plan your home-buying roadmap
- Discover hidden gems

Community details
Piper Creek
by Mungo Homes, Newton, NC
- 10 homes
- 8 plans
- 1,548 - 2,844 sqft
View Piper Creek details
More homes in Piper Creek
- Home at address 1632 Piper Creek Ave, Newton, NC 28658

McDowell
$349,000
- 5 bd
- 3 ba
- 2,255 sqft
1632 Piper Creek Ave, Newton, NC 28658
- Home at address 1631 Piper Crk, Newton, NC 28658

Home
$364,000
- 5 bd
- 3 ba
- 2,177 sqft
1631 Piper Crk, Newton, NC 28658
Floor plans in Piper Creek

Brunswick - Genesis Value Collection
- 3 bd
- 2 ba
- 1,548 sqft

Guilford - Genesis Value Collection
- 4 bd
- 2.5 ba
- 1,772 sqft

Durham II - Genesis Value Collection
- 3 bd
- 2 ba
- 1,761 sqft

McDowell - Genesis Value Collection
- 4 bd
- 2.5 ba
- 2,218 sqft

Lancaster - Genesis Value Collection
- 4 bd
- 2.5 ba
- 2,152 sqft

Meriwether - Genesis Value Collection
- 3 bd
- 2.5 ba
- 2,223 sqft

Pickens - Genesis Value Collection
- 4 bd
- 2.5 ba
- 2,431 sqft

Telfair - Genesis Value Collection
- 4 bd
- 2.5 ba
- 2,771 sqft
About the builder - Mungo Homes
Neighborhood
Home address
Schools in Catawba County Schools
GreatSchools’ Summary Rating calculation is based on 4 of the school’s themed ratings, including test scores, student/academic progress, college readiness, and equity. This information should only be used as a reference. Jome is not affiliated with GreatSchools and does not endorse or guarantee this information. Please reach out to schools directly to verify all information and enrollment eligibility. Data provided by GreatSchools.org © 2025
Places of interest
Getting around
Air quality
Noise level
A Soundscore™ rating is a number between 50 (very loud) and 100 (very quiet) that tells you how loud a location is due to environmental noise.

Considering this home?
Our expert will guide your tour, in-person or virtual
Need more information?
Text or call (888) 486-2818
Financials
Estimated monthly payment
Let us help you find your dream home
How many bedrooms are you looking for?
Similar homes nearby
Recently added communities in this area
Nearby communities in Newton
New homes in nearby cities
More New Homes in Newton, NC
- Jome
- New homes search
- North Carolina
- Charlotte Metropolitan Area
- Catawba County
- Newton
- Piper Creek
- 1631 Piper Creek Ave, Newton, NC 28658


























