













Book your tour. Save an average of $18,473. We'll handle the rest.
- Confirmed tours
- Get matched & compare top deals
- Expert help, no pressure
- No added fees
Estimated value based on Jome data, T&C apply
Why tour with Jome?
- No pressure toursTour at your own pace with no sales pressure
- Expert guidanceGet insights from our home buying experts
- Exclusive accessSee homes and deals not available elsewhere
Jome is featured in
- Single-Family
- Ready by April 2026
- $213.82/sqft
- 46 days on Jome
Home description
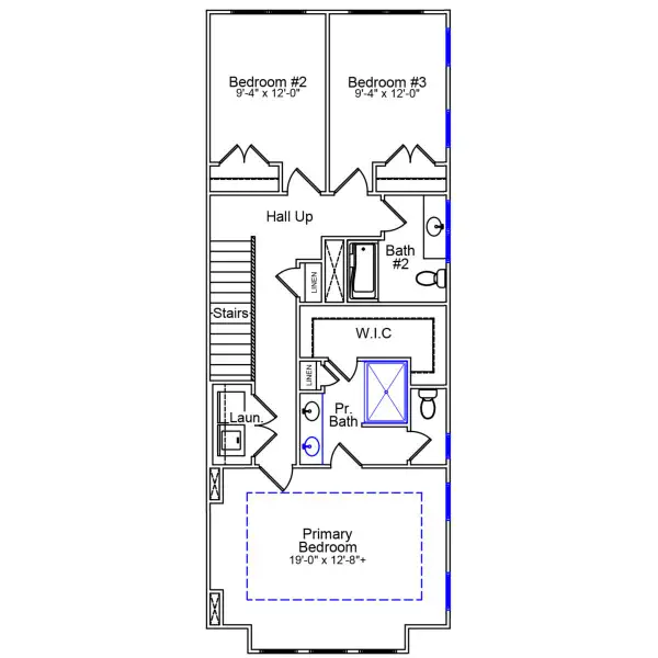
This two-story end unit townhome includes three bedrooms and two-and-one-half bathrooms. Additional windows on both levels ensure plenty of natural light. Immediately inside the entrance, a hallway leads you past the staircase and half bathroom and into the open concept great room with an eat-in, kitchen, and patio. The primary suite features a walk-in closet, tray ceiling, and dual vanities. A laundry closet is located just outside of the primary suite for ultimate convenience. Two secondary bedrooms and one full bathroom are also located upstairs. A one-car garage and a bench and cubbies complete this floor plan.
May also be listed on the Mungo Homes website
Information last verified by Jome: Yesterday at 6:09 AM (January 19, 2026)
Book your tour. Save an average of $18,473. We'll handle the rest.
We collect exclusive builder offers, book your tours, and support you from start to housewarming.
- Confirmed tours
- Get matched & compare top deals
- Expert help, no pressure
- No added fees
Estimated value based on Jome data, T&C apply
Home details
- Property status:
- Under construction
- Neighborhood:
- Nevin Community
- Size:
- 1,671 sqft
- Stories:
- 2
- Beds:
- 3
- Baths:
- 2
- Half baths:
- 1
- Garage spaces:
- 1
Construction details
- Builder Name:
- Mungo Homes
- Completion Date:
- April, 2026
Home features & finishes
- Garage/Parking:
- Garage
- Rooms:
- Primary Bedroom Upstairs

Get a consultation with our New Homes Expert
- See how your home builds wealth
- Plan your home-buying roadmap
- Discover hidden gems

Community details
Nichols Landing
by Mungo Homes, Charlotte, NC
- 7 homes
- 8 plans
- 1,471 - 2,322 sqft
View Nichols Landing details
More homes in Nichols Landing
- Home at address 6318 Abelia Ave, Charlotte, NC 28269

Foxglove
$346,470
- 3 bd
- 2.5 ba
- 1,671 sqft
6318 Abelia Ave, Charlotte, NC 28269
- Home at address 6314 Abelia Ave, Charlotte, NC 28269

Foxglove
$348,985
- 3 bd
- 2.5 ba
- 1,671 sqft
6314 Abelia Ave, Charlotte, NC 28269
- Home at address 7446 Mashburn Dr, Charlotte, NC 28269

Dahlia
$350,905
- 3 bd
- 3.5 ba
- 1,672 sqft
7446 Mashburn Dr, Charlotte, NC 28269
- Home at address 7450 Mashburn Dr, Charlotte, NC 28269

Foxglove
$352,489
- 3 bd
- 2.5 ba
- 1,671 sqft
7450 Mashburn Dr, Charlotte, NC 28269
- Home at address 7422 Mashburn Dr, Charlotte, NC 28269

Dahlia
$357,728
- 3 bd
- 3.5 ba
- 1,672 sqft
7422 Mashburn Dr, Charlotte, NC 28269
- Home at address 7454 Mashburn Dr, Charlotte, NC 28269

Dahlia
$360,507
- 3 bd
- 3.5 ba
- 1,672 sqft
7454 Mashburn Dr, Charlotte, NC 28269
Floor plans in Nichols Landing

Clover - Genesis Value Collection
- 3 bd
- 2.5 ba
- 1,514 sqft

Cannalily - Genesis Value Collection
- 3 bd
- 2.5 ba
- 1,471 sqft

Dahlia - Genesis Value Collection
- 3 bd
- 2.5 ba
- 1,672 sqft

Foxglove - Genesis Value Collection
- 3 bd
- 2.5 ba
- 1,671 sqft

Poinsetta - Genesis Value Collection
- 3 bd
- 3.5 ba
- 2,013 sqft

Snapdragon - Genesis Value Collection
- 3 bd
- 3.5 ba
- 2,039 sqft

Sunflower - Genesis Value Collection
- 3 bd
- 2.5 ba
- 2,269 sqft

Tigerlily - Genesis Value Collection
- 3 bd
- 2.5 ba
- 2,322 sqft
About the builder - Mungo Homes
Neighborhood
Home address
- Neighborhood:
- Nevin Community
- City:
- Charlotte
- County:
- Mecklenburg
- Zip Code:
- 28269
Schools in Charlotte-Mecklenburg Schools
- Grades PK-12Privatebrisbane academy1.0 mi5901 statesville rdna
- Grades 06-08Publicturning point middle2.1 mi2300 w sugar creek rdna
GreatSchools’ Summary Rating calculation is based on 4 of the school’s themed ratings, including test scores, student/academic progress, college readiness, and equity. This information should only be used as a reference. Jome is not affiliated with GreatSchools and does not endorse or guarantee this information. Please reach out to schools directly to verify all information and enrollment eligibility. Data provided by GreatSchools.org © 2025
Places of interest
Getting around
2 nearby routes: 2 bus, 0 rail, 0 otherAir quality
Noise level
A Soundscore™ rating is a number between 50 (very loud) and 100 (very quiet) that tells you how loud a location is due to environmental noise.

Considering this home?
Our expert will guide your tour, in-person or virtual
Need more information?
Text or call (888) 486-2818
Financials
Estimated monthly payment
Let us help you find your dream home
How many bedrooms are you looking for?
Similar homes nearby
Recently added communities in this area
Nearby communities in Charlotte
New homes in nearby cities
More New Homes in Charlotte, NC
- Jome
- New homes search
- North Carolina
- Charlotte Metropolitan Area
- Mecklenburg County
- Charlotte
- Nichols Landing
- 6310 Abelia Ave, Charlotte, NC 28269




























