









Book your tour. Save an average of $18,473. We'll handle the rest.
We collect exclusive builder offers, book your tours, and support you from start to housewarming.
- Confirmed tours
- Get matched & compare top deals
- Expert help, no pressure
- No added fees
Estimated value based on Jome data, T&C apply






Why tour with Jome?
- No pressure toursTour at your own pace with no sales pressure
- Expert guidanceGet insights from our home buying experts
- Exclusive accessSee homes and deals not available elsewhere
Jome is featured in
- Single-Family
- Ready by May 2026
- $205.74/sqft
- 57 days on Jome
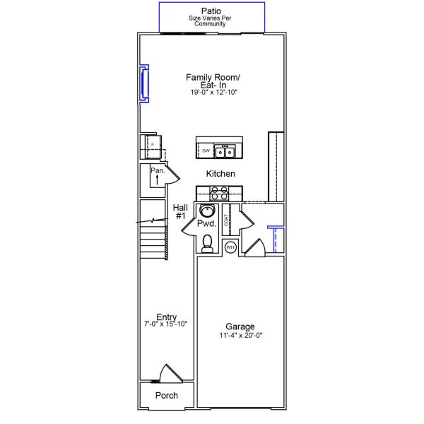
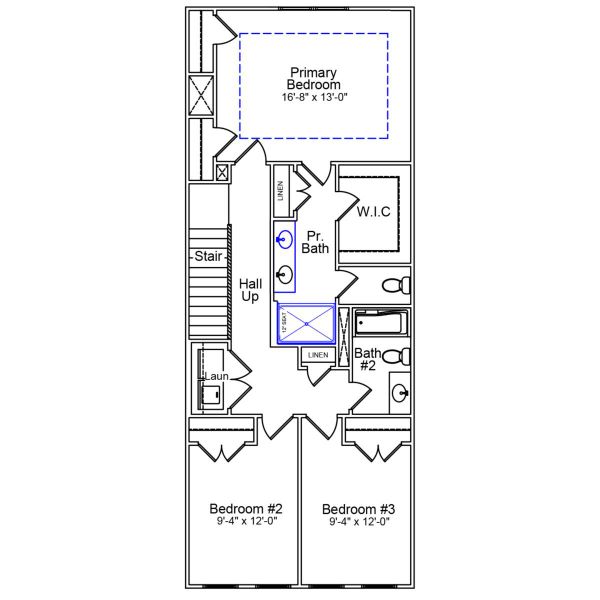
Home description
This two-story townhome includes three bedrooms and two-and-one-half bathrooms. Immediately inside the entrance is a hallway that leads past the staircase and half bathroom and into the open-concept great room with a fireplace, eat-in kitchen, and patio. Upstairs, the primary suite features a walk-in closet, tray ceiling, and dual vanities. A laundry closet is located just outside the primary suite for ultimate convenience. Two secondary bedrooms and one full bathroom are also located upstairs. A one-car garage with a bench and cubby completes this floor plan.
May also be listed on the Mungo Homes website
Information last verified by Jome: Yesterday at 5:35 AM (April 1, 2026)
Book your tour. Save an average of $18,473. We'll handle the rest.
We collect exclusive builder offers, book your tours, and support you from start to housewarming.
- Confirmed tours
- Get matched & compare top deals
- Expert help, no pressure
- No added fees
Estimated value based on Jome data, T&C apply
Home details
- Property status:
- Under construction
- Neighborhood:
- Nevin Community
- Size:
- 1,672 sqft
- Stories:
- 2
- Beds:
- 3
- Baths:
- 3
- Half baths:
- 1
- Garage spaces:
- 1
Construction details
- Builder Name:
- Mungo Homes
- Completion Date:
- May, 2026
Home features & finishes
- Garage/Parking:
- Garage
- Rooms:
- Primary Bedroom Upstairs

Get a consultation with our New Homes Expert
- See how your home builds wealth
- Plan your home-buying roadmap
- Discover hidden gems

Community details
Nichols Landing
by Mungo Homes, Charlotte, NC
- 31 homes
- 8 plans
- 1,456 - 2,322 sqft
View Nichols Landing details
More homes in Nichols Landing
- Home at address 6514 Harlech St, Charlotte, NC 28269

Home
$329,353
- 3 bd
- 2.5 ba
- 1,505 sqft
6514 Harlech St, Charlotte, NC 28269
- Home at address 6518 Harlech St, Unit 17, Charlotte, NC 28269

Home
$339,335
- 3 bd
- 2.5 ba
- 1,462 sqft
6518 Harlech St, Unit 17, Charlotte, NC 28269
- Home at address 7414 Mashburn Dr, Charlotte, NC 28269

Foxglove
$342,000
- 3 bd
- 2.5 ba
- 1,671 sqft
7414 Mashburn Dr, Charlotte, NC 28269
- Home at address 7414 Mashburn Dr, Charlotte, NC 28269

Home
$342,000
- 3 bd
- 2.5 ba
- 1,671 sqft
7414 Mashburn Dr, Charlotte, NC 28269
- Home at address 7418 Mashburn Dr, Unit 96, Charlotte, NC 28269

Home
$344,000
- 3 bd
- 2.5 ba
- 1,672 sqft
7418 Mashburn Dr, Unit 96, Charlotte, NC 28269
- Home at address 6340 Abelia Ave, Charlotte, NC 28269

Home
$344,895
- 3 bd
- 2.5 ba
- 1,672 sqft
6340 Abelia Ave, Charlotte, NC 28269
Floor plans in Nichols Landing
- View details for Clover - Genesis Value Collection

Clover - Genesis Value Collection
$305,000+- 3 bd
- 2.5 ba
- 1,505 sqft
- View details for Cannalily - Genesis Value Collection

Cannalily - Genesis Value Collection
$310,000+- 3 bd
- 2.5 ba
- 1,456 sqft
About the builder - Mungo Homes
Neighborhood
Home address
- Neighborhood:
- Nevin Community
- City:
- Charlotte
- County:
- Mecklenburg
- Zip Code:
- 28269
Schools in Charlotte-Mecklenburg Schools
- Grades PK-12Privatebrisbane academy0.9 mi5901 statesville rdna
- Grades 06-08Publicturning point middle2.2 mi2300 w sugar creek rdna
GreatSchools’ Summary Rating calculation is based on 4 of the school’s themed ratings, including test scores, student/academic progress, college readiness, and equity. This information should only be used as a reference. Jome is not affiliated with GreatSchools and does not endorse or guarantee this information. Please reach out to schools directly to verify all information and enrollment eligibility. Data provided by GreatSchools.org © 2025
Places of interest
Getting around
2 nearby routes: 2 bus, 0 rail, 0 otherAir quality
Noise level
A Soundscore™ rating is a number between 50 (very loud) and 100 (very quiet) that tells you how loud a location is due to environmental noise.

Considering this home?
Our expert will guide your tour, in-person or virtual
Need more information?
Text or call (888) 545-5198
Financials
Estimated monthly payment
Let us help you find your dream home
How many bedrooms are you looking for?
Similar homes nearby
Recently added communities in this area
Nearby communities in Charlotte
New homes in nearby cities
More New Homes in Charlotte, NC
- Jome
- New homes search
- North Carolina
- Charlotte Metropolitan Area
- Mecklenburg County
- Charlotte
- Nichols Landing
- 7418 Mashburn Dr, Charlotte, NC 28269






























