













Book your tour. Save an average of $18,473. We'll handle the rest.
We collect exclusive builder offers, book your tours, and support you from start to housewarming.
- Confirmed tours
- Get matched & compare top deals
- Expert help, no pressure
- No added fees
Estimated value based on Jome data, T&C apply

- 5 bd
- 4.5 ba
- 3,573 sqft
369 Crop Rd, Angier, NC 27501
Why tour with Jome?
- No pressure toursTour at your own pace with no sales pressure
- Expert guidanceGet insights from our home buying experts
- Exclusive accessSee homes and deals not available elsewhere
Jome is featured in
- Single-Family
- Quick move-in
- $209.88/sqft
- $60/monthly HOA
Home description
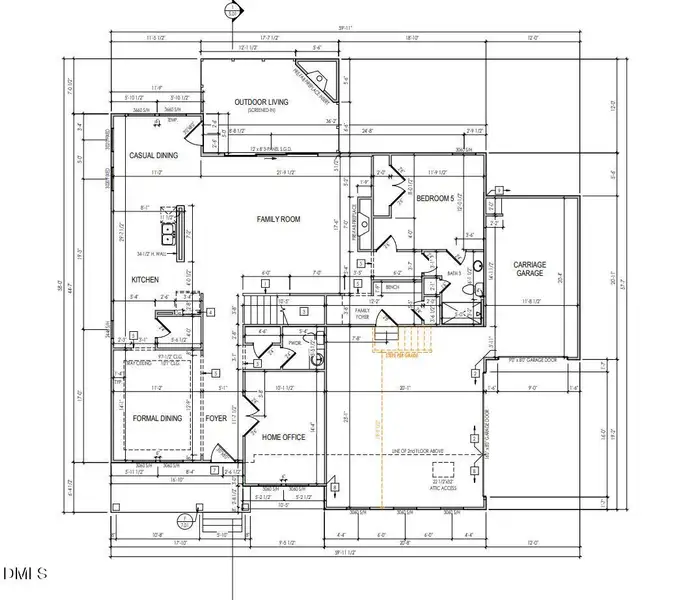
This thoughtfully designed home offers a flexible, family-friendly layout with elegant spaces for both everyday living and entertaining. The main level features a private home office, formal dining room, open-concept kitchen overlooking a spacious family room, casual dining, and a guest bedroom with nearby full bath - ideal for visitors or multigenerational living. Enjoy seamless indoor-outdoor living with a screened outdoor living area just off the main living space. Upstairs, the luxurious primary suite includes a spa-inspired bath, expansive walk-in closet, and a private sitting area, while three additional bedrooms, multiple baths, a large game room, and convenient laundry provide room for everyone. A carriage-style garage and abundant storage throughout complete this beautifully balanced home designed for comfort, functionality, and style.
Drees Homes, MLS 10137279
May also be listed on the Drees Custom Homes website
Information last verified by Jome: Today at 4:16 AM (March 5, 2026)
Book your tour. Save an average of $18,473. We'll handle the rest.
We collect exclusive builder offers, book your tours, and support you from start to housewarming.
- Confirmed tours
- Get matched & compare top deals
- Expert help, no pressure
- No added fees
Estimated value based on Jome data, T&C apply
Home details
- Property status:
- Move-in ready
- Lot size (acres):
- 0.80
- Size:
- 3,573 sqft
- Stories:
- 2
- Beds:
- 5
- Baths:
- 4
- Half baths:
- 1
- Garage spaces:
- 3
Construction details
- Builder Name:
- Drees Custom Homes
- Completion Date:
- April, 2026
- Year Built:
- 2026
- Roof:
- Shingle Roofing
Home features & finishes
- Construction Materials:
- CementStone
- Flooring:
- Carpet FlooringTile FlooringHardwood Flooring
- Foundation Details:
- Block
- Garage/Parking:
- GarageAttached Garage
- Interior Features:
- Walk-In ClosetCoffered Ceiling
- Kitchen:
- Furnished Kitchen
- Laundry facilities:
- Utility/Laundry Room
- Property amenities:
- BasementFireplace
- Rooms:
- Game RoomOffice/StudyGuest RoomDining RoomFamily RoomBreakfast AreaPrimary Bedroom Upstairs
Room details
Master Bedroom
Bedroom 5
Game Room

Get a consultation with our New Homes Expert
- See how your home builds wealth
- Plan your home-buying roadmap
- Discover hidden gems
Utility information
- Heating:
- Zoned Heating

Community details
Tobacco Road
by Drees Custom Homes, Angier, NC
- 3 homes
- 8 plans
- 2,259 - 3,573 sqft
View Tobacco Road details
More homes in Tobacco Road
- Home at address 243 Harvester Rd, Angier, NC 27501

Parkette
$724,900
- 4 bd
- 4.5 ba
- 3,236 sqft
243 Harvester Rd, Angier, NC 27501
- Home at address 370 Crop Rd, Angier, NC 27501

Parkette
$735,000
- 4 bd
- 4.5 ba
- 3,236 sqft
370 Crop Rd, Angier, NC 27501
Floor plans in Tobacco Road
About the builder - Drees Custom Homes
Neighborhood
Home address
Schools in Harnett County Schools
GreatSchools’ Summary Rating calculation is based on 4 of the school’s themed ratings, including test scores, student/academic progress, college readiness, and equity. This information should only be used as a reference. Jome is not affiliated with GreatSchools and does not endorse or guarantee this information. Please reach out to schools directly to verify all information and enrollment eligibility. Data provided by GreatSchools.org © 2025
Places of interest
Getting around

Considering this home?
Our expert will guide your tour, in-person or virtual
Need more information?
Text or call (888) 488-9243
Financials
Estimated monthly payment
Let us help you find your dream home
How many bedrooms are you looking for?
Similar homes nearby
Recently added communities in this area
Nearby communities in Angier
New homes in nearby cities
More New Homes in Angier, NC
Drees Homes, MLS 10137279
© 2025 Doorify MLS, Inc. of North Carolina. All rights reserved. Brokers make an effort to deliver accurate information, but buyers should independently verify any information on which they will rely in a transaction. The listing broker shall not be responsible for any typographical errors, misinformation, or misprints, and they shall be held totally harmless from any damages arising from reliance upon this data. This data is provided exclusively for consumers’ personal, non-commercial use. Some IDX listings have been excluded from this IDX display. Closed (sold) listings may have been listed and/or sold by a real estate firm other than the firm(s) featured on this website. Closed data is not available until the sale of the property is recorded in the MLS. Home sale data is not an appraisal, CMA, competitive or comparative market analysis, or home valuation of any property. Listings marked with an icon are provided courtesy of the Doorify MLS, Inc. of North Carolina, Internet Data Exchange Database.
Read moreLast checked Mar 5, 10:10 am
- Jome
- New homes search
- North Carolina
- Raleigh-Durham Area
- Harnett County
- Angier
- Tobacco Road
- 369 Crop Rd, Angier, NC 27501































