














Book your tour. Save an average of $18,473. We'll handle the rest.
- Confirmed tours
- Get matched & compare top deals
- Expert help, no pressure
- No added fees
Estimated value based on Jome data, T&C apply





























Why tour with Jome?
- No pressure toursTour at your own pace with no sales pressure
- Expert guidanceGet insights from our home buying experts
- Exclusive accessSee homes and deals not available elsewhere
Jome is featured in
- Townhouse
- Quick move-in
- $194/sqft
- $227/monthly HOA
Home description
Welcome to 2218 Carcillar Drive at the brand-new community Horton Park located in Apex, NC.
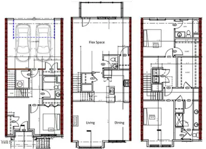
Introducing the Hadleigh floorplan, our new 3-story townhome that features 2,286sq. ft. of living space, 4 bedrooms, 3.5 bathrooms, an alley-load two-car garage, and an exterior deck on the second floor perfect for relaxation and entertainment!
Upon entering the home, you're greeted by the spacious full bedroom and bathroom. As you walk to the back of your home, you will see included two car garage. As you make your way to the second floor, you are greeted by an open living room and kitchen with glass doors opening up to the exterior balcony. The kitchen features stainless steel appliances, quartz countertops, Revwood flooring throughout, plenty of cabinet storage, and overlooking the breakfast area and family room. You will also have a powder room on the second floor, L-shaped countertops for extra bar seating and an island making it the perfect place to cook and entertain!
Moving to the third floor, you have three spacious bedrooms with plenty of closet space. The owner's suite is located at the front of your home while the two secondary bedrooms are located at the back of the home for extra privacy. The primary bedroom boasts a walk-in closet, walk-in shower, and dual vanities. The two secondary bedrooms share a full bathroom and additional storage space. Your laundry closet will also be located on the third floor for extra convenience.
With its thoughtful design, spacious layout, and modern conveniences, the Hadleigh floorplan is the ideal place to call home at Horton Park! All homes come with a one-year builder's warranty and 10-year structural warranty. Your new home also includes our smart home technology package!
Make the Hadleigh your new home at Horton Park today! *Photos are for representational purposes only.
D.R. Horton, Inc., MLS 10133186
May also be listed on the D.R. Horton website
Information last verified by Jome: Today at 4:25 AM (December 5, 2025)
Home highlights
Raleigh’s premier arena hosting NHL games, concerts, and events near NC State and suburban neighborhoods.
Book your tour. Save an average of $18,473. We'll handle the rest.
We collect exclusive builder offers, book your tours, and support you from start to housewarming.
- Confirmed tours
- Get matched & compare top deals
- Expert help, no pressure
- No added fees
Estimated value based on Jome data, T&C apply
Home details
- Property status:
- Move-in ready
- Lot size (acres):
- 0.12
- Size:
- 2,286 sqft
- Stories:
- 3+
- Beds:
- 4
- Baths:
- 3
- Half baths:
- 1
- Garage spaces:
- 2
Construction details
- Builder Name:
- D.R. Horton
- Year Built:
- 2025
- Roof:
- Metal Roofing, Shingle Roofing
Home features & finishes
- Appliances:
- Exhaust Fan Vented
- Construction Materials:
- BrickStone
- Cooling:
- Central Air
- Flooring:
- Laminate FlooringVinyl FlooringCarpet Flooring
- Foundation Details:
- Slab
- Garage/Parking:
- Door OpenerGarageRear Entry Garage/ParkingAttached GarageCar Charging Stations
- Interior Features:
- Walk-In ClosetPantryFlat Screen WiringSeparate ShowerDouble Vanity
- Kitchen:
- Range-Free StandingDishwasherMicrowave OvenDisposalStainless Steel AppliancesGas CooktopQuartz countertopCook TopKitchen IslandGas OvenKitchen Range
- Laundry facilities:
- Laundry Facilities In UnitLaundry Facilities On Upper LevelDryerWasherLaundry Facilities In Closet
- Lighting:
- Exterior LightingSmart Lights
- Property amenities:
- BasementDeckLandscapingWalk-in ShowerSmart Home System
- Rooms:
- KitchenDining RoomOpen Concept Floorplan
Utility information
- Heating:
- Gas Heating
- Utilities:
- Electricity Available, Natural Gas Available, Water Available

Community details
Horton Park
by D.R. Horton, Apex, NC
- 17 homes
- 6 plans
- 2,273 - 3,262 sqft
View Horton Park details
Community amenities
- Community Pool
- Sidewalks Available
More homes in Horton Park
Floor plans in Horton Park
About the builder - D.R. Horton
Neighborhood
Home address
Schools in Wake County Schools
GreatSchools’ Summary Rating calculation is based on 4 of the school’s themed ratings, including test scores, student/academic progress, college readiness, and equity. This information should only be used as a reference. Jome is not affiliated with GreatSchools and does not endorse or guarantee this information. Please reach out to schools directly to verify all information and enrollment eligibility. Data provided by GreatSchools.org © 2025
Places of interest
Getting around
Noise level
A Soundscore™ rating is a number between 50 (very loud) and 100 (very quiet) that tells you how loud a location is due to environmental noise.
Natural hazards risk
Climate hazards can impact homes and communities, with risks varying by location. These scores reflect the potential impact of natural disasters and climate-related risks on Wake County
Provided by FEMA

Considering this home?
Our expert will guide your tour, in-person or virtual
Need more information?
Text or call (888) 486-2818
Financials
Estimated monthly payment
Similar homes nearby
Recently added communities in this area
Nearby communities in Apex
New homes in nearby cities
More New Homes in Apex, NC
D.R. Horton, Inc., MLS 10133186
© 2025 Doorify MLS, Inc. of North Carolina. All rights reserved. Brokers make an effort to deliver accurate information, but buyers should independently verify any information on which they will rely in a transaction. The listing broker shall not be responsible for any typographical errors, misinformation, or misprints, and they shall be held totally harmless from any damages arising from reliance upon this data. This data is provided exclusively for consumers’ personal, non-commercial use. Some IDX listings have been excluded from this IDX display. Closed (sold) listings may have been listed and/or sold by a real estate firm other than the firm(s) featured on this website. Closed data is not available until the sale of the property is recorded in the MLS. Home sale data is not an appraisal, CMA, competitive or comparative market analysis, or home valuation of any property. Listings marked with an icon are provided courtesy of the Doorify MLS, Inc. of North Carolina, Internet Data Exchange Database.
Read moreLast checked Dec 5, 4:10 am
- Home
- New homes
- North Carolina
- Raleigh-Durham Area
- Wake County
- Apex
- Horton Park
- 2218 Carcillar Dr, Apex, NC 27539





































